Das EVOLUTION 124 von Bien-Zenker ist ein wahres Meisterwerk der modernen Architektur, das Ihnen die Freiheit gibt, Ihr Zuhause nach Ihren eigenen Vorstellungen zu gestalten. Mit einer großzügigen Wohnfläche von 125 m² und vier durchdachten Zimmern bietet dieses Fertighaus ausreichend Platz für Ihre Familie und Ihre individuellen Bedürfnisse. Die Wahl zwischen verschiedenen Dachformen, wie dem charmanten Satteldach oder dem eleganten Flachdach, ermöglicht es Ihnen, das äußere Erscheinungsbild ganz nach Ihrem Geschmack zu kreieren. Die großen Fensterflächen sorgen nicht nur für eine lichtdurchflutete Atmosphäre, sondern auch für einen faszinierenden Ausblick auf Ihr 800 m² großes Grundstück, das ausreichend Platz für Garten und Freizeitaktivitäten bietet.
Die durchdachte Aufteilung des Hauses fördert ein harmonisches Zusammenleben. Die Zimmer sind so gestaltet, dass Sie sowohl Rückzugsorte als auch Gemeinschaftsräume schaffen können. Das offene Wohn- und Esszimmer bildet das Herzstück des Hauses, während die Schlafzimmer eine ruhige und private Atmosphäre bieten. Hier genießen Sie entspannte Nächte und erholsame Tage. Zudem lässt sich die Raumaufteilung flexibel an Ihre Wünsche anpassen, sodass Sie Ihre persönlichen Lebenskonzepte perfekt umsetzen können.
Die Ausbaustufe ZAF ist ideal für kreative Köpfe und handwerklich Begabte. Sie erhalten das Haus im Rohbau mit einem fertigen technischen Innenausbau, während Sie die Möglichkeit haben, Böden, Wände und Sanitärinstallationen selbst zu gestalten. So bringen Sie Ihre persönliche Note in Ihr Zuhause ein und sparen gleichzeitig Kosten. Der Bauablauf wird durch die Unterstützung von Bien-Zenker äußerst komfortabel, sodass Sie sich voll und ganz auf die Umsetzung Ihrer Ideen konzentrieren können.
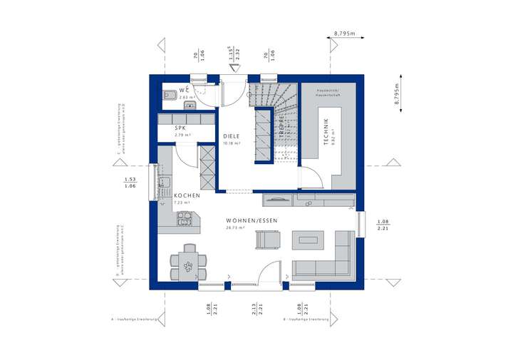
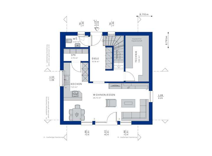
Grundrisse und Abbildungen können Extras zeigen. Flächenangaben nach DIN 277.
Platz, Platz, Platz für Kinder und Haustiere - Top-Investition in Ihre Familienoase
61138 Niederdorfelden
Die vollständige Adresse der Immobilie erhalten Sie vom Anbieter.
Auf Karte anzeigen
Die vollständige Adresse der Immobilie erhalten Sie vom Anbieter.
Finanzierungszertifikat
In nur zwei Minuten zu Ihrem persönlichen Finanzierungszertifkat.
Infos
| Wohnfläche ca. | 125 m2 |
|---|---|
| Grundstücksfläche | 800 m2 |
| Zimmer | 4 |
Kosten
| Kaufpreis |
598.300 € |
|---|---|
| Provision |
Provision fällt nur auf den Grundstücksanteil an Das Angebot umfasst ein Bien-Zenker Haus und ein separates Grundstück, das von einem unabhängigen Dritten (ggf. Immobilienmakler) angeboten wird, dessen Provision wir nicht beeinflussen können. Grundstückskauf und Hausbau sind rechtlich unabhängig und getrennte Verträge. Der Grundstückserwerb erfolgt über einen eigenen Kaufvertrag und kann eine separate Maklerprovision beinhalten. Der Abschluss eines Bauvertrags mit Bien-Zenker ist nicht an den Grundstückskauf gebunden. |
Finanzierungsrechner:
Kaufpreis:
600.000 €
Eigenkapital:
600.000 €
Monatliche Rate
0 €
Effektiver Jahreszins
0 %
Sollzinsbindung
10 Jahre
Bausubstanz & Energieausweis
| Baujahr | unbekannt |
|---|
Beschreibung des Objekts
Ausstattung
Das EVOLUTION 124 bietet Ihnen nicht nur eine Vielzahl an Gestaltungsmöglichkeiten, sondern auch durchdachte Komfortdetails, die Ihren Alltag bereichern. Die großen Fensterflächen sorgen für eine optimale Belichtung der Räume und schaffen eine einladende, freundliche Atmosphäre. Genießen Sie entspannte Stunden auf Ihrer Terrasse oder im Garten, wo Sie die Natur in vollen Zügen auskosten können.
Zusätzlich zu den großzügigen Wohnräumen erwarten Sie praktische Extras wie Abstellräume, die Ihnen helfen, Ordnung zu halten und Stauraum für Ihre persönlichen Dinge zu schaffen. Der offene Grundriss unterstützt das gesellige Beisammensein mit Familie und Freunden und lässt sich flexibel anpassen, sodass jede Ecke des Hauses sinnvoll genutzt werden kann.
Die Ausbaustufe ZAF ermöglicht es Ihnen, aktiv am Bau Ihres Hauses teilzunehmen. Sie erhalten ein schlüsselfertiges Gebäude, in dem bereits die wichtigsten technischen Arbeiten erledigt sind, und können selbst kreativ werden. Dies gibt Ihnen die Freiheit, individuelle Akzente zu setzen und Ihr Zuhause zu einem einzigartigen Ort zu machen, in dem Sie sich rundum wohlfühlen.
Lage
Niederdorfelden ist nicht nur ein idyllischer Wohnort, sondern bietet Ihnen auch eine hervorragende Anbindung an alle wichtigen Einrichtungen. In der direkten Umgebung finden Sie zahlreiche Bildungseinrichtungen, wie Schulen und Kindergärten, die Ihren Kindern eine optimale Förderung bieten. Gesundheitsversorgung ist ebenfalls in der Nähe, sodass Sie in kürzester Zeit die örtlichen Ärzte und Apotheken erreichen können.
Für Ihre täglichen Einkäufe stehen Ihnen diverse Supermärkte und Fachgeschäfte zur Verfügung, die alles bieten, was Sie benötigen. Auch die Freizeitgestaltung kommt nicht zu kurz; in der Region gibt es zahlreiche Parks und Sporteinrichtungen, die zu aktiven Unternehmungen einladen. Die Anbindung an den öffentlichen Nahverkehr ist hervorragend, sodass Sie schnell und unkompliziert in die umliegenden Städte gelangen. Zudem sind Sie in kurzer Zeit auf der Autobahn, wodurch Sie auch für weitere Reisen bestens gerüstet sind.
Sonstige Angaben
MIT SICHERHEIT INS EIGENHEIM!
Sicher haben Sie viele Fragen und möchten wissen, was auf Sie zukommt. Von der Erstberatung bis zur Schlüsselübergabe betreue ich Sie kompetent, fair und verlässlich. Sie erhalten Kostensicherheit durch die Bien-Zenker Festpreisgarantie und zusätzlich Planungssicherheit durch vertraglich festgelegte Bauzeiten. Machen Sie sich jetzt dauerhaft frei von steigenden Mieten und schwankenden Energiepreisen. Mit Ihrem neuen Bien-Zenker Haus.
WIR HELFEN IHNEN AUCH BEI DER FINANZIERUNG IHRES TRAUMHAUSES
Gemeinsam mit Ihnen entwerfen wir nicht nur das perfekte Haus für Sie und Ihre Familie, sondern wir unterstützen Sie auch auf der Suche nach der passenden Finanzierung. Unsere unabhängigen Finanzberater analysieren auf der Suche nach der besten Immobilienfinanzierung für Ihr Fertighaus gemeinsam mit Ihnen Ihre Situation: Was sind die anfallenden Kosten und Preise, welches Eigenkapital ist verfügbar, welche Bausparverträge sind vorhanden, und nicht zuletzt, welche Fördermöglichkeiten von Bund, Land oder Gemeinde kommen für Sie infrage. So helfen wir Ihnen unverbindlich und vor allem unabhängig von Finanzinstituten dabei, den optimalen Immobilien-Kredit für Ihr Bauvorhaben zu finden.
BITTE BEACHTEN SIE, DASS
- die gezeigten Entwürfe und Grundrisse urheberrechtlich geschützt
sind. Nachdruck und Vervielfältigung bedürfen der Zustimmung von Niko Miosga und der Bien-Zenker GmbH.
- Farbabweichungen darstellungsbedingt / druckbedingt auftreten können.
- Grundrisse und Abbildungen über den Standard hinausgehende Ausstattungsmerkmale
und Sonderausstattungen enthalten können.
Grundriss
Grundrissidee EG
>
>
Grundrissidee DG
>
>
Adresse
61138 Niederdorfelden
Interessante Orte
Preis- und Lageinformationen
Preistrend für Bestandsimmobilien in Niederdorfelden