YOUR FAMILY'S FOREVER HOME.
Ein Zuhause ist nicht nur ein Ort – es ist ein Gefühl.
Es bedeutet Freiheit, Sicherheit und eine Zukunft, die du selbst gestalten kannst.
Mit White&Black bekommst du mehr als ein Haus – du bekommst einen Lebensraum, der mit dir wächst.
Stell dir vor:
Ein lichtdurchflutetes Wohnzimmer, in dem du mit Freunden und Familie lachst.
Ein Garten, der Platz für Sommerabende, Kinderlachen oder deine Ruheoase bietet.
Ein Zuhause, das dir gehört – ohne steigende Mieten, ohne Unsicherheiten.
BUILD YOUR WAY. OWN YOUR SPACE.
Von der individuellen Finanzierungsberatung über die Grundstückssuche bis zur perfekten Hauslösung – wir stehen an deiner Seite.
FEELS LIKE HOME.
Dein Stil, dein Design, dein Zuhause.
MORE HOME. LESS WORRY.
Klare Prozesse, stressfreie Planung, einfaches Bauen.
SIMPLE IS THE NEW LUXURY.
Durchdachte Architektur, hochwertige Ausstattung, smarte Technologien.
Es gibt nie den perfekten Moment – aber den richtigen Schritt. Dein Zuhause ist näher, als du denkst.
START YOUR HOME JOURNEY TODAY.
Mach aus deiner Miete Wohneigentum!
38489 Jeeben
Die vollständige Adresse der Immobilie erhalten Sie vom Anbieter.
Auf Karte anzeigen
Die vollständige Adresse der Immobilie erhalten Sie vom Anbieter.
Finanzierungszertifikat
In nur zwei Minuten zu Ihrem persönlichen Finanzierungszertifkat.
Infos
| Haustyp | Einfamilienhaus |
|---|---|
| Wohnfläche ca. | 119 m2 |
| Nutzfläche | 0 m2 |
| Grundstücksfläche | 707 m2 |
| Zimmer | 4 |
| Schlafzimmer | 3 |
| Badezimmer | 1 |
| Anzahl Garage/Stellplatz | 0 |
Kosten
| Kaufpreis |
320.250 € |
|---|---|
| Provision | Nein |
Finanzierungsrechner:
Kaufpreis:
600.000 €
Eigenkapital:
600.000 €
Monatliche Rate
0 €
Effektiver Jahreszins
0 %
Sollzinsbindung
10 Jahre
Bausubstanz & Energieausweis
| Baujahr | 2026 |
|---|---|
| Bauphase | Haus in Planung (projektiert) |
| Qualität der Austattung | Gehoben |
| Heizungsart | Wärmepumpe |
Beschreibung des Objekts
Ausstattung
THINK BLACK – All in.
- Schlüsselfertig & sofort bezugsbereit – ohne zusätzlichen Aufwand
- Kompletter Innenausbau – keine Handwerkersuche, kein Planungsstress
- Durchdachte Raumaufteilung – moderne Wohnkonzepte für jede Lebensphase
- Innovative Haustechnik – zukunftssicheres Wohnen mit höchster Effizienz
- Maximaler Komfort – alles fertig, alles drin
Für alle, die einfach einziehen und losleben wollen!
Lage
Lagebeschreibung
Das Grundstück liegt in Jeeben, einem beschaulichen Ortsteil der Gemeinde Beetzendorf im Altmarkkreis Salzwedel, Sachsen‑Anhalt. Jeeben ist ein kleines Angerdorf mit Kirche, eingebettet in eine ruhige, ländliche Umgebung.
Einkaufsmöglichkeiten
In Jeeben selbst existieren kleinere Läden des täglichen Bedarfs. Für größere Einkaufsangebote fährt man am besten nach Klötze, dem nächstgelegenen größeren Ort. Dort stehen Supermärkte, Fachgeschäfte, Apotheken und Dienstleister zur Verfügung. Für Spezialgeschäfte und ein breiteres Angebot bieten sich die Kreisstadt Salzwedel oder auch Orte wie Wolfsburg an.
Öffentlicher Personennahverkehr (ÖPNV)
Jeeben ist an das regionale Busnetz des Altmarkkreises Salzwedel angeschlossen. Der ÖPNV in dieser Region nutzt neben festen Linien auch Rufbusverkehre, um auch dünn besiedelte Orte flexibel anzubinden.
Es gibt geplante Fahrplanwechsel, Schülerverkehr wird berücksichtigt.
Schulen und Betreuung
Kindertagesstätten und Grundschulen sind in den umliegenden Orten verfügbar, insbesondere in Klötze. Klötze bietet mehrere Grundschulen und eine Sekundarschule. Für höhere Schulformen bzw. Gymnasien muss man in weitere Orte fahren.
Freizeit & Umgebung
Die Umgebung ist geprägt von Natur und ländlicher Ruhe. In Klötze gibt es den Tierpark „Arche Noah“ mit Streichelgehege und Spielplatz – ideal für Familien.
Die Landschaft um Jeeben lädt zu Spaziergängen und Naturerlebnissen ein – Felder, Wiesen, kleine Gewässer prägen das Bild. Durch die Nähe zur Jeetze bietet sich Wassernähe in der Umgebung.
Anbindung an größere Städte
Jeeben liegt ca. 8 km nordwestlich von Klötze.
Die Bundesstraße B248 ist etwa 5 km entfernt, was gute Verbindungswege in die Region ermöglicht.
Zu größeren Städten: Wolfsburg liegt in relativer Erreichbarkeit – es ist ein Wirtschaftsraum, zu dem Pendelwege möglich sind. Salzwedel als Kreisstadt bietet städtische Servicedichte.
+1
Sonstige Angaben
Das Haus ist projektiert inkl. Grundstück. Das Grundstück wird in Kommission angeboten bzw. direkt von Dritten verkauft. Daher kann der genannte Preis aufgrund aktueller Marktsituationen schwanken.
Die Bauabwicklung kann kurzfristig nach Grundstückserwerb begonnen werden. Bilder zeigen möglicherweise Sonderausstattungen, die auf Wunsch gegen Aufspreis zusätzlich angeboten werden können.
Erhalte in deinem persönlichen Beratungsgespräch kostenlos alle wichtigen Informationen zu diesem Projekt, insbesondere: Lage und Bebauungsmöglichkeiten des Baugrundstücks, Baukosten-Kalkulation, Finanzierungs- u. Förderungsmöglichkeiten sowie detaillierte Architektur- uund Grundrissplanung.
Wir freuen uns darauf, dich beraten zu dürfen!
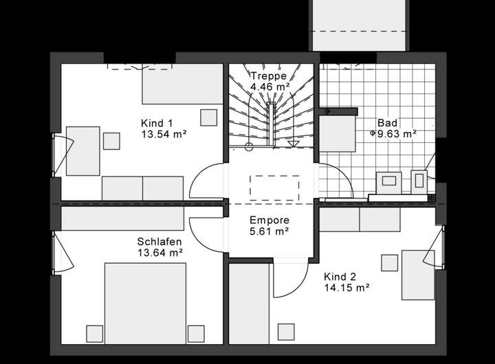
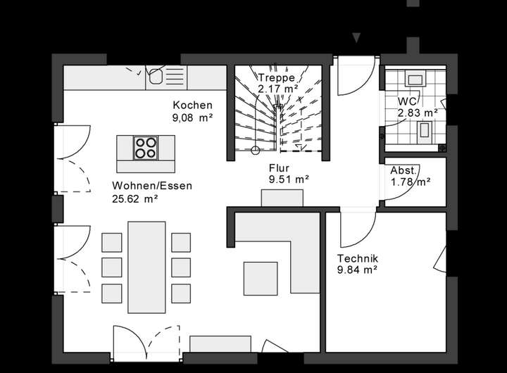
Grundriss
Grundriss EG
>
>
Grundriss OG
>
>
Adresse
38489 Jeeben
Interessante Orte
Preis- und Lageinformationen
Preistrend für Bestandsimmobilien in Jeeben