YOUR FAMILY'S FOREVER HOME.
Ein Zuhause ist nicht nur ein Ort – es ist ein Gefühl.
Es bedeutet Freiheit, Sicherheit und eine Zukunft, die du selbst gestalten kannst.
Mit White&Black bekommst du mehr als ein Haus – du bekommst einen Lebensraum, der mit dir wächst.
Stell dir vor:
Ein lichtdurchflutetes Wohnzimmer, in dem du mit Freunden und Familie lachst.
Ein Garten, der Platz für Sommerabende, Kinderlachen oder deine Ruheoase bietet.
Ein Zuhause, das dir gehört – ohne steigende Mieten, ohne Unsicherheiten.
BUILD YOUR WAY. OWN YOUR SPACE.
Von der individuellen Finanzierungsberatung über die Grundstückssuche bis zur perfekten Hauslösung – wir stehen an deiner Seite.
FEELS LIKE HOME.
Dein Stil, dein Design, dein Zuhause.
MORE HOME. LESS WORRY.
Klare Prozesse, stressfreie Planung, einfaches Bauen.
SIMPLE IS THE NEW LUXURY.
Durchdachte Architektur, hochwertige Ausstattung, smarte Technologien.
Es gibt nie den perfekten Moment – aber den richtigen Schritt. Dein Zuhause ist näher, als du denkst.
START YOUR HOME JOURNEY TODAY.
Heute dein Zuhause, morgen deine Zukunft.
39167 Eichenbarleben
Die vollständige Adresse der Immobilie erhalten Sie vom Anbieter.
Auf Karte anzeigen
Die vollständige Adresse der Immobilie erhalten Sie vom Anbieter.
Finanzierungszertifikat
In nur zwei Minuten zu Ihrem persönlichen Finanzierungszertifkat.
Infos
| Haustyp | Einfamilienhaus |
|---|---|
| Wohnfläche ca. | 148 m2 |
| Nutzfläche | 0 m2 |
| Grundstücksfläche | 550 m2 |
| Zimmer | 4 |
| Schlafzimmer | 3 |
| Badezimmer | 1 |
| Anzahl Garage/Stellplatz | 0 |
Kosten
| Kaufpreis |
396.415 € |
|---|---|
| Provision | Nein |
Finanzierungsrechner:
Kaufpreis:
600.000 €
Eigenkapital:
600.000 €
Monatliche Rate
0 €
Effektiver Jahreszins
0 %
Sollzinsbindung
10 Jahre
Bausubstanz & Energieausweis
| Baujahr | 2026 |
|---|---|
| Bauphase | Haus in Planung (projektiert) |
| Qualität der Austattung | Gehoben |
| Heizungsart | Wärmepumpe |
Beschreibung des Objekts
Ausstattung
THINK BLACK – All in.
- Schlüsselfertig & sofort bezugsbereit – ohne zusätzlichen Aufwand
- Kompletter Innenausbau – keine Handwerkersuche, kein Planungsstress
- Durchdachte Raumaufteilung – moderne Wohnkonzepte für jede Lebensphase
- Innovative Haustechnik – zukunftssicheres Wohnen mit höchster Effizienz
- Maximaler Komfort – alles fertig, alles drin
Für alle, die einfach einziehen und losleben wollen!
Lage
Im schönen, naturnahen Ortsteil Eichenbarleben der Gemeinde Hohe Börde (Landkreis Börde, Sachsen-Anhalt) entsteht Ihr neues Grundstück in ruhiger Randlage – perfekt für all jene, die ländliches Wohnen mit guter Versorgung verbinden möchten. Die Umgebung ist geprägt von der weitläufigen Landschaft der Magdeburger Börde, mit flachen bis leicht hügeligen Feldern, Wiesen und kleinen naturnahen Freiräumen – hier wohnen Sie in angenehmer Ruhe, mit dennoch guter Anbindung an das Umland.
Einkauf & Versorgung
Im Ort finden Sie moderne Einkaufsmöglichkeiten: Ein gut erreichbarer Supermarkt sorgt für den täglichen Bedarf – im Haus ist auch eine Bäckerei-Filiale untergebracht.
Ihr Landbäcker - auch in Ihrer Nähe!
Zudem sind Arzt, Apotheke und Handwerksbetriebe in kurzer Nähe vorhanden – eine ausgewogene Nahversorgung, die den Alltag bequem macht.
Öffentlicher Nahverkehr (ÖPNV) & Mobilität
Auch mit öffentlichen Verkehrsmitteln sind Sie gut angebunden: So verkehrt etwa die Buslinie 612, die unter anderem zur zentralen Haltestelle „Magdeburg ZOB“ führt.
Damit ist auch eine Anbindung an die Landeshauptstadt Magdeburg gegeben – ideal für Pendler oder Ausflüge. Zusätzlich ergänzen alternative Mobilitätsangebote wie Mitfahrbänke das Angebot vor Ort.
Schulen & Betreuung
Für Familien ist gesorgt: Die Grundschule „Olbetal“ befindet sich im Ortsteil und bietet eine schulische Basis.
Zudem gibt es örtliche Kindertagesstätten und ein „Haus der Generationen“, das Betreuung, Gemeinschaftsangebote und Vereine unter einem Dach vereint.
Freizeit & Natur
Die Lage des Grundstücks lädt zu naturnaher Freizeitgestaltung ein: Spaziergänge durch die nähere Umgebung, Ausflüge in den historischen Schlosspark von Eichenbarleben oder Radtouren durch die Börde-Landschaft gehören zum Tagesablauf.
Das örtliche Vereins- und Gemeinschaftsleben ist aktiv – zahlreiche Vereine bieten Sport, Brauchtum und Kultur, wodurch ein lebendiges Miteinander entsteht.
Hohe Börde
Nähe zu größeren Städten & Verkehrsanbindung
Die Nähe zur Landeshauptstadt Magdeburg sorgt dafür, dass Sie nicht auf die Vorteile städtischer Infrastruktur verzichten müssen – zugleich genießen Sie die Vorzüge ruhigen Wohnens im Grünen. Sie erreichen Magdeburg mit dem Auto in rund 10 Minuten.
Auch überregional sind Sie durch die nahegelegene Bundesstraße B1 sowie über die Autobahn (z. B. Autobahn A2) gut angebunden.
Fazit
Ihr Grundstück in der Ortslage von Eichenbarleben verbindet ländliche Idylle mit ausgewogener Infrastruktur: Einkaufsmöglichkeiten, ÖPNV-Anbindung, schulische Betreuung und Naherholung sind vorhanden – und gleichzeitig sind Sie schnell in einer größeren Stadt unterwegs. Ideal für ruhiges Wohnen mit Komfort und Anschluss.
Sonstige Angaben
Das Haus ist projektiert inkl. Grundstück. Das Grundstück wird in Kommission angeboten bzw. direkt von Dritten verkauft. Daher kann der genannte Preis aufgrund aktueller Marktsituationen schwanken.
Die Bauabwicklung kann kurzfristig nach Grundstückserwerb begonnen werden. Bilder zeigen möglicherweise Sonderausstattungen, die auf Wunsch gegen Aufspreis zusätzlich angeboten werden können.
Erhalte in deinem persönlichen Beratungsgespräch kostenlos alle wichtigen Informationen zu diesem Projekt, insbesondere: Lage und Bebauungsmöglichkeiten des Baugrundstücks, Baukosten-Kalkulation, Finanzierungs- u. Förderungsmöglichkeiten sowie detaillierte Architektur- uund Grundrissplanung.
Wir freuen uns darauf, dich beraten zu dürfen!
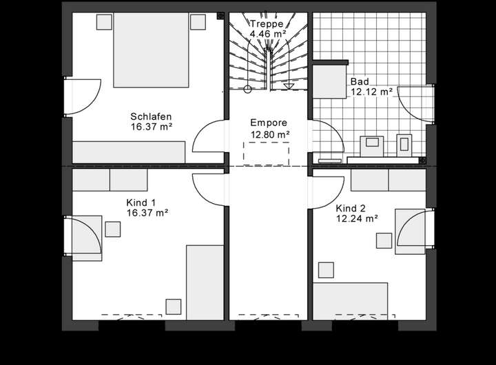
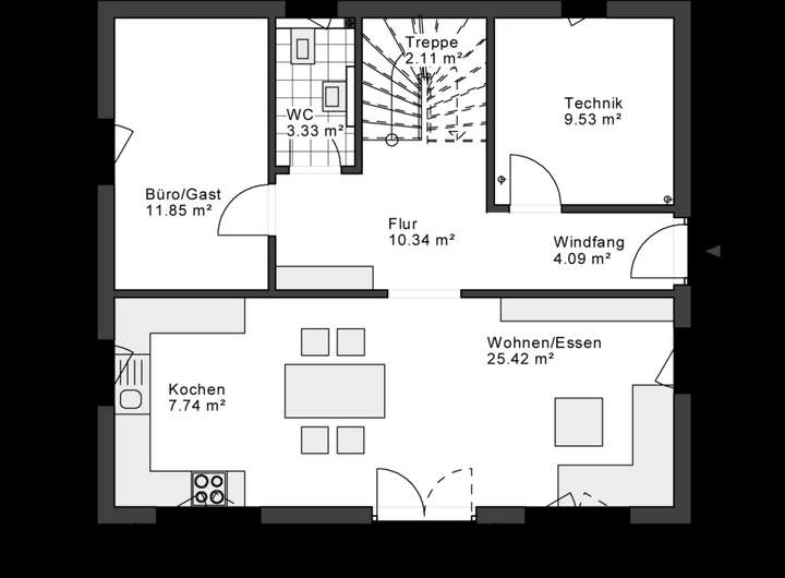
Grundriss
Grundriss EG
>
>
Grundriss OG
>
>
Adresse
39167 Eichenbarleben
Interessante Orte
Preis- und Lageinformationen
Preistrend für Bestandsimmobilien in Eichenbarleben