Ein neues Kapitel beginnt für Ihre Familie: Gestalten Sie Ihr Traumhaus für gemeinsame Erinnerungen und ein harmonisches Zuhause. Entdecken Sie die vielfältigen Möglichkeiten eines maßgeschneiderten Neubaus, der Ihren Bedürfnissen und Wünschen gerecht wird. Gestalten Sie Ihr neues Zuhause nach Ihren Vorstellungen und schaffen Sie einen Ort, an dem Ihre Familie wachsen und sich weiterentwickeln kann.
Der Grundriss des Hauses wird so gestaltet, dass er den Anforderungen Ihrer Familie gerecht wird. Große offene Wohnbereiche bieten ausreichend Platz für gemeinsame Aktivitäten und lassen viel natürliches Licht herein. Ein separates Spielzimmer oder ein Kinderzimmer sorgt dafür, dass Ihre Kinder sich entfalten können.
Das energieeffiziente Haus wurde unter Verwendung hochwertiger Materialien und modernster Technologie gebaut. Durch die besonders gute ökologische Bauweise und Wärmedämmung sowie das äußerst effiziente Heizungs- und Kühlungssystem können Sie das ganze Jahr über ein angenehmes Raumklima genießen und gleichzeitig Ihre Energiekosten minimieren. Eine Solaranlage auf dem Dach gewährleistet eine nachhaltige Energieversorgung, während energieeffiziente Geräte den Verbrauch weiter reduzieren.
Dieses Wohlfühl-Haus ermöglicht es Ihnen, Ihre Zukunft in vollen Zügen zu genießen. Es entspricht nicht nur Ihren Bedürfnissen und Vorlieben, sondern ist auch umweltfreundlich und kosteneffizient. Es bietet Ihnen und Ihrer Familie ein komfortables und nachhaltiges Zuhause, das Sie für lange Zeit genießen können.
Lassen Sie sich von uns bei jedem Schritt begleiten, um Ihr Haus zu einem Ort zu machen, der Ihre Zukunftsträume erfüllt.
Bauen mit Vertrauen: Die Zukunft für Ihre Familie
38486 Kunrau
Die vollständige Adresse der Immobilie erhalten Sie vom Anbieter.
Auf Karte anzeigen
Die vollständige Adresse der Immobilie erhalten Sie vom Anbieter.
Finanzierungszertifikat
In nur zwei Minuten zu Ihrem persönlichen Finanzierungszertifkat.
Infos
| Haustyp | Einfamilienhaus |
|---|---|
| Wohnfläche ca. | 167 m2 |
| Nutzfläche | 0 m2 |
| Grundstücksfläche | 1.212 m2 |
| Zimmer | 5 |
| Schlafzimmer | 3 |
| Badezimmer | 1 |
| Anzahl Garage/Stellplatz | 1 |
Kosten
| Kaufpreis |
488.135 € |
|---|---|
| Provision | Nein |
Finanzierungsrechner:
Kaufpreis:
600.000 €
Eigenkapital:
600.000 €
Monatliche Rate
0 €
Effektiver Jahreszins
0 %
Sollzinsbindung
10 Jahre
Bausubstanz & Energieausweis
| Baujahr | 2026 |
|---|---|
| Bauphase | Haus in Planung (projektiert) |
| Qualität der Austattung | Gehoben |
| Heizungsart | Wärmepumpe |
Beschreibung des Objekts
Ausstattung
Neben kurzen Bauzeiten, innovativer Haustechnik, attraktiver Architektur und hochwertiger Manufaktur-Qualität bietet Ihnen das angebotene Schwabenhaus im “Green-Edition” All-Inclusive-Paket folgende Mehr-Werte:
- Bodenplatte inkl. Effizienzhaus 55 Perimeter-Dämmung unterhalb der Bodenplatte sowie stirnseitig
- Klima-Komfort-Bauweise für das Effizienzhaus 55
- Zimmermannsmäßiges Pfettendach
- Photovoltaik-Vorbereitung für die Ausführung eines Photovoltaik-Systems
- Komplette Elektro-, Sanitär- und Heizungs-Installation inkl. Grundinstallation für das Schwabenhaus auf Schwabenhaus-Bodenplatte bzw. -Keller*
- Zukunftsweisende Elektro-Installation*
- Abgeschirmte Lichtleitungen für moderne, störungsfreie Beleuchtung und Lichtszenarien
- Rollläden im Erd- und Obergeschoss Ihres Schwabenhauses
- Doppel-Wärmepumpe Eco* für Heizen, Kühlen, Lüften, Luftreinigung und Warmwasser
- Schwimmender Estrich mit Wärmedämmung*
- Blower-Door Test zur Überprüfung der Luftwechselrate*
- Klima-Komfort-Außenwand mit über 200 Putzfarben zur Auswahl
- Hochwertige, mehrschichtige Holz-Haustür in vielfältigen Design-Lösungen, mit Sicherheitsschließzylinder, 5-fach- Sicherheits-Verriegelung und 3-Scheiben-Wärmeschutzverglasung
- Kunststoff-Fenster mit 3-Scheiben- Wärmeschutzverglasung
- Dachflächenfenster mit Kipp- und Schwingfunktion sowie elektrischen Rollläden*, wenn laut Grundriss enthalten
- Außenfensterbänke aus Naturstein
- Innenfensterbänke aus Kunst- oder Naturstein*
- Massiv-Vollholz-Treppe
- Protect Versicherungs-Paket mit Wohngebäude-Versicherung inkl. Elementarschutz, Haus- und Wohnungs-Schutzbrief, Bauleistungs-Versicherung und Bauherren-Haftpflichtversicherung sowie Job-Protect Versicherungs-Paket
- 10 sowie 30 Jahre Gewährleistung gemäß Definition in der Schwabenhaus Bau- und Leistungsbeschreibung
*Ab Ausbaustufe "Fast-Vollendet"
¹Beim Effizienzhaus 40 Kühlung nur in Verbindung mit optionaler PV-Anlage.
Die aufgeführten Mehr-Werte und Leistungsinhalte beziehen sich ausschließlich auf das in der Schwabenhaus Bau- und Leistungsbeschreibung (BLB) beschriebene Technologie + Komfort-Paket "Green -Edition". Die Mehr-Werte und Leistungsinhalte anderer Schwabenhaus Bau- und Leistungsbeschreibungen bzw. Technologie + Komfort-Pakete können hiervon abweichen.
Lage
Lagebeschreibung – 38486 Kunrau
Das Grundstück befindet sich in der idyllischen Ortschaft Kunrau, einem Ortsteil der Stadt Klötze im Altmarkkreis Salzwedel (Sachsen-Anhalt). Eingebettet in eine naturnahe Umgebung mit Wiesen, Wäldern und kleinen Gewässern bietet der Standort eine ruhige und familienfreundliche Atmosphäre – ideal für Menschen, die das Landleben schätzen, aber dennoch eine gute Anbindung an die Infrastruktur nicht missen möchten.
Einkaufsmöglichkeiten befinden sich im nahegelegenen Klötze (ca. 10 Autominuten entfernt). Dort stehen diverse Supermärkte, Bäckereien, Apotheken und Drogerien zur Verfügung. Für den täglichen Bedarf ist also bestens gesorgt. Darüber hinaus ergänzen Wochenmärkte und kleinere regionale Anbieter das Angebot um frische, lokale Produkte.
Öffentlicher Personennahverkehr (ÖPNV): Kunrau ist an das regionale Busnetz angeschlossen, welches regelmäßige Verbindungen in die umliegenden Orte sowie nach Klötze, Gardelegen und Salzwedel bietet. Von dort bestehen weiterführende Bahnverbindungen in Richtung Wolfsburg, Magdeburg oder Hannover. So bleibt man auch ohne eigenes Auto mobil.
Bildungseinrichtungen: In Klötze sowie den angrenzenden Ortschaften befinden sich Kindertagesstätten, Grundschulen sowie weiterführende Schulen (Sekundarschule und Gymnasium). Ein Schulbusverkehr ist in der Region gut organisiert und stellt eine zuverlässige Anbindung sicher.
Freizeit und Erholung: Die Umgebung lädt zu vielfältigen Freizeitaktivitäten ein – ob Wandern, Radfahren oder Ausflüge in die umliegenden Wälder und Naturschutzgebiete. Das Schloss Kunrau mit seinem Schlosspark und die nahen Waldgebiete sind beliebte Naherholungsziele. Auch Sportvereine und kulturelle Einrichtungen in Klötze und Umgebung bieten attraktive Freizeitmöglichkeiten für alle Altersgruppen.
Verkehrsanbindung und Nähe zu größeren Städten: Kunrau liegt verkehrsgünstig zwischen Wolfsburg (ca. 35 km entfernt) und Salzwedel (ca. 25 km). Die Nähe zu Wolfsburg – dem wirtschaftlichen Zentrum der Region – macht den Ort besonders interessant für Berufspendler. In rund 30–40 Minuten erreicht man die Innenstadt von Wolfsburg mit dem Auto, wo auch ICE-Anbindungen und ein umfassendes Kultur- und Freizeitangebot zur Verfügung stehen.
Insgesamt überzeugt die Lage durch eine gelungene Kombination aus ländlicher Ruhe und guter Anbindung an die städtische Infrastruktur – ideal für Familien, Ruhesuchende und Berufspendler gleichermaßen.
Sonstige Angaben
Das Haus ist projektiert inkl. Grundstück. Das Grundstück wird in Kommission angeboten bzw. direkt von Dritten verkauft. Daher kann der o.g. Preis aufgrund aktueller Marktsituationen schwanken.
Die Bauabwicklung kann kurzfristig nach Grundstückserwerb begonnen werden. Bilder zeigen möglicherweise Sonderausstattungen, die auf Wunsch gegen Preiskorrektur zusätzlich angeboten werden können.
Fragen Sie nach unserem kostenlosen Beratungs-Service und erhalten Sie in einem persönlichen Gespräch kostenlos alle wichtigen Informationen zu diesem Projekt, insbesondere: Lage und Bebauungsmöglichkeiten des Baugrundstücks, Baukosten-Kalkulation, Finanzierungs- u. Förderungs-Möglichkeiten, detaillierte Architektur- u. Grundrissplanung, etc.
Wir freuen uns, Sie ausführlich beraten zu dürfen!
Anbauteile, Carport, Garage und Keller können Extras sein, die als Sonderausstattung angeboten werden. Abbildungen, Grundrisse und Flächenangaben sind beispielhaft und können Extras zeigen. Flächenangaben nach DIN 277.
Profitieren Sie jetzt von der Schwabenhaus Online Beratung und verwirklichen Sie Ihr Traumhaus https://www.schwabenhaus.de/anmeldung-hausbau-beratung-online/
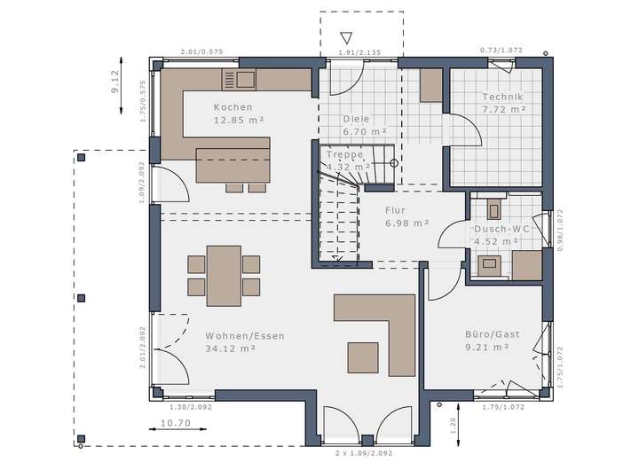
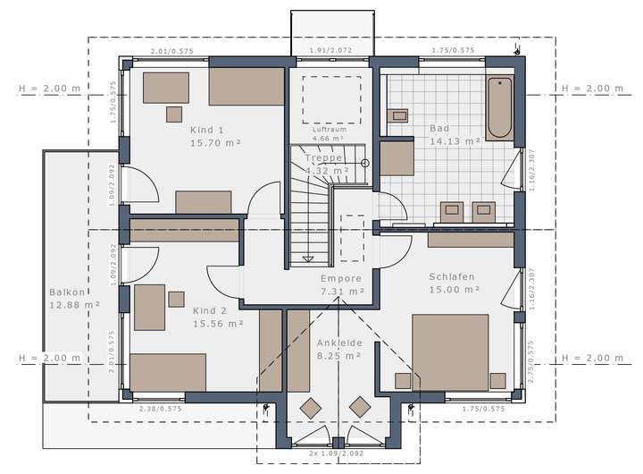
Grundriss
Grundriss Erdgeschoss
>
>
Grundriss Obergeschoss
>
>
Adresse
38486 Kunrau
Interessante Orte
Preis- und Lageinformationen
Preistrend für Bestandsimmobilien in Kunrau