Herzlich willkommen in Ihrem neuen Zuhause, das speziell für Familien und herzliche Menschen gestaltet wurde! Dieses großzügige Haus bietet nicht nur ausreichend Platz für Ihre Lieben, sondern auch eine warme und einladende Atmosphäre.
Im Erdgeschoss erwartet Sie ein geräumiges Wohnzimmer mit großen Fenstern, die viel Tageslicht hereinlassen. Die offene Küche bildet das Herz des Hauses und ist ideal für das gesellige Beisammensein. Das Esszimmer bietet Platz für gemeinsame Mahlzeiten und Feierlichkeiten.
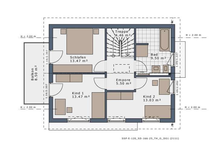
Im Obergeschoss finden Sie die Schlafzimmer, darunter ein Hauptschlafzimmer mit eigenem Bad und begehbarem Kleiderschrank, sowie weitere Zimmer für Kinder oder Gäste. Der Garten ist ein Paradies für Aktivitäten im Freien.
Wenn Sie auf der Suche nach einem Zuhause sind, das mehr als nur vier Wände bietet – ein echtes Familienheim in einer herzlichen Nachbarschaft – könnte dieses Ihr perfektes Eigenheim sein. Kontaktieren Sie uns noch heute, um eine Besichtigung zu vereinbaren!
Heimat für Herz und Seele
39167 Eichenbarleben
Die vollständige Adresse der Immobilie erhalten Sie vom Anbieter.
Auf Karte anzeigen
Die vollständige Adresse der Immobilie erhalten Sie vom Anbieter.
Finanzierungszertifikat
In nur zwei Minuten zu Ihrem persönlichen Finanzierungszertifkat.
Infos
| Haustyp | Einfamilienhaus |
|---|---|
| Wohnfläche ca. | 119 m2 |
| Nutzfläche | 0 m2 |
| Grundstücksfläche | 550 m2 |
| Zimmer | 4 |
| Schlafzimmer | 3 |
| Badezimmer | 1 |
| Anzahl Garage/Stellplatz | 0 |
Kosten
| Kaufpreis |
385.990 € |
|---|---|
| Provision | Nein |
Finanzierungsrechner:
Kaufpreis:
600.000 €
Eigenkapital:
600.000 €
Monatliche Rate
0 €
Effektiver Jahreszins
0 %
Sollzinsbindung
10 Jahre
Bausubstanz & Energieausweis
| Baujahr | 2026 |
|---|---|
| Bauphase | Haus in Planung (projektiert) |
| Qualität der Austattung | Gehoben |
| Heizungsart | Wärmepumpe |
Beschreibung des Objekts
Ausstattung
Neben kurzen Bauzeiten, innovativer Haustechnik, attraktiver Architektur und hochwertiger Manufaktur-Qualität bietet Ihnen das angebotene Schwabenhaus im “Green-Edition” All-Inclusive-Paket folgende Mehr-Werte:
- Bodenplatte inkl. Effizienzhaus 55 Perimeter-Dämmung unterhalb der Bodenplatte sowie stirnseitig
- Klima-Komfort-Bauweise für das Effizienzhaus 55
- Zimmermannsmäßiges Pfettendach
- Photovoltaik-Vorbereitung für die Ausführung eines Photovoltaik-Systems
- Komplette Elektro-, Sanitär- und Heizungs-Installation inkl. Grundinstallation für das Schwabenhaus auf Schwabenhaus-Bodenplatte bzw. -Keller*
- Zukunftsweisende Elektro-Installation*
- Abgeschirmte Lichtleitungen für moderne, störungsfreie Beleuchtung und Lichtszenarien
- Rollläden im Erd- und Obergeschoss Ihres Schwabenhauses
- Doppel-Wärmepumpe Eco* für Heizen, Kühlen, Lüften, Luftreinigung und Warmwasser
- Schwimmender Estrich mit Wärmedämmung*
- Blower-Door Test zur Überprüfung der Luftwechselrate*
- Klima-Komfort-Außenwand mit über 200 Putzfarben zur Auswahl
- Hochwertige, mehrschichtige Holz-Haustür in vielfältigen Design-Lösungen, mit Sicherheitsschließzylinder, 5-fach- Sicherheits-Verriegelung und 3-Scheiben-Wärmeschutzverglasung
- Kunststoff-Fenster mit 3-Scheiben- Wärmeschutzverglasung
- Dachflächenfenster mit Kipp- und Schwingfunktion sowie elektrischen Rollläden*, wenn laut Grundriss enthalten
- Außenfensterbänke aus Naturstein
- Innenfensterbänke aus Kunst- oder Naturstein*
- Massiv-Vollholz-Treppe
- Protect Versicherungs-Paket mit Wohngebäude-Versicherung inkl. Elementarschutz, Haus- und Wohnungs-Schutzbrief, Bauleistungs-Versicherung und Bauherren-Haftpflichtversicherung sowie Job-Protect Versicherungs-Paket
- 10 sowie 30 Jahre Gewährleistung gemäß Definition in der Schwabenhaus Bau- und Leistungsbeschreibung
*Ab Ausbaustufe "Fast-Vollendet"
¹Beim Effizienzhaus 40 Kühlung nur in Verbindung mit optionaler PV-Anlage.
Die aufgeführten Mehr-Werte und Leistungsinhalte beziehen sich ausschließlich auf das in der Schwabenhaus Bau- und Leistungsbeschreibung (BLB) beschriebene Technologie + Komfort-Paket "Green -Edition". Die Mehr-Werte und Leistungsinhalte anderer Schwabenhaus Bau- und Leistungsbeschreibungen bzw. Technologie + Komfort-Pakete können hiervon abweichen.
Lage
Im schönen, naturnahen Ortsteil Eichenbarleben der Gemeinde Hohe Börde (Landkreis Börde, Sachsen-Anhalt) entsteht Ihr neues Grundstück in ruhiger Randlage – perfekt für all jene, die ländliches Wohnen mit guter Versorgung verbinden möchten. Die Umgebung ist geprägt von der weitläufigen Landschaft der Magdeburger Börde, mit flachen bis leicht hügeligen Feldern, Wiesen und kleinen naturnahen Freiräumen – hier wohnen Sie in angenehmer Ruhe, mit dennoch guter Anbindung an das Umland.
Einkauf & Versorgung
Im Ort finden Sie moderne Einkaufsmöglichkeiten: Ein gut erreichbarer Supermarkt sorgt für den täglichen Bedarf – im Haus ist auch eine Bäckerei-Filiale untergebracht.
Ihr Landbäcker - auch in Ihrer Nähe!
Zudem sind Arzt, Apotheke und Handwerksbetriebe in kurzer Nähe vorhanden – eine ausgewogene Nahversorgung, die den Alltag bequem macht.
Öffentlicher Nahverkehr (ÖPNV) & Mobilität
Auch mit öffentlichen Verkehrsmitteln sind Sie gut angebunden: So verkehrt etwa die Buslinie 612, die unter anderem zur zentralen Haltestelle „Magdeburg ZOB“ führt.
Damit ist auch eine Anbindung an die Landeshauptstadt Magdeburg gegeben – ideal für Pendler oder Ausflüge. Zusätzlich ergänzen alternative Mobilitätsangebote wie Mitfahrbänke das Angebot vor Ort.
Schulen & Betreuung
Für Familien ist gesorgt: Die Grundschule „Olbetal“ befindet sich im Ortsteil und bietet eine schulische Basis.
Zudem gibt es örtliche Kindertagesstätten und ein „Haus der Generationen“, das Betreuung, Gemeinschaftsangebote und Vereine unter einem Dach vereint.
Freizeit & Natur
Die Lage des Grundstücks lädt zu naturnaher Freizeitgestaltung ein: Spaziergänge durch die nähere Umgebung, Ausflüge in den historischen Schlosspark von Eichenbarleben oder Radtouren durch die Börde-Landschaft gehören zum Tagesablauf.
Das örtliche Vereins- und Gemeinschaftsleben ist aktiv – zahlreiche Vereine bieten Sport, Brauchtum und Kultur, wodurch ein lebendiges Miteinander entsteht.
Hohe Börde
Nähe zu größeren Städten & Verkehrsanbindung
Die Nähe zur Landeshauptstadt Magdeburg sorgt dafür, dass Sie nicht auf die Vorteile städtischer Infrastruktur verzichten müssen – zugleich genießen Sie die Vorzüge ruhigen Wohnens im Grünen. Sie erreichen Magdeburg mit dem Auto in rund 10 Minuten.
Auch überregional sind Sie durch die nahegelegene Bundesstraße B1 sowie über die Autobahn (z. B. Autobahn A2) gut angebunden.
Fazit
Ihr Grundstück in der Ortslage von Eichenbarleben verbindet ländliche Idylle mit ausgewogener Infrastruktur: Einkaufsmöglichkeiten, ÖPNV-Anbindung, schulische Betreuung und Naherholung sind vorhanden – und gleichzeitig sind Sie schnell in einer größeren Stadt unterwegs. Ideal für ruhiges Wohnen mit Komfort und Anschluss.
Sonstige Angaben
Das Haus ist projektiert inkl. Grundstück. Das Grundstück wird in Kommission angeboten bzw. direkt von Dritten verkauft. Daher kann der o.g. Preis aufgrund aktueller Marktsituationen schwanken.
Die Bauabwicklung kann kurzfristig nach Grundstückserwerb begonnen werden. Bilder zeigen möglicherweise Sonderausstattungen, die auf Wunsch gegen Preiskorrektur zusätzlich angeboten werden können.
Fragen Sie nach unserem kostenlosen Beratungs-Service und erhalten Sie in einem persönlichen Gespräch kostenlos alle wichtigen Informationen zu diesem Projekt, insbesondere: Lage und Bebauungsmöglichkeiten des Baugrundstücks, Baukosten-Kalkulation, Finanzierungs- u. Förderungs-Möglichkeiten, detaillierte Architektur- u. Grundrissplanung, etc.
Wir freuen uns, Sie ausführlich beraten zu dürfen!
Anbauteile, Carport, Garage und Keller können Extras sein, die als Sonderausstattung angeboten werden. Abbildungen, Grundrisse und Flächenangaben sind beispielhaft und können Extras zeigen. Flächenangaben nach DIN 277.
Profitieren Sie jetzt von der Schwabenhaus Online Beratung und verwirklichen Sie Ihr Traumhaus https://www.schwabenhaus.de/anmeldung-hausbau-beratung-online/
Grundriss
Grundriss Erdgeschoss
>
>
Grundriss Obergeschoss
>
>
Adresse
39167 Eichenbarleben
Interessante Orte
Preis- und Lageinformationen
Preistrend für Bestandsimmobilien in Eichenbarleben