Das einladende Sitzfenster im Erker bietet eine perfekte Ecke zum Lesen oder als zusätzlichen Platz beim Essen.
Das Konzept "Mehrere Generationen unter einem Dach" erlebt eine Renaissance und wird wieder geschätzt. Es ist essenziell, dass jeder Bewohner - ob jung oder alt - den gleichen Komfort genießt. Idealerweise passt sich das Mehrgenerationenhaus flexibel an veränderte Lebensumstände an. Eine zweite Wohneinheit kann beispielsweise als Studentenwohnung genutzt oder vermietet werden. Dieses elegante Satteldachhaus zeigt, wie modernes Mehrgenerationen-Wohnen funktionieren kann. Der Hauptbaukörper erstreckt sich auf zwei Ebenen und wird durch einen großen Anbau mit ebenfalls Satteldach ergänzt. Dadurch entsteht ein harmonisches Gesamtbild mit zusätzlichem Stauraum auf dem Dachboden. Ein besonderer Blickfang sind die blaugrau abgesetzten Erker, die dem Ensemble Frische verleihen.
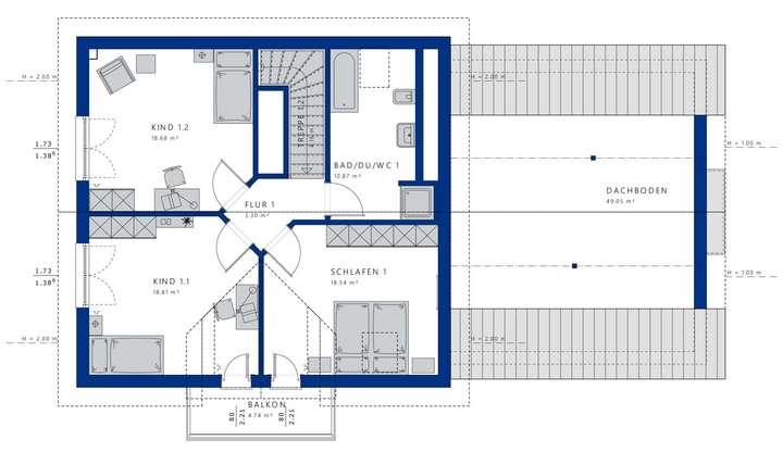
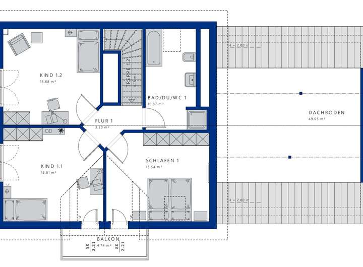
Im Haupthaus erwartet eine Familie mit bis zu zwei Kindern komfortables Wohnen mit weitläufigen Gemeinschaftsflächen und gemütlichen Rückzugsorten. Über die Hälfte der Erdgeschossfläche nimmt der offene Wohn-, Ess- und Kochbereich ein, wobei bodentiefe Fenster den Garten einbinden und viel Tageslicht hereinlassen. An warmen Tagen können diese Fenster weit geöffnet werden, sodass die Terrasse Teil des Wohnbereichs wird. In der vorderen Erdgeschosshälfte befinden sich das Gäste-WC, zugänglich über den Garderobenbereich, eine Abstellkammer sowie ein helles Arbeitszimmer. Das Dachgeschoss umfasst das gut geschnittene Elternschlafzimmer mit Balkonzugang, das Familienbad und zwei gleich große Kinderzimmer - ideal zur Vermeidung von Streitigkeiten. Die barrierefreie Einliegerwohnung im Anbau ist perfekt für ältere Paare oder Singles geeignet. Der Wohn-, Ess- und Kochbereich schließt nahtlos an die Diele an; das Sitzfenster im Erker dient als gemütliche Leseecke oder zusätzlicher Sitzplatz beim Essen. Ergänzt wird das Raumangebot durch ein Schlafzimmer mit angrenzendem Ankleidebereich und ein komfortables Badezimmer.
Grundrisse und Abbildungen können Extras zeigen. Flächenangaben nach DIN 277.
Bien-Zenker: Modernes Wohnen (mit Einliegerwohnung) im Hamburger Stadtteil - Volksdorf
22359 Hamburg
Die vollständige Adresse der Immobilie erhalten Sie vom Anbieter.
Auf Karte anzeigen
Die vollständige Adresse der Immobilie erhalten Sie vom Anbieter.
Finanzierungszertifikat
In nur zwei Minuten zu Ihrem persönlichen Finanzierungszertifkat.
Infos
| Haustyp | Mehrfamilienhaus |
|---|---|
| Wohnfläche ca. | 205 m2 |
| Grundstücksfläche | 950 m2 |
| Zimmer | 7 |
Kosten
| Kaufpreis |
1.530.400 € |
|---|
Finanzierungsrechner:
Kaufpreis:
600.000 €
Eigenkapital:
600.000 €
Monatliche Rate
0 €
Effektiver Jahreszins
0 %
Sollzinsbindung
10 Jahre
Bausubstanz & Energieausweis
| Baujahr | unbekannt |
|---|---|
| Bauphase | Haus in Planung (projektiert) |
| Qualität der Austattung | Gehoben |
Beschreibung des Objekts
Ausstattung
Schlüsselfertig!
Bei einem Bien-Zenker Fertighaus bedeutet "Schlüsselfertig" wirklich "Schlüsselfertig". Viele Bauherren wünschen sich nichts sehnlicher, als einfach in ihr fertiggestelltes Haus einzuziehen - sorgenfrei bauen ohne Stress, da weder Job noch Familie Eigenleistungen erlauben könnten oder einfach weil es Freude macht, den Spezialisten bei ihrer Arbeit zuzusehen.
In der Ausbaustufe "Schlüsselfertig" übernehmen wir von Bien-Zenker alles für Sie: Unsere Bauherren bekommen die Hausschlüssel und ziehen in ihren neuen Lebensraum ein. Wir montieren schnell und präzise vorgefertigte Hauselemente meist innerhalb von nur zwei Tagen auf Ihrem Grundstück und erledigen danach alle Innenausbauarbeiten Schritt für Schritt. So können Sie sich entspannt auf Ihren Einzug freuen und die gesparte Zeit für andere Planungen nutzen. Selbstverständlich haben Sie auf sämtliche Leistungen die übliche Bien-Zenker Gewährleistung.
Lage
Im grünen Hamburger Stadtteil - Volksdorf mit guter Anbindung!
Sonstige Angaben
Der hier angegebene Wert zur Grunderwerbsteuer ist automatisiert vom Portalbetreiber ermittelt und stimmt nicht unbedingt mit der Realität überein, da sie lediglich auf den Grundstückswert des Angebots berechnet wird.
Inkludiert sind PV-Anlage und Speicher für die eigene Stromversorgung.
Auf Wunsch können alle Kriterien für eine KFN-QNG Förderung erfüllt werden.
Die gezeigten Hausabbildungen beinhalten Sonderwünsche.
Grundrisse sind individuell änderbar.
Auf Wunsch ist auch ein Keller möglich.
Grundriss
EG
>
>
DG
>
>
Adresse
22359 Hamburg
Interessante Orte
Preis- und Lageinformationen
Preistrend für Bestandsimmobilien in Volksdorf