HINWEIS: Rösner & Partner Immobilien bietet im Rahmen dieser Anzeige ausschließlich einen Grundstücksanteil zum Verkauf an.
Ein Verkauf eines Bauvorhabens oder eines bebauten Grundstücks ist nicht Gegenstand dieses Angebots. Rösner & Partner Immobilien ist weder an der Planung, Entwicklung noch an der Ausführung eines Bauvorhabens beteiligt. Die in der Anzeige dargestellten Abbildungen, Visualisierungen und Planunterlagen stammen ausschließlich von unserem Kunden und dienen lediglich der unverbindlichen Veranschaulichung.
Für die inhaltliche Richtigkeit, Vollständigkeit und Umsetzbarkeit der dargestellten Planungen sowie für sämtliche baurechtlichen, technischen, wirtschaftlichen oder rechtlichen Aspekte des Bauvorhabens übernimmt Rösner & Partner Immobilien keinerlei Haftung oder Verantwortung. Sämtliche Entscheidungen und Verpflichtungen im Zusammenhang mit der Planung und Realisierung eines Bauvorhabens obliegen ausschließlich den jeweiligen Vertragsparteien.
Rösner & Partner Immobilien begleitet eine junge Familie bei der Suche nach einem geeigneten Baupartner für die gemeinsame Realisierung eines Doppelhauses in ruhiger und gefragter Wohnlage von Hofheim-Marxheim.
Gegenstand dieses Angebots ist die rechte Grundstückshälfte mit einer Fläche von ca. 352 m², auf der die Errichtung einer weiteren Doppelhaushälfte vorgesehen ist.
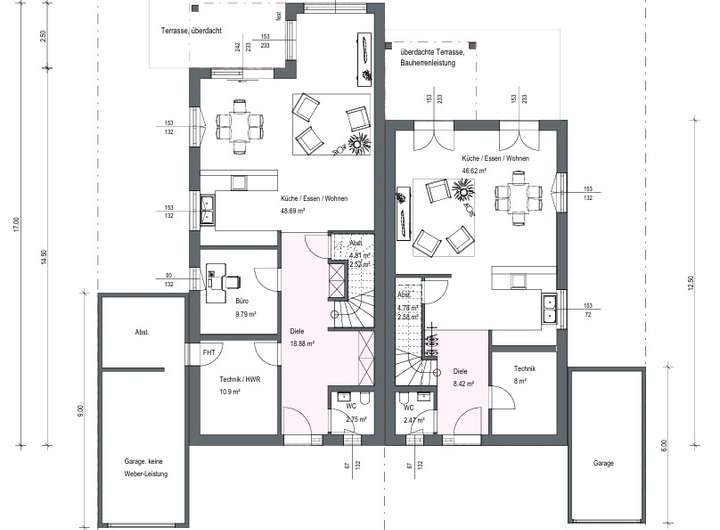
In Abstimmung mit einer Fertighausfirma wurden zwei unverbindliche Bebauungsvarianten entwickelt, die eine grobe Kosteneinschätzung und somit eine erste preisliche Orientierung ermöglichen. Für die angebotene rechte Grundstückshälfte wurde hierzu eine exemplarische Planung durch die Fertighausfirma erstellt, die in den dargestellten Grundrissen veranschaulicht wird.
Variante 1 Haus links: ca. 194 m² Wfl., ca. EUR 630.000.– schlüsselfertig, ohne Garage, zzgl. Grundstück (diese Seite & Variante hat sich bereits unser Kunde ausgesucht)
Variante 2 Haus rechts: ca. 135 m² Wfl., ca. EUR 450.000.– schlüsselfertig, ohne Garage, zzgl. Grundstück (Änderungen können mit Fertighausfirma besprochen werden)
Vorgesehene Ausführung:
– Flachdach mit Dachbegrünung (gemäß behördlicher Vorgaben)
– Raumhöhe im Erdgeschoss ca. 2,74 m in beiden Haushälften, im Obergeschoss übliche Raumhöhe
Zusätzliche Kosten (keine Gewähr auf Vollständigkeit):
– Abriss des Bestandsgebäudes
– Grundstücksanteil ca. 352 m² zum Kaufpreis von EUR 410.000.– zzgl. 3,57 % Käuferprovision inkl. 19 % MwSt.
– Baunebenkosten (u. a. Grundstücksteilung, getrennte Versorgungsanschlüsse)
– Vermessung des Grundstücks
– Garage oder Carport
Details zu den Häusern sind mit der Fertighausfirma unserer Kunden selbständig zu besprechen!
Es wird nochmals ausdrücklich darauf hingewiesen, dass Gegenstand dieses Angebots ausschließlich der Verkauf eines Grundstücksanteils ist. Ein Bauvertrag, die Planung oder die Ausführung eines Bauvorhabens sind nicht Bestandteil des Angebots und obliegen ausschließlich den jeweiligen Vertragsparteien.
Das Team von Rösner & Partner Immobilien steht Ihnen gerne für weitere Informationen und Terminvereinbarungen zur Verfügung.
*Grundstückshälfte*Baupartner gesucht für DHH in Marxheim*Familie sucht freundliche Nachbarn*
65719 Hofheim am Taunus
Die vollständige Adresse der Immobilie erhalten Sie vom Anbieter.
Auf Karte anzeigen
Die vollständige Adresse der Immobilie erhalten Sie vom Anbieter.
Finanzierungszertifikat
In nur zwei Minuten zu Ihrem persönlichen Finanzierungszertifkat.
Infos
| Haustyp | Doppelhaushaelfte |
|---|---|
| Wohnfläche ca. | 0 m2 |
| Grundstücksfläche | 352 m2 |
| Zimmer | 1 |
Kosten
| Kaufpreis |
410.000 € |
|---|---|
| Provision |
3,57 % inklusive 19% gesetzlicher Mehrwertsteuer Im Erfolgsfall berechnen wir eine Käuferprovision in Höhe von 3,57 % inklusive 19 % gesetzlicher Mehrwertsteuer des beurkundeten Kaufpreises. |
Finanzierungsrechner:
Kaufpreis:
600.000 €
Eigenkapital:
600.000 €
Monatliche Rate
0 €
Effektiver Jahreszins
0 %
Sollzinsbindung
10 Jahre
Bausubstanz & Energieausweis
| Baujahr | unbekannt |
|---|
Beschreibung des Objekts
Lage
Hofheim am Taunus / Stadtteil Marxheim
Hofheim am Taunus ist die Kreisstadt des Main-Taunus-Kreises und zählt zu den begehrtesten Wohnorten im Rhein-Main-Gebiet. Der Stadtteil Marxheim überzeugt durch seine ruhige, familienfreundliche Atmosphäre, gewachsene Wohnstrukturen und die unmittelbare Nähe zu Natur, städtischer Infrastruktur sowie exzellenten Verkehrsverbindungen. Die Lage verbindet naturnahes Wohnen mit urbaner Lebensqualität und eignet sich ideal für Familien, Berufstätige und Ruhesuchende gleichermaßen.
Bildung und Kinderbetreuung: Marxheim bietet eine sehr gute Auswahl an Kindergärten und Schulen. In kurzer Entfernung befinden sich mehrere Betreuungseinrichtungen, darunter die städtische Kindertagesstätte Marxheim, die katholische Kindertagesstätte St. Georg sowie die Kindertagesstätte Pusteblume. Für die Kleinsten stehen zudem Tagespflegeangebote zur Verfügung. Im schulischen Bereich überzeugt Hofheim durch ein breites Spektrum. Die Heiligenstockschule ist eine Grundschule direkt im Stadtteil, während die Gesamtschule am Rosenberg mit gymnasialer Oberstufe ein vielfältiges Bildungsangebot für ältere Schüler bietet. Die renommierte Main-Taunus-Schule ist ein Gymnasium mit exzellentem Ruf und großem Einzugsgebiet. Alternativ steht die Montessori-Schule Main-Taunus mit ihren reformpädagogischen Ansätzen von der Grundschule bis zur Sekundarstufe zur Verfügung.
Verkehrsanbindung und ÖPNV: Die Verkehrsanbindung ist sowohl für den Individualverkehr als auch für den öffentlichen Nahverkehr hervorragend. Mehrere Buslinien verbinden die umliegenden Wohngebiete mit dem Stadtzentrum sowie dem Bahnhof Hofheim. Von dort aus fährt die S-Bahn-Linie S2 in kurzen Takten in Richtung Frankfurt am Main, Offenbach und Dietzenbach, in Gegenrichtung nach Niedernhausen. Ergänzt wird das Angebot durch den Regionalexpress und die Regionalbahn, die von Limburg über Hofheim nach Frankfurt Hauptbahnhof verkehren beziehungsweise von Hofheim bis Bensheim führen. Die Fahrzeit zum Frankfurter Hauptbahnhof beträgt rund 25 Minuten. Autofahrer profitieren von der schnellen Anbindung an die Autobahnen A66, A3 und A5. Der Frankfurter Flughafen ist in etwa 20 Minuten erreichbar, ebenso wie die Wirtschaftsstandorte Eschborn, Frankfurt Messe oder Wiesbaden. Auch das Main-Taunus-Zentrum in Sulzbach ist nur wenige Kilometer entfernt.
Nahversorgung und medizinische Infrastruktur: Die Versorgung im Alltag ist durch ein breites Angebot an Supermärkten, Bäckereien, Metzgereien, Drogerien und Apotheken sehr komfortabel. Im nahegelegenen Stadtzentrum von Hofheim finden sich zudem zahlreiche Einzelhändler, Banken, Dienstleister sowie gastronomische Angebote. Die medizinische Versorgung ist hervorragend aufgestellt. Mehrere Allgemeinmediziner, Fachärzte, Apotheken sowie das Facharztzentrum Hofheim sorgen für gesundheitliche Sicherheit. Ergänzt wird dies durch das Krankenhaus Hofheim sowie das nahegelegene Krankenhaus Bad Soden, die beide mit vielfältigen Fachabteilungen umfassende Behandlungsmöglichkeiten bieten.
Freizeit, Natur und Erholung: Die Umgebung bietet zahlreiche Möglichkeiten zur Erholung im Grünen. Spaziergänge oder Fahrradtouren führen direkt ins Umland des Taunus, in den Regionalpark RheinMain oder zum beliebten Naherholungsgebiet Kapellenberg. Die Rhein-Main-Therme im Stadtteil Hofheim-Nord, nahe der Grenze zu Kelkheim, lädt mit Sauna, Schwimmbädern und Wellnessangeboten zum Entspannen ein. Im Sommer bieten Sportanlagen, Tennisplätze und Fußballfelder vielfältige Gelegenheiten zur aktiven Freizeitgestaltung. Für Kulturinteressierte sorgen das Stadtmuseum, das Kulturzentrum im Alten Wasserschloss und regelmäßige Veranstaltungen für ein lebendiges Stadtleben.
Fazit: Die Lage bietet eine ideale Kombination aus Ruhe, guter Erreichbarkeit, Bildungseinrichtungen, Nahversorgung und vielfältigen Freizeitmöglichkeiten.
Sonstige Angaben
Wir weisen darauf hin, dass unsere Angebote für den Erwerber provisionspflichtig sind. Im Erfolgsfall werden wir eine Käuferprovision in Höhe von 3,57 % inklusive 19 % gesetzlicher Mehrwertsteuer des beurkundeten Kaufpreises in Rechnung stellen. Alle unsere Angebote sind freibleibend. Ein Zwischenverkauf, Irrtümer und Auslassungen bleiben vorbehalten. Für die vom Eigentümer stammenden Objektdaten können wir keine Haftung hinsichtlich der Größe, des Zustands und Beschaffenheit übernehmen. Durch Ihre Immobilienanfrage erklären Sie sich als Interessent einverstanden, dass Rösner & Partner Immobilien Ihre Kontaktdaten erfasst.
Geldwäschegesetz (GwG): Gemäß § 2 Absatz 1 Nr. 10 GwG ist unser Immobilienvertriebsbüro verpflichtet bei Kontaktaufnahme die Identität des Kunden festzustellen. Zu diesem Zweck erheben wir Ihre persönlichen Daten (Name, Anschrift, Geburtsdatum, Geburtsort und Nationalität) vor Anbahnung einer Geschäftsbeziehung. Dies erfolgt mittels einer Kopie Ihres Personalausweises oder durch die schriftliche Aufnahme durch einen unserer Mitarbeiter. Bei Firmen und juristischen Personen ist ein aktueller Handelsregisterauszug notwendig.
Adresse
65719 Hofheim am Taunus
Interessante Orte
Preis- und Lageinformationen
Preistrend für Bestandsimmobilien in Hofheim am Taunus