Objektnr: 1064412
Die perfekte Wahl für all jene, die viel Wert auf ein großes Platzangebot legen, bieten wir Ihnen mit diesem Objekt. Die gut angebundene Lage im Hamburger Süden ermöglicht es Ihnen, Ruhe und gleichzeitig einen guten Anschluss an Stadtzentren, Schulen, Einkaufszentren und andere Einrichtungen zu genießen. Dank eines stets pfleglichen Umgangs präsentiert sich die 1978 erbaute Immobilie heute in einem einladenden Zustand. Jüngste Modernisierungen fanden 2008 statt.
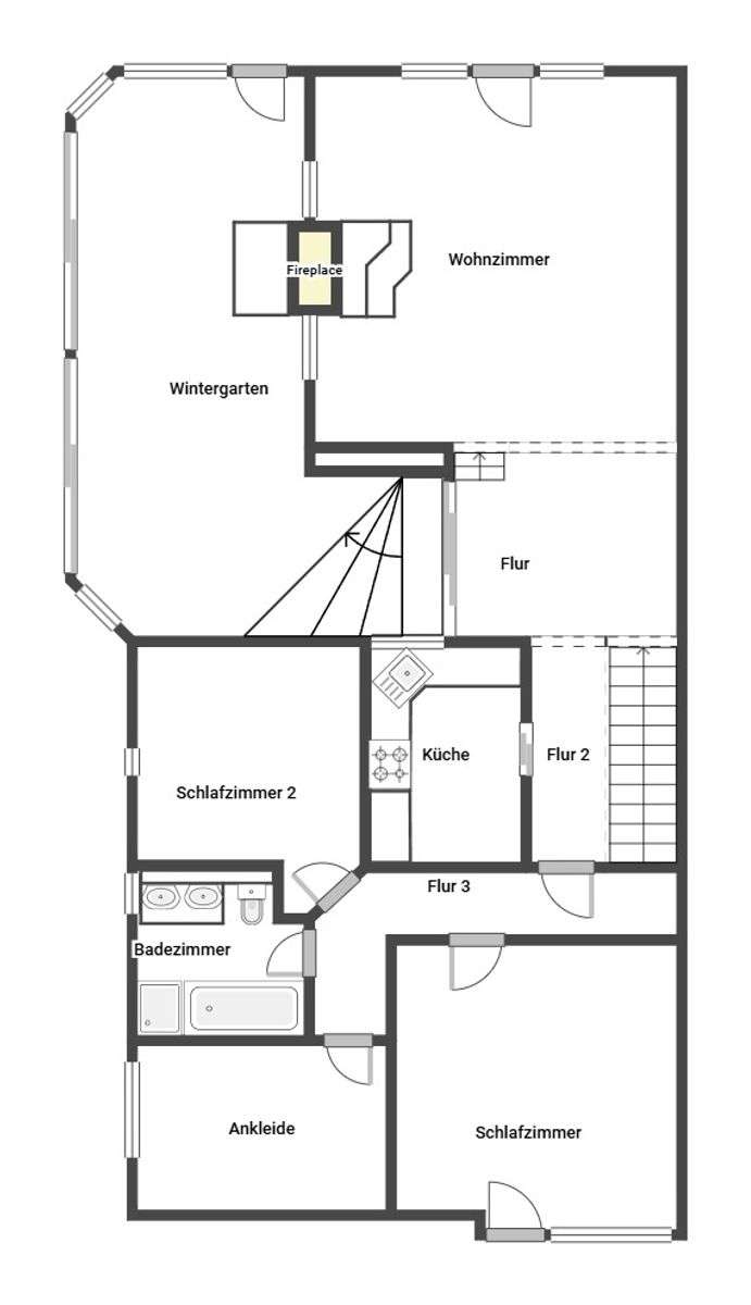
Die Wohnfläche von etwa 210 m² umspannt insgesamt 6 Zimmer, darunter 3 separierte Schlafzimmer und gute Möglichkeiten für Home-Office. Dadurch kann die Immobilie nicht nur Paaren, sondern auch Familien ein neues Zuhause bieten. Ebenfalls zum Grundriss der Immobilie gehören ein Badezimmer mit Dusche und Badewanne sowie Gäste-WC. Viele Köpfe, viele Hobbys, viele Ideen: Dank der großen Raumvielfalt können Sie das Zuhause nutzen, wie es Ihnen gefällt. Hervorzuheben sind zudem der Wärme spendende Kaminofen und der Kachelofen, die an kühlen Tagen für ein gutes Wohnambiente sorgen. Eine Einbauküche und ein Fliesenboden gehören ebenfalls zu den Ausstattungsmerkmalen. Gönnen Sie sich pure Entspannung und unvergessliche Momente zuhause auch dank des beheizten Wintergartens, der für Exklusivität sorgt.
Momente im Freien bieten Ihnen hier nicht nur ein kleiner Balkon, sondern auch ein ca. 850 m² großes Grundstück. Für ein Mehr an Stau- und Nutzfläche verfügen Sie über einen im Erdgeschoss integrierten Kellerraum. Zudem ist das komfortable Abstellen Ihres Pkw mithilfe eines Carports möglich. Zusätzlich steht ein Ladeanschluss für E-Autos bereit.
Zuhause ankommen: Stilvolle DHH mit Garten, Kamin und sonnigem Wintergarten
21077 Hamburg
Die vollständige Adresse der Immobilie erhalten Sie vom Anbieter.
Auf Karte anzeigen
Die vollständige Adresse der Immobilie erhalten Sie vom Anbieter.
Finanzierungszertifikat
In nur zwei Minuten zu Ihrem persönlichen Finanzierungszertifkat.
Infos
| Haustyp | Doppelhaushaelfte |
|---|---|
| Etagenzahl | 1 |
| Wohnfläche ca. | 210 m2 |
| Grundstücksfläche | 850,04 m2 |
| Bezugsfrei ab | ab sofort |
| Zimmer | 6 |
| Schlafzimmer | 2 |
| Badezimmer | 1 |
| Garage/Stellplatz | Carport |
| Anzahl Garage/Stellplatz | 1 |
Kosten
| Kaufpreis |
658.000 € |
|---|---|
| Provision |
3,57 % Die Provision i.H.v. 3,57 % inkl. MwSt. ist mit Kaufvertragsbeurkundung fällig, sofern der Verkaufspreis über 83.000,00 € liegt. Liegt der Verkaufspreis dagegen bei/unter 83.000,00 €, ist die fest vereinbarte Mindestprovision i.H.v. mind. 5.950,00 € inkl. MwSt. mit Kaufvertragsbeurkundung fällig. Die Mindestprovision fällt insg. nur einmal an, wodurch Verkäufer und Käufer die Mindestprovision dann jeweils mit 2.975,00 € inkl. MwSt. tragen. |
Finanzierungsrechner:
Kaufpreis:
600.000 €
Eigenkapital:
600.000 €
Monatliche Rate
0 €
Effektiver Jahreszins
0 %
Sollzinsbindung
10 Jahre
Bausubstanz & Energieausweis
| Baujahr | 1978 |
|---|---|
| Letzte Sanierung | 2008 |
| Bauphase | Haus fertig gestellt |
| Objektzustand | Gepflegt |
| Qualität der Austattung | Normal |
| Heizungsart | Zentralheizung |
| Wesentliche Energieträger | Gas |
| Energieausweis | liegt vor |
| Energieausweistyp | Bedarfsausweis |
| Energieverbrauchskennwert | 172,8 kWh/(m²*a) |
| Energieeffizienzklasse | F |
172,8
kWh/(m²*a)
Energieeffizienzklasse F
- A+
- A
- B
- C
- D
- E
- F
- G
- H
- 0
- 25
- 50
- 75
- 100
- 125
- 150
- 175
- 200
- 225
- >250
Beschreibung des Objekts
Ausstattung
+ In ruhiger Umgebung in Vorstadtlage von Hamburg, ideal als Ihr neues Eigenheim
+ Der teils sichtgeschützte Süd-Garten auf übersichtlichem Grund lädt zum Verweilen ein - ein Balkon und ein beheizter Wintergarten bereichern das Erlebnis
+ Die Immobilie präsentiert sich in einem gepflegten Zustand - die letzten Modernisierungsmaßnahmen erfolgten im Jahr 2008
+ Komfort durch eine solide Ausstattung des Hauses mit Raumvielfalt, welche eine Einbauküche, einen Kaminofen und einen Kachelofen umfasst - Wellness-Highlight: Whirlpool Badewanne, Sauna
+ Das Objekt, das sich auch an Tierhalter richtet, bietet Staufläche dank eines Kellerraums sowie ein Carports - eine Ladestation für E-Autos ist ebenfalls vorhanden
+ PV-Anlage, Kamin- und Kachelofen
Lage
Lage: Idyllische Vorstadtlage in einer Sackgasse bietet ruhige, friedliche Umgebung für Ruhesuchende
Bildung und Betreuung: Familienfreundliche Lage dank Kindergärten und Schulen in fußläufiger Entfernung
Nahversorgung: Supermarkt in ca. 1,1 km, Apotheke und Postfiliale fußläufig
Anbindung: Bushaltestelle fußläufig, 4 km bis Bahnhof, Autobahn komfortabel erreichbar
Sonstige Angaben
Vereinbaren Sie noch heute einen Besichtigungstermin!
_____________________________________________________
Alle Angaben sind ohne Gewähr und basieren ausschließlich auf Informationen, die uns von unserem Auftraggeber zur Verfügung gestellt wurden. Wir übernehmen keine Gewähr für die Vollständigkeit, Richtigkeit und Aktualität der Angaben.
Grundriss
Grundriss Skizze EG
>
>
Grundriss Skizze UG
>
>
Adresse
21077 Hamburg
Interessante Orte
Preis- und Lageinformationen
Preistrend für Bestandsimmobilien in Eißendorf