Dieses gepflegte Wohn- und Geschäftshaus mit drei Einheiten vereint Wohnen und Arbeiten unter einem Dach und überzeugt durch seine zentrale Lage in Neu-Anspach. Ob für Kapitalanleger, Gewerbetreibende oder Eigennutzer mit der Option zusätzlicher Mieteinnahmen – diese Immobilie bietet vielfältige Möglichkeiten auf insgesamt ca. 224 m² Wohn- und Geschäftsfläche, ergänzt durch praktische Nebenflächen und großzügige Außenbereiche. Derzeit sind zwei Wohneinheiten vermietet.
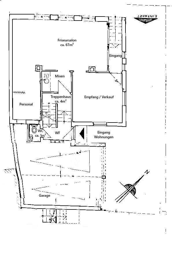
Im Hochparterre des Hauses befindet sich eine ca. 60 m² große Einheit, welche in der Vergangenheit als Friseursalon genutzt wurde. Diese Einheit ist flexibel nutzbar zu Gewerbezwecken oder als zusätzlicher Wohnraum.
Im ersten Obergeschoss befindet sich eine charmante Zweizimmerwohnung mit ca. 50m² Wohnfläche und einem offen gestalteten Wohn- und Essbereich und Küche. Der Wohnbereich und das Schlafzimmer sind mit hellem Laminatboden inklusive Fußbodenheizung ausgestattet.
Ein gefliestes Tageslicht-Wannenbad bietet zudem viel Platz. Über eine Außentreppe gelangt man von dieser Wohnung aus in einen gepflegten, eingewachsenen und gut nutzbaren Garten. Der Garten steht derzeit dem Mieter dieser Wohneinheit zur alleinigen Nutzung zur Verfügung und schafft einen idyllischer Rückzugsort, der zum Entspannen einlädt.
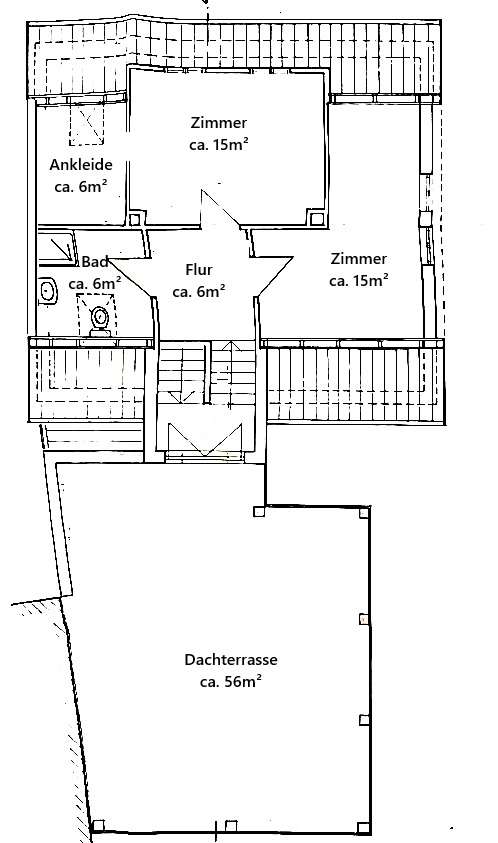
Eine großzügige Maisonettewohnung mit ca. 56m² großer Dachterrasse erstreckt sich über das Ober- und Dachgeschoss und bietet auf ca. 110 m² Wohnfläche ein besonders komfortables Wohngefühl. Der offene Wohn- und Essbereich punktet mit hochwertigem Kirschholzparkett, einem gemütlichen Kamin und drei großen Fenstern, die für viel Lichteinfall sorgen. Die helle Einbauküche mit praktischer Abstellkammer ist gut und funktional ausgestattet, hält viel Staufläche bereit und bietet zusätzlich Platz für einen kleinen Essbereich. Ein geräumiges Tageslichtbad vervollständigt diese Ebene.
Im Dachgeschoss gibt es neben einem gemütlichen Schlafzimmer mit angrenzendem Ankleidebereich, ein weiteres Tageslicht-Duschbad sowie ein weiteres, flexibel nutzbares Zimmer. Dank des hohen Kniestocks im Dachgeschoss und praktischen Einbauschränken ist viel Stauraum und Stellfläche vorhanden. Zudem wurden im Obergeschoss vor zwei Jahren die Fenster erneuert.
Das Highlight dieser Einheit ist die große Dachterrasse mit Panoramablick.
Ergänzt wird das Angebot durch eine gemeinschaftlich genutzte Waschküche im Keller, einen Heizraum mit neuer Viessmann-Heizungsanlage sowie je einen Kellerraum pro Wohneinheit. Für den nötigen Parkraum sorgt eine große Garage mit elektrischem Rolltor sowie zwei davorliegende Außenstellplätze.
Insgesamt präsentiert sich dieses Wohn- und Geschäftshaus als attraktives Gesamtpaket, insbesondere als solide Kapitalanlage mit viel Potenzial.
In zentraler Lage von Neu-Anspach - flexibel nutzbares, solides Wohn- und Geschäftshaus mit Garage
61267 Neu-Anspach
Die vollständige Adresse der Immobilie erhalten Sie vom Anbieter.
Auf Karte anzeigen
Die vollständige Adresse der Immobilie erhalten Sie vom Anbieter.
Finanzierungszertifikat
In nur zwei Minuten zu Ihrem persönlichen Finanzierungszertifkat.
Infos
| Wohnfläche ca. | 163 m2 |
|---|---|
| Nutzfläche | 166 m2 |
| Grundstücksfläche | 361 m2 |
| Zimmer | 5 |
| Schlafzimmer | 3 |
| Badezimmer | 3 |
| Garage/Stellplatz | Garage |
| Anzahl Garage/Stellplatz | 1 |
Kosten
| Kaufpreis |
499.000 € |
|---|---|
| Provision |
Käuferprovision beträgt 3,57 % (inkl. MwSt.) des beurkundeten Kaufpreises |
Finanzierungsrechner:
Kaufpreis:
600.000 €
Eigenkapital:
600.000 €
Monatliche Rate
0 €
Effektiver Jahreszins
0 %
Sollzinsbindung
10 Jahre
Bausubstanz & Energieausweis
| Baujahr | 1928 |
|---|---|
| Letzte Sanierung | 2023 |
| Bauphase | Haus fertig gestellt |
| Objektzustand | Gepflegt |
| Heizungsart | Fußbodenheizung |
| Wesentliche Energieträger | Gas |
| Energieausweis | liegt vor |
| Energieausweistyp | Bedarfsausweis |
| Energieverbrauchskennwert | 210,1 kWh/(m²*a) |
| Energieeffizienzklasse | G |
210,1
kWh/(m²*a)
Energieeffizienzklasse G
- A+
- A
- B
- C
- D
- E
- F
- G
- H
- 0
- 25
- 50
- 75
- 100
- 125
- 150
- 175
- 200
- 225
- >250
Beschreibung des Objekts
Ausstattung
- Wohn- und Geschäftshaus mit drei Einheiten (zwei Wohneinheiten sind vermietet)
- Gewerbeeinheit im Hochparterre mit ca. 60 m²
- Zweizimmerwohnung im Obergeschoss mit ca. 50 m² Wohnfläche, Fußbodenheizung, Zugang zum Garten und Terrasse
- Maisonette-Wohnung mit ca. 110 m² Wohnfläche, Kamin und ca. 56 m² großer Dachterrasse
- Erdgasheizung aus 2023
- zweifach verglaste Kunststofffenster
- Strom-, Wasser- und Elektroleitungen aus 1985
- zwei Einbauküchen und eine Kitchenette
- drei Tageslichtbäder (renovierungsbedürftig)
- zwei Gäste-WC
- Hauswirtschaftsraum mit Waschmaschinenanschlüssen
- drei abschließbare Kellerräume
- eingewachsener Garten
- große Garage mit elektronischem Rolltor
- zwei Außenstellplätze
- gepflasterter Hof
Lage
Die Stadt Neu-Anspach befindet sich im Naturpark Hochtaunus und gliedert sich in die 4 Stadtteile Anspach, Rod am Berg, Westerfeld und Hausen-Arnsbach. Neu-Anspach genießt direkte Anbindung an die Kurstadt Bad Homburg, wie auch in die Rhein-Main-Metropole Frankfurt am Main.
Hier hat man die Natur und alle damit verbundenen Freizeitmöglichkeiten vor der Haustür und muss gleichzeitig auf keinerlei Annehmlichkeiten verzichten.
Die Infrastruktur lässt keine Wünsche offen. Ein kleines Einkaufcenter ist fußläufig erreichbar. Darüber hinaus existieren in Neu-Anspach auch Bäcker und Metzger, die noch echtes Handwerk betreiben. Zahlreiche Landwirte in der Umgebung verfügen über eigene Hofläden mit frischem Obst und Gemüse aus der Region. Ärzte, Apotheken, Schulen und Kindergärten und sogar ein eigenes Kino sind in Neu-Anspach vorhanden. Es gibt zahlreiche Sportvereine und das Waldschwimmbad mit seiner großzügigen Fläche bietet im Sommer einen idyllischen Aufenthalt.
Das Römerkastell Saalburg, der Freizeitpark Lochmühle und der Hessenpark sind außergewöhnliche Ausflugsziele in der Nachbarschaft, die Groß und Klein Spaß machen. Mehrere Reiterhöfe, der Golfclub im westlichen Nachbarort Weilrod, der Segelflugplatz im östlich angrenzenden Wehrheim sowie abwechslungsreiche Lauf- und Radstrecken lassen den Sport zum Erlebnis in traumhafter Naturlage werden.
Neu-Anspach verfügt über eine Bahnverbindung (Taunusbahn) nach Friedrichsdorf (ca. 16 Minuten), Bad Homburg (ca. 25 Minuten) und Frankfurt (ca. 50 Minuten).
Die knapp 30km entfernte Frankfurter Innenstadt erreichen Sie über die A5 oder A661 in nur einer halben Stunde Fahrzeit. In etwa 25 Fahrminuten erreicht man zudem Bad Camberg mit der Auffahrt zur A3.
Sonstige Angaben
GELDWÄSCHE: Als Immobilienmaklerunternehmen ist die von Poll Immobilien GmbH nach § 2 Abs. 1 Nr. 14 und § 11 Abs. 1, 2 Geldwäschegesetz (GwG) dazu verpflichtet, bei der Begründung einer Geschäftsbeziehung die Identität des Vertragspartners festzustellen und zu überprüfen, bzw. sobald ein ernsthaftes Interesse an der Durchführung des Immobilienkaufvertrages besteht. Hierzu ist es erforderlich, dass wir nach § 11 Abs. 4 GwG die relevanten Daten Ihres Personalausweises festhalten (wenn Sie als natürliche Person handeln) – beispielsweise mittels einer Kopie. Bei einer juristischen Person benötigen wir eine Kopie des Handelsregisterauszugs, aus welchem der wirtschaftlich Berechtigte hervorgeht. Das Geldwäschegesetz sieht vor, dass der Makler die Kopien bzw. Unterlagen fünf Jahre aufbewahren muss. Als unser Vertragspartner haben Sie auch eine Mitwirkungspflicht nach § 11 Abs. 6 GwG.
HAFTUNG: Wir weisen darauf hin, dass die von uns weitergegebenen Objektinformationen, Unterlagen, Pläne etc. vom Verkäufer bzw. Vermieter stammen. Eine Haftung für die Richtigkeit oder Vollständigkeit der Angaben übernehmen wir daher nicht. Es obliegt daher unseren Kunden, die darin enthaltenen Objektinformationen und Angaben auf ihre Richtigkeit hin zu überprüfen. Alle Immobilienangebote sind freibleibend und vorbehaltlich Irrtümer, Zwischenverkauf- und Vermietung oder sonstiger Zwischenverwertung.
UNSER SERVICE FÜR SIE ALS EIGENTÜMER:
Planen Sie den Verkauf oder die Vermietung Ihrer Immobilie, so ist es für Sie wichtig, deren Marktwert zu kennen. Lassen Sie kostenfrei und unverbindlich den aktuellen Wert Ihrer Immobilie professionell durch einen unserer Immobilienspezialisten einschätzen. Unser bundesweites und internationales Netzwerk ermöglicht es uns, Verkäufer bzw. Vermieter und Interessenten bestmöglich zusammenzuführen.
Grundriss
Erdgeschoss
>
>
Obergeschoss
>
>
Dachgeschoss
>
>
Untergeschoss
>
>
Adresse
61267 Neu-Anspach
Interessante Orte
Preis- und Lageinformationen
Preistrend für Bestandsimmobilien in Neu-Anspach