Hier können Sie als Bauherr die Hausbau-Firma SCHWABENHAUS mit der Errichtung eines energieeffizienten Hauses mit Festpreisgarantie und zeitnaher Fertigstellung beauftragen und Ihre Bauwünsche INDIVIDUELL auf einem wunderschönen Baugrundstück verwirklichen, welches Sie vorher direkt „von privat“ erwerben würden. -- Die hier dargestellten Pläne / Grundrisse stellen eine mögliche Bebauung des Grundstücks dar.
SCHWABENHAUS hat seit mehr als 55 Jahre Bauerfahrung mit über 25.000 gebauten Häusern und liefert schlüsselfertige (100% bezugsfertige) Häuser sowie Häuser für den Selbstausbau. Wir produzieren sehr qualitätsbewusst MADE IN GERMANY in unserer Manufaktur in Heringen (Hessen) mit einmaligen 10/30 Jahren Gewährleistung/Garantie und sogar ISO-, ÖKO, und TÜV-zertifiziert!
Optional kann ein Neubau von Schwabenhaus auch mit KFN (klimafreundlicher Neubau) und QNG (Qualitätssiegel Nachhaltiges Gebäude) zertifiziert werden.
*Löhnberg / individuell planbarer Neubau (mit FESTPREIS u. verbindlicher Terminschiene)
35792 Löhnberg
Die vollständige Adresse der Immobilie erhalten Sie vom Anbieter.
Auf Karte anzeigen
Die vollständige Adresse der Immobilie erhalten Sie vom Anbieter.
Finanzierungszertifikat
In nur zwei Minuten zu Ihrem persönlichen Finanzierungszertifkat.
Infos
| Haustyp | Einfamilienhaus |
|---|---|
| Wohnfläche ca. | 135 m2 |
| Nutzfläche | 0 m2 |
| Grundstücksfläche | 630 m2 |
| Zimmer | 5 |
| Schlafzimmer | 3 |
| Badezimmer | 1 |
| Anzahl Garage/Stellplatz | 1 |
Kosten
| Kaufpreis |
550.000 € |
|---|---|
| Provision | Nein |
Finanzierungsrechner:
Kaufpreis:
600.000 €
Eigenkapital:
600.000 €
Monatliche Rate
0 €
Effektiver Jahreszins
0 %
Sollzinsbindung
10 Jahre
Bausubstanz & Energieausweis
| Baujahr | 2026 |
|---|---|
| Bauphase | Haus in Planung (projektiert) |
| Qualität der Austattung | Gehoben |
| Heizungsart | Wärmepumpe |
Beschreibung des Objekts
Ausstattung
Dieses SCHWABENHAUS wird schlüsselfertig aus einer Hand (100% bezugsfertig) angeboten.
In der Ausstattung „schlüsselfertig“ sind bei SCHWABENAUS entscheidende Mehrleistungen schon im Standard der Bauleistungsbeschreibung (BLB) wie folgt enthalten:
* Alle Leistungen für ein 100% BEZUGSFERTIGES Wohnhaus. Dabei sind insb. auch folgende Leitungen stets enthalten:
* Gehobene Malerarbeiten: Malervlies inkl. Q3-Spachtelung
* Rollläden in elektrische Ausführung
* "Smart Home" Elektro-Installation für die gesamte Licht- u. Rolladen-Steuerung
* Sanitär-Ausstattung ausschließlich mit Marken-Produkten.
* 100 Außenputzfarben zur Wahl
* Holz-Haustür (KERA) im gehobenem Design und 5-fach Absicherung
* 4 Wärmepumpen-Systeme Auswahl: z.B. Sole-Wasser WP inkl. FBH u. Erd-Bohrungen oder preisgleich Doppel-Wärmepumpe (Komfort-Klimatisierung inkl. Kühlfunktion, CO2- und Feuchteregelung für höchsten Wohnkomfort)
Im o.g. Preis ist das Wohnhaus mit der zuvor beschriebenen Ausstattung, die Bodenplatte bzw. der KELLER (gemäß o.s. Angabe) sowie das Baugrundstück eingerechnet.
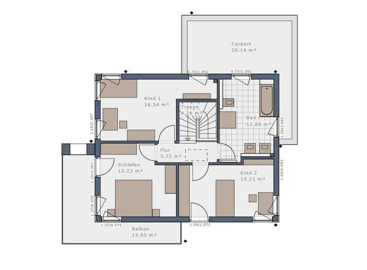
Die dargestellten Grundrisse verstehen sich als Beispiel/Vorschlag und können ohne Mehrkosten individuell umgeplant werden, insofern die Gesamtwohnfläche/bebaute Fläche gleich beleibt. Die Gesamt-Wohnfläche und Hausgeometrie/-Architektur kann gegen Preiskorrektur geändert angeboten werden. Die üblichen orts- und grundstücksabhängigen Bau- & Erwerbsnebenkosten sowie gewünschte Garagen/Carports sind hinzuzurechnen.
Ist Eigenleistungen wie z.B. Maler-, Fliesen-, Sanitär-, Innentüren-Arbeiten usw. gewünscht, kann ein entsprechend reduzierter Leistungsumfang und Preis vereinbart werden.
Lage
🎯 Gebaut wird in einem schönen, zentralgelegenen Wohngebiet in Löhnberg.
👨👩👧👦 Der Kindergarten sowie die Grundschule sind in wenigen Minuten zu erreichen. Weiterführende Schulen befinden sich in Weilburg und Mengerskirchen.
🏪 In nur wenigen Minuten erreichen Sie umfangreiche Einkaufsmöglichkeiten (Supermärkte, Bäcker, Apotheke, Ärzte, Drogeriemarkt, Banken, Getränkemarkt).
🛣️ Der nächste Autobahnanschluss (A3) ist in ca. 20 Minuten erreichbar, der Flughafen Frankfurt am Main in ca. 60 Minuten. Auch die Limburger Innenstadt erreichen Sie per Auto in nur ca. 30 Minuten.
📅.... Überzeugen Sie sich am besten selbst ...
... und vereinbaren einen Termin mit uns.
(Es gibt keine weiteren EXPOSÉ-Daten zu diesem Neubauprojekt, da individuell nach Ihren Wünschen auf dem Baugrundstück gebaut wird. Ihre individuellen Wünsche klären wir gerne persönlich mit Ihnen).
Sonstige Angaben
Das angebotene Haus ist projektiert inkl. Grundstück. Das Grundstück wird in Kommission mit angeboten bzw. direkt von Dritten verkauft. Daher kann der o.g. Preis aufgrund aktueller Marktsituationen schwanken.
Abbildungen und Grundrisse sind beispielhaft und können Extras zeigen, wie z.B. Carports, Garagen, Keller, zusätzl. Fenster und Anbauteile (die ggf. in den Grundrissen mehr Wohnfläche darstellen), die alle als Sonderausstattung gegen Preiskorrektur angeboten werden könnten. Der o. g. Preis bezieht sich auf die Gesamt-Wohnfläche im Textteil. Die Flächenangaben verstehen sich in Anlehnung an die DIN 277.
Die Fotos und das Bildmaterial sind urheberrechtlich geschützt. Die Nutzungsrechte liegen bei der Schwabenhaus GmbH bzw. der FH Solutions GmbH.
Änderungen und Irrtümer sind vorbehalten. Angebote sind freibleibend und unverbindlich. Weitere Geschäftsbedingungen sind in der Rubik "Impressum" aufgeführt.
Anbauteile, Carport, Garage und Keller können Extras sein, die als Sonderausstattung angeboten werden. Abbildungen, Grundrisse und Flächenangaben sind beispielhaft und können Extras zeigen. Flächenangaben nach DIN 277.
Profitieren Sie jetzt von der Schwabenhaus Online Beratung und verwirklichen Sie Ihr Traumhaus https://www.schwabenhaus.de/anmeldung-hausbau-beratung-online/
Grundriss
Grundriss Erdgeschoss
>
>
Grundriss Obergeschoss
>
>
Adresse
35792 Löhnberg
Interessante Orte
Preis- und Lageinformationen
Preistrend für Bestandsimmobilien in Löhnberg