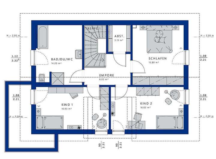
Darf es ein wenig mehr sein? In diesem Fall lautet die Antwort eindeutig "Ja"! Das moderne Fertighaus bietet in seinem Inneren ein riesiges Platzangebot von knapp 163 m², das sich auf zwei Etagen verteilt. Dank der flachen Dachneigung setzen die Schrägen des Satteldachs erst bei einer Höhe von 1,60 m an. So bietet auch das Dachgeschoss ausreichend Bewegungsfreiraum für die Bewohner und Stellfläche für die Möbel. Für zusätzliche Raumgewinne sorgt der Zwerchgiebel, der mit großzügigen Fensterpartien ausgestattet ist. Das Erdgeschoss wird durch einen eingeschossigen Übereck-Erker erweitert. Beide Architektur-Bauteile setzen nicht nur mit ihrer farblichen Gestaltung schöne Akzente am Hauptbaukörper, sondern auch mit ihrer Dacharchitektur. Der Zwerchgiebel wird von einem Pultdach gekrönt, der Erker von einem Flachdach. Der Eingang befindet sich auf der Traufseite. Hinter der Haustür werden die Bewohner und Besucher von einer geräumigen Diele empfangen, in die sich eine stilvolle, halbgewendelte Treppe integriert. Links liegen die Garderobe und das Gäste-WC. Hinter einer weiteren Tür versteckt sich der Technik- bzw. Hauswirtschaftsraum. Geradeaus mündet die Diele in den Wohn-, Ess- und Kochbereich, der mit seiner Weite beeindruckt. Im Übereck-Erker ist Platz für eine riesige Couchlandschaft, auf der sich nicht nur die Bewohner, sondern auch die Gäste wohlfühlen werden. Ein halboffenes Wandsegment, das als Installationsfläche für das Home-Entertainment-System genutzt werden kann, markiert die Grenze zum kulinarischen Bereich. Für den Esstisch ist der Raum vor den breiten Fenstertüren reserviert. An warmen Tagen lassen sie sich weit öffnen, sodass ein besonders luftiges Ambiente entsteht. Der Kochbereich schmiegt sich in die linke Ecke. Komplettiert wird das Raumangebot von einem flexibel nutzbaren Raum, der vom Wohnbereich aus betreten wird. Mit einer Fläche von 10 m² eignet er sich perfekt für ein ruhiges Homeoffice. Unter dem Dach stehen den Bewohnern drei große Schlafzimmer, ein Familienbad und eine kompakte Abstellkammer zur Verfügung.
Schöne Ebene Lage in Roßdorf!
64380 Roßdorf
Die vollständige Adresse der Immobilie erhalten Sie vom Anbieter.
Auf Karte anzeigen
Die vollständige Adresse der Immobilie erhalten Sie vom Anbieter.
Finanzierungszertifikat
In nur zwei Minuten zu Ihrem persönlichen Finanzierungszertifkat.
Infos
| Haustyp | Einfamilienhaus |
|---|---|
| Etagenzahl | 2 |
| Wohnfläche ca. | 148 m2 |
| Nutzfläche | 12 m2 |
| Grundstücksfläche | 460 m2 |
| Zimmer | 4 |
Kosten
| Kaufpreis |
738.254 € |
|---|---|
| Provision | Nein |
Finanzierungsrechner:
Kaufpreis:
600.000 €
Eigenkapital:
600.000 €
Monatliche Rate
0 €
Effektiver Jahreszins
0 %
Sollzinsbindung
10 Jahre
Bausubstanz & Energieausweis
| Baujahr | unbekannt |
|---|
Beschreibung des Objekts
Ausstattung
Zur Ausstattung fertig: Sie versorgen die Wände mit Spachtel, Tapete und Farbe, Sie legen Fliesen und Bodenbeläge.
Sanitärobjekte und Innentüren setzen.
Das Haus ist außen komplett fertig, Heizung (Wärmepumpe) läuft, Elektrik funktioniert mit Schalter und Dosen, alle Installationen, auf Wunsch PV und Speicher, sind fertig.
Jetzt noch preiswert das Material einkaufen, fleißig sein und viel Geld (Lohnkosten) sparen!
Sie können auch nur Teilbereiche zum Selbstmachen auswählen.
Lage
Bevorzugte Lage, Nähe Zentrum, ruhige Terrasse;
Schulen und Kindergarten sind gut erreichbar.
Adresse
64380 Roßdorf
Interessante Orte
Preis- und Lageinformationen
Preistrend für Bestandsimmobilien in Roßdorf