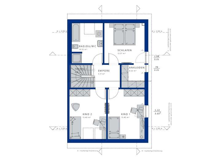
Das Bien-Zenker Haus CELEBRATION 139 verkörpert Ihre Wünsche und Vorstellungen, perfekt umgesetzt in einem modernen Design. Mit einer großzügigen Wohnfläche von 170 m² und fünf Zimmern bietet es Ihnen und Ihrer Familie ein harmonisches Zuhause, in dem Sie sich sofort wohlfühlen werden. Das Erdgeschoss empfängt Sie mit einem offenen Wohnraum, der zum Verweilen und Zusammenkommen einlädt. Im Obergeschoss finden Sie drei behagliche Schlafzimmer, die Privatsphäre und Rückzugsmöglichkeiten garantieren. Das durchdachte Raumkonzept fördert ein Leben in Gemeinschaft, lässt aber auch Raum für individuelle Entfaltung. Mit zwei Badezimmern wird der morgendliche Alltag erheblich erleichtert - hier kommt jeder schnell und entspannt in seinen Tag. Das großzügige Grundstück von 329 m² lässt Ihnen auch im Freien viel Raum für Gestaltung und Erholung.
Der Komfort dieses Hauses wird durch einen einladenden Balkon abgerundet, der dazu einlädt, die frische Luft und den Blick in die Umgebung zu genießen. Lichtdurchflutete Räume sorgen für eine angenehme Atmosphäre, während die durchdachte Anordnung der Räume eine optimale Nutzung des Platzes gewährleistet. Hier können Sie entspannen, spielen und die Zeit mit Ihren Liebsten verbringen - sei es beim gemeinsamen Essen oder beim Spielen der Kinder im Garten. Die Möglichkeit, das Haus individuell zu gestalten, macht es zum perfekten Rückzugsort für Familien und Paare.
Mit der Ausbaustufe "Schlüsselfertig" entscheiden Sie sich für den stressfreien Bau Ihres neuen Zuhauses. Bien-Zenker übernimmt den gesamten Bauprozess für Sie - vom Fundament bis zur letzten Schraube. Sie müssen sich um nichts kümmern und können sich entspannt zurücklehnen, während Ihr Traumhaus entsteht. Die Vorfreude auf den Einzug wird durch die Gewissheit, dass alles nach Ihren Wünschen umgesetzt wird, noch größer. So sparen Sie Zeit und Nerven und können sich ganz auf das Wesentliche konzentrieren: Ihr neues Zuhause zu genießen.
Grundrisse und Abbildungen können Extras zeigen. Flächenangaben nach DIN 277.
Ausblick zum Wald. Ihre schlüsselfertiges Doppelhaus in Traisa mit Grundstück
64367 Mühltal
Die vollständige Adresse der Immobilie erhalten Sie vom Anbieter.
Auf Karte anzeigen
Die vollständige Adresse der Immobilie erhalten Sie vom Anbieter.
Finanzierungszertifikat
In nur zwei Minuten zu Ihrem persönlichen Finanzierungszertifkat.
Infos
| Haustyp | Doppelhaushaelfte |
|---|---|
| Etagenzahl | 2 |
| Wohnfläche ca. | 170 m2 |
| Grundstücksfläche | 329 m2 |
| Zimmer | 5 |
| Schlafzimmer | 3 |
| Badezimmer | 2 |
Kosten
| Kaufpreis |
739.033 € |
|---|---|
| Provision | Nein |
Finanzierungsrechner:
Kaufpreis:
600.000 €
Eigenkapital:
600.000 €
Monatliche Rate
0 €
Effektiver Jahreszins
0 %
Sollzinsbindung
10 Jahre
Bausubstanz & Energieausweis
| Baujahr | unbekannt |
|---|---|
| Qualität der Austattung | Gehoben |
Beschreibung des Objekts
Ausstattung
In diesem Bien-Zenker Haus CELEBRATION 139 erleben Sie eine durchdachte Grundrissgestaltung, die Ihre Bedürfnisse in den Mittelpunkt stellt. Mit drei Schlafzimmern und zwei Badezimmern bietet dieses Zuhause ausreichend Platz für die ganze Familie. Das großzügige Erdgeschoss ist ideal für gemeinsame Momente, während die Schlafzimmer im Obergeschoss Privatsphäre und Rückzugsmöglichkeiten garantieren. Die offene Architektur schafft ein Gefühl von Weite und Licht, sodass Sie in jedem Raum die Harmonie und den Komfort genießen können.
Besonders hervorzuheben ist der Balkon, der Ihnen die Möglichkeit bietet, die frische Luft zu genießen und den Blick auf die Umgebung zu richten. Der lichtdurchflutete Wohnbereich wird zum Herzen Ihres Hauses, in dem Sie unvergessliche Momente mit Ihren Liebsten verbringen können. Die durchdachte Anordnung der Räume sorgt dafür, dass Sie den Alltag in einem harmonischen Umfeld erleben. Abstellräume und die Möglichkeit eines Kellers bieten Ihnen zudem ausreichend Stauraum für alle Ihre Bedürfnisse, während der Garten Raum für Freizeitgestaltung und individuelle Ideen lässt.
Die Entscheidung für die Ausbaustufe "Schlüsselfertig" ermöglicht es Ihnen, stressfrei ins neue Zuhause einzuziehen. Bien-Zenker kümmert sich um den gesamten Bauprozess, sodass Sie sich entspannt zurücklehnen können. Im Preis sind alle notwendigen Leistungen enthalten, vom Innenausbau bis hin zur finalen Abnahme. Das Resultat ist ein Zuhause, in das Sie einfach einziehen können, ohne sich um die Details kümmern zu müssen. Profitieren Sie von einem reibungslosen Bauablauf und genießen Sie die Vorfreude auf Ihr neues Leben in Ihrem Bien-Zenker Haus.
Lage
Mühltal ist eine idyllische Gemeinde, die Ihnen eine hervorragende Lebensqualität bietet. In unmittelbarer Nähe finden Sie zahlreiche Bildungseinrichtungen, von Kindergärten bis hin zu Schulen, die Ihren Kindern eine optimale Förderung bieten. Auch medizinische Einrichtungen sind gut erreichbar, sodass Sie sich um Ihre Gesundheit keine Sorgen machen müssen. Für den täglichen Bedarf stehen Ihnen diverse Einkaufsmöglichkeiten zur Verfügung, die Sie schnell und bequem erreichen können. Der Ort bietet zudem eine Vielzahl an Freizeitmöglichkeiten, sei es für sportbegeisterte Familien, Naturliebhaber oder Kulturinteressierte.
Die Anbindung an den öffentlichen Personennahverkehr ist ausgezeichnet, sodass Sie auch ohne eigenes Fahrzeug flexibel unterwegs sind. Die nahegelegene Autobahn ermöglicht Ihnen zudem eine schnelle Anbindung an größere Städte und umliegende Regionen. Mühltal vereint somit alle Vorteile eines ruhigen Wohnorts mit einer hervorragenden Erreichbarkeit der umliegenden Metropolen, was es zu einem idealen Standort für Ihr neues Zuhause macht.
Adresse
64367 Mühltal
Interessante Orte
Preis- und Lageinformationen
Preistrend für Bestandsimmobilien in Mühltal