Diese Immobilie befindet sich in einem wunderschönen, naturnahen Umfeld!
Immobiliensteckbrief:
Gepflegtes freistehendes Einfamilienhaus (Baujahr 1965)
Holztafelbauweise
2 Schlafzimmer mit eigenem Bad
Wohnzimmer mit direktem Zugang zum beheizten Wintergarten (Baujahr 1995)
Küche mit kaum genutzter Einbauküche
Bodenbeläge überwiegend mit Fliesen
Überdachte Terrasse
Hauswirtschaftsraum
Gaszentralheizung (Brennwertheizung) aus 2010
Brunnen für Gartenbewässerung
Carport mit Schuppen
tlw. Außenjalousien
Fenster mit Iso-Verglasung, tlw. aus 1994
Wiese/Weide mit rund 3.100 qm und 2 Pferdeboxen direkt am Haus.
Ggf. kann noch zusätzlich ein Stück Weide/Wiese mit 1.500 bis 2.500 qm erworben werden.
Eine optimale Immobilie für Naturliebhaber, die Wert auf Ruhe und eine großzügige Umgebung legen.
Pferdeliebhaber können auf der Wiese/Weide mit zwei Pferdeboxen ihre Tiere unterbringen.
+++ Wohnen in GF-Winkel: Einfamilienhaus mit Carport und zus. Wiese mit 2 Pferdeboxen +++
38518 Gifhorn
Die vollständige Adresse der Immobilie erhalten Sie vom Anbieter.
Auf Karte anzeigen
Die vollständige Adresse der Immobilie erhalten Sie vom Anbieter.
Finanzierungszertifikat
In nur zwei Minuten zu Ihrem persönlichen Finanzierungszertifkat.
Infos
| Haustyp | Einfamilienhaus |
|---|---|
| Wohnfläche ca. | 193 m2 |
| Grundstücksfläche | 1.023 m2 |
| Bezugsfrei ab | nach Vereinbarung |
| Zimmer | 3 |
| Schlafzimmer | 2 |
| Badezimmer | 2 |
Kosten
| Kaufpreis |
275.000 € |
|---|---|
| Provision |
3,57 % Käuferprovision inkl. MwSt. 3,57 % Käuferprovision inkl. MwSt., verdient und fällig mit Beurkundung des notariellen Kaufvertrages. Der Immobilienmakler hat einen provisionspflichtigen Maklervertrag mit dem Verkäufer in gleicher Höhe abgeschlossen. |
Finanzierungsrechner:
Kaufpreis:
600.000 €
Eigenkapital:
600.000 €
Monatliche Rate
0 €
Effektiver Jahreszins
0 %
Sollzinsbindung
10 Jahre
Bausubstanz & Energieausweis
| Baujahr | 1965 |
|---|---|
| Objektzustand | Gepflegt |
| Heizungsart | Zentralheizung |
| Wesentliche Energieträger | Gas |
| Energieausweis | liegt vor |
| Energieausweistyp | Bedarfsausweis |
| Energieverbrauchskennwert | 256,3 kWh/(m²*a) |
Beschreibung des Objekts
Lage
Winkel ist ein Ortsteil der Stadt Gifhorn. Winkel bietet neben der Nähe zur Gifhorner Innenstadt gute Einkaufsmöglichkeiten im Umfeld. Auch viele Freizeitangebote werden angeboten. Neben dem eigentlichen Ortskern gehören viele Wiesen und Wälder zur Gemarkung. Auch einige außerhalb des Ortskerns gelegene Naherholungsgebiete gehören dazu. Zu den Naherholungsgebieten gehören unter anderem der Erikasee, der Wildsee sowie das Pulschmoor am westlichen Rand des Ortes. Die Nähe zur Kernstadt rundet die optimale Wohnlage ab. Viele Einwohner suchen die Innenstadt auch mit dem Fahrrad oder auch zu Fuß auf. Weiterhin kann der Ortsteil Winkel Ärzte und gesundheitsfördernde Einrichtungen aufweisen, die nicht nur von jungen Familien, sondern auch von Senioren geschätzt werden. Wer außerdem in die Natur möchte, kann in kürzester Zeit die umliegenden Wälder und Wiesen erreichen.
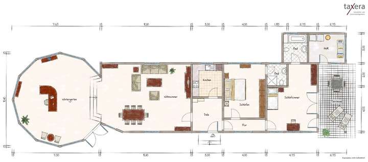
Grundriss
>
Adresse
38518 Gifhorn
Interessante Orte
Preis- und Lageinformationen
Preistrend für Bestandsimmobilien in Gifhorn