Bei diesem Projekt beauftragen Sie die Haus-Baufirma "Schwabenhaus", um auf dem hier angebotenen Baugrundstück, welches Sie vorher direkt „von privat“ erwerben würden, INDIVIDUELL, ENERGIE-EFFIZIENT und mit FESTPREIS- / LIEFERZEIT-GARANTIE zu bauen.
Optional kann ein Neubau von "Schwabenhaus" auch mit QNG (Qualitätssiegel Nachhaltiges Gebäude) zertifiziert werden, wodurch der KFW-Standard "Effizienzhaus 40-NH" erfüllt wird (Voraussetzung für die aktuell einzige KFW-Förderklasse für Neubauten. Quelle zum aktuellen Förderstand: www.kfw.de).
"Schwabenhaus" hat seit mehr als 55 Jahre Bauerfahrung mit über 24.000 gebauten Häusern und liefert schlüsselfertige (100% bezugsfertige) Häuser sowie Häuser für den Selbstausbau.
"Schwabenhaus" produziert qualitäts-bewusst MADE IN GERMANY in eigener Manufaktur in Heringen (Hessen) mit bis zu 5/10/30 Jahren Gewährleistung und sogar ISO-, ÖKO-, TÜV- u. QNG-zertifiziert !
Einzigartiges Wohnkonzept - individuell anpassbar für Ihren Lebensstil - Ihr Zuhause in Aspisheim
55459 Aspisheim
Die vollständige Adresse der Immobilie erhalten Sie vom Anbieter.
Auf Karte anzeigen
Die vollständige Adresse der Immobilie erhalten Sie vom Anbieter.
Finanzierungszertifikat
In nur zwei Minuten zu Ihrem persönlichen Finanzierungszertifkat.
Infos
| Haustyp | Einfamilienhaus |
|---|---|
| Wohnfläche ca. | 140 m2 |
| Nutzfläche | 0 m2 |
| Grundstücksfläche | 690 m2 |
| Zimmer | 5 |
| Schlafzimmer | 3 |
| Badezimmer | 1 |
| Anzahl Garage/Stellplatz | 1 |
Kosten
| Kaufpreis |
560.000 € |
|---|---|
| Provision | Nein |
Finanzierungsrechner:
Kaufpreis:
600.000 €
Eigenkapital:
600.000 €
Monatliche Rate
0 €
Effektiver Jahreszins
0 %
Sollzinsbindung
10 Jahre
Bausubstanz & Energieausweis
| Baujahr | 2026 |
|---|---|
| Bauphase | Haus in Planung (projektiert) |
| Qualität der Austattung | Gehoben |
| Heizungsart | Wärmepumpe |
Beschreibung des Objekts
Ausstattung
Dieses SCHWABENHAUS wird in der Ausbaustufe FV = fast vollendet angeboten. In der Ausstattung fast vollendet xxl sind bei SCHWABENAUS bereits entscheidende Mehrleistungen schon im Standard der Bauleistungsbeschreibung (BLB) enthalten:
+ Rollläden in elektrischer Ausführung
+ Smart Home" Elektro-Installation für die gesamte Licht- u. Rollladen-Steuerung
+ komplette Sanitärverrohrung (Abwasser / Zuwasser)
+ 100 Außenputzfarben zur Wahl
+ Holz-Haustür (KERA) im gehobenen Design und 5-fach Absicherung
+ 4 Wärmepumpen-Systeme Auswahl: z.B. Sole-Wasser WP inkl. FBH u. Erd-Bohrungen oder preisgleich Doppel-Wärmepumpe (Komfort-Klimatisierung inkl. Kühlfunktion, CO2- und Feuchteregelung für höchsten Wohnkomfort)
In der Ausbaustufe fast vollendet, sind für ein bezugsfertiges Haus noch Eigen-/Fremd-Leistung bzgl. folgender Gewerke zu erbringen:
- Wandbeläge (Tapeten/Spachtel)
- Bodenbeläge
- Sanitärobjekte
- Innentüren
Gerne wird auch diese Leistung zusätzlich durch Schwabenhaus gegen Mehrpreis ausgeführt.
Im o.g. Preis ist das Wohnhaus mit der zuvor beschriebenen Ausstattung, die Bodenplatte bzw. ein KELLER (gemäß o.s. Angabe) sowie das Baugrundstück eingerechnet.
Die dargestellten Grundrisse verstehen sich als Beispiel/Vorschlag und können ohne Mehrkosten individuell umgeplant werden, insofern die Gesamtwohnfläche/bebaute Fläche gleich beleibt. Die Gesamt-Wohnfläche und Hausgeometrie/-Architektur kann gegen Preiskorrektur geändert angeboten werden. Die üblichen orts- und grundstücksabhängigen Bau- & Erwerbsnebenkosten, das Material für die o.g. Eigenleistung sowie gewünschte Garagen/Carports sind hinzuzurechnen.
Lage
Gebaut wird Ihr neues Eigenheimeinem auf einem gut geschnittenen Grundstück von Aspisheim.
Aspisheim liegt in der malerischen Region Rheinhessen, etwa 20 Kilometer südwestlich von Mainz. Die Lage von Aspisheim ist von sanften Hügeln und Weinbergen geprägt, was typisch für die Landschaft in dieser Region ist.
Das Dorf selbst ist ruhig und ländlich geprägt und bietet seinen Bewohnern eine entspannte Atmosphäre fernab vom Trubel der Großstädte. Aspisheim ist umgeben von zahlreichen Weinbergen und bietet daher auch Weinliebhabern und Touristen eine schöne Umgebung zum Entdecken und Verweilen.
Aspisheim bietet eine gute Anbindung an umliegende Städte wie Mainz und Bingen sowie an die Autobahn A60, was die Erreichbarkeit erleichtert.
Überzeugen Sie sich am Besten selbst ...
... und vereinbaren einen Termin mit uns.
(Es gibt keine weiteren EXPOSÉ-Daten zu dieses Neubauprojekt, da individuell nach Ihren Wünschen auf dem Baugrundstück gebaut wird. Ihre individuellen Wünsche klären wir gerne persönlich mit Ihnen.)
Sonstige Angaben
Das angebotene Haus ist projektiert inkl. Grundstück. Das Grundstück wird in Kommission mit angeboten bzw. direkt von Dritten verkauft. Daher kann der o.g. Preis aufgrund aktueller Marktsituationen schwanken.
Änderungen und Irrtümer sind vorbehalten. Angebote sind freibleibend und unverbindlich. Weitere Geschäftsbedingungen sind in der Rubik "Impressum" aufgeführt.
Anbauteile, Carport, Garage und Keller können Extras sein, die als Sonderausstattung angeboten werden. Abbildungen, Grundrisse und Flächenangaben sind beispielhaft und können Extras zeigen. Flächenangaben nach DIN 277.
Profitieren Sie jetzt von der Schwabenhaus Online Beratung und verwirklichen Sie Ihr Traumhaus https://www.schwabenhaus.de/anmeldung-hausbau-beratung-online/
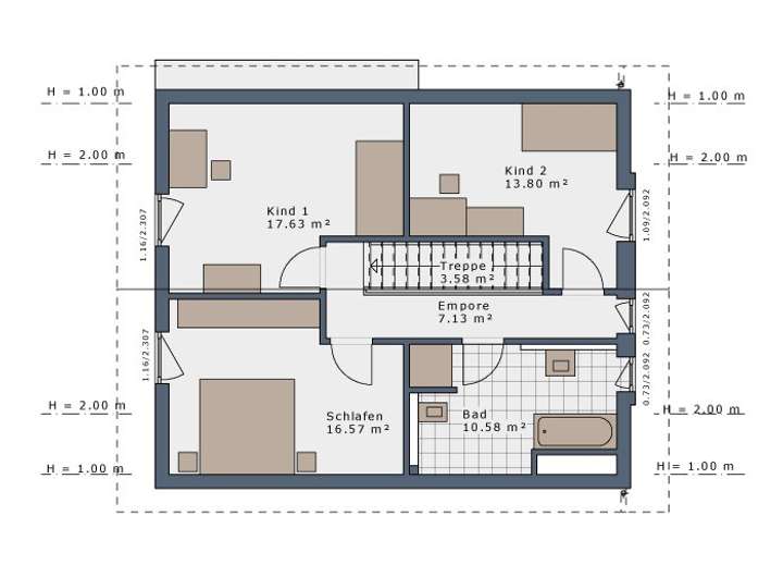
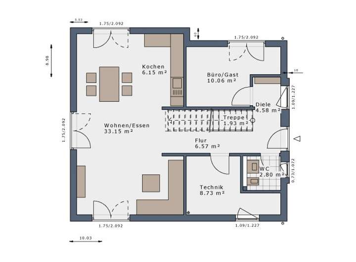
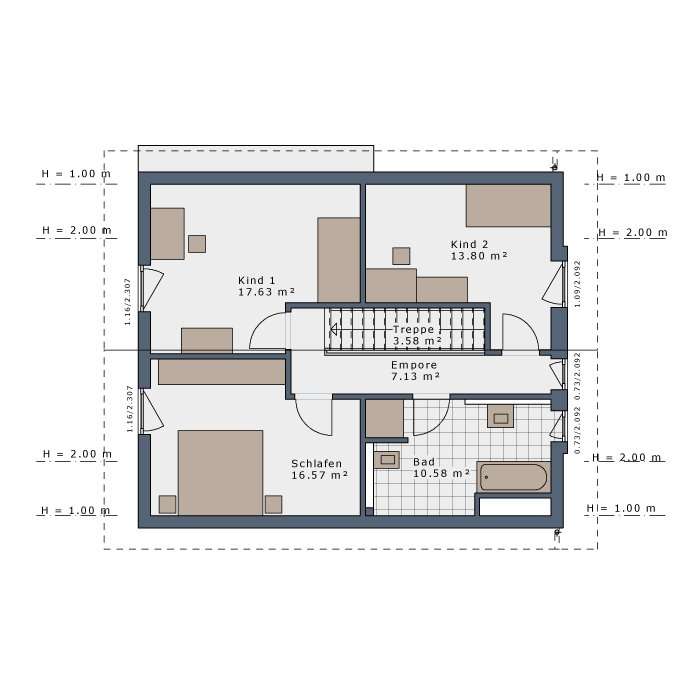
Grundriss
Grundriss Erdgeschoss
>
>
Grundriss Obergeschoss
>
>
Adresse
55459 Aspisheim
Interessante Orte
Preis- und Lageinformationen
Preistrend für Bestandsimmobilien in Aspisheim