In einer ruhigen Anliegerstraße wurde das Einfamilienhaus in konventioneller Bauweise im Jahr 1960 gebaut.
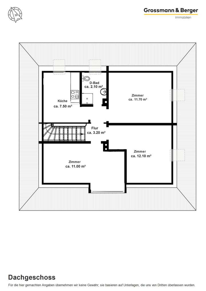
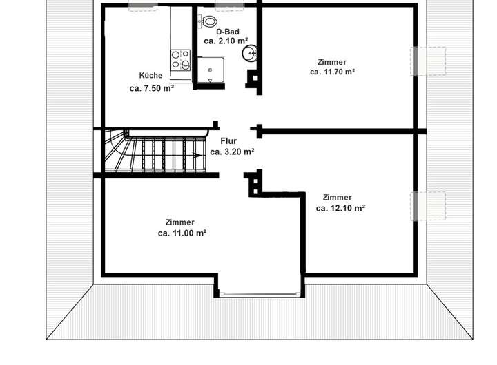
Mit einer Wohnfläche von ca. 125 m² bietet das Haus ausreichend Raum für alle, die viel Platz und ein großzügiges Zuhause suchen. Die durchdachte Raumaufteilung umfasst sechs Zimmer. Über einen Windfang gelangen Sie in die Immobilie. Im Erdgeschoss stehen Ihnen, neben dem großzügigen Wohnzimmer, ein weiteres Zimmer sowie die Küche und das Badezimmer zur Verfügung. Die großzügige Terrasse ist vom Wohnzimmer begehbar. Über eine Holztreppe gelangen Sie in das Dachgeschoss. Hier bieten Ihnen vier zusätzliche Zimmer sowie ein Duschbad viele Gestaltungsmöglichkeiten. In einem Zimmer befinden sich bereits Anschlüsse für eine zweite Küche.
Große Fensterflächen sorgen für viel Tageslicht und verleihen dem Haus ein offenes, freundliches Ambiente. Die Raumgrößen sind gut proportioniert, welches das Wohngefühl zusätzlich unterstreicht.
Großzügiges Einfamilienhaus in ruhiger Lage
22145 Hamburg
Die vollständige Adresse der Immobilie erhalten Sie vom Anbieter.
Auf Karte anzeigen
Die vollständige Adresse der Immobilie erhalten Sie vom Anbieter.
Finanzierungszertifikat
In nur zwei Minuten zu Ihrem persönlichen Finanzierungszertifkat.
Infos
| Haustyp | Einfamilienhaus |
|---|---|
| Wohnfläche ca. | 125 m2 |
| Grundstücksfläche | 936 m2 |
| Bezugsfrei ab | nach Absprache |
| Zimmer | 6 |
| Badezimmer | 2 |
| Garage/Stellplatz | Außenstellplatz |
| Anzahl Garage/Stellplatz | 1 |
Kosten
| Kaufpreis |
620.000 € |
|---|---|
| Provision |
3,57 % inkl. MwSt. |
Finanzierungsrechner:
Kaufpreis:
600.000 €
Eigenkapital:
600.000 €
Monatliche Rate
0 €
Effektiver Jahreszins
0 %
Sollzinsbindung
10 Jahre
Bausubstanz & Energieausweis
| Baujahr | 1960 |
|---|---|
| Objektzustand | Renovierungsbedürftig |
| Heizungsart | Öl-Heizung |
| Wesentliche Energieträger | Öl |
| Energieausweis | liegt vor |
| Energieausweistyp | Bedarfsausweis |
| Energieverbrauchskennwert | 268,1 kWh/(m²*a) |
| Energieeffizienzklasse | H |
268,1
kWh/(m²*a)
Energieeffizienzklasse H
- A+
- A
- B
- C
- D
- E
- F
- G
- H
- 0
- 25
- 50
- 75
- 100
- 125
- 150
- 175
- 200
- 225
- >250
Beschreibung des Objekts
Ausstattung
Die Ausstattung der Immobilie befindet sich weitestgehend in einem modernisierungs- und teilweise in einem sanierungsbedürftigen Zustand.
Im geräumigen Wohnzimmer sowie im Flur sind großformatige, weiße Fliesen verlegt. Alle anderen Zimmer im Erd- und Obergeschoss sind mit Laminatböden ausgestattet.
Das Badezimmer im Erdgeschoss sowie das Duschbad im Dachgeschoss stammen aus den 80er Jahren. In beiden Bädern sorgen jeweils ein Fenster für eine gute Be- und Entlüftung.
In der Küche befindet sich eine ältere Einbauzeile mit allen erforderlichen Gerätschaften.
Die Fenster sind in Holz gefasst und isolierverglast. Die Beheizung erfolgt über eine Ölzentralheizung.
Die Immobilie ist unterkellert, mit Außenzugang. Hier befinden sich die Waschküche, der Heizungsraum sowie diverse Abstell- und Lagerungsmöglichkeiten.
Lassen Sie sich vom Potenzial dieser Immobilie bei einer Besichtigung überzeugen
Lage
Meiendorf ist ein Ortsteil im Hamburger Stadtteil Rahlstedt und grenzt im Norden direkt an das idyllische Volksdorf. Besonders prägend für die Gegend sind die weitläufigen Grünflächen – hier lebt man naturnah und entspannt, ohne auf die Vorzüge der Großstadt verzichten zu müssen. Familien finden hier beste Voraussetzungen: Spielplätze, Kitas, Grundschulen, eine Stadtteilschule sowie das Gymnasium Meiendorf befinden sich in direkter Umgebung. Ob Fitnessstudio, Tennis, Hockey oder bei ein gemütliches Abendessen in einem der nahegelegenen Restaurants – das Freizeitangebot lässt kaum Wünsche offen. Für Naturbegeisterte bieten sich zudem Spaziergänge oder Joggingrunden im Grünen an – ideal, um den Alltag hinter sich zu lassen. Die Nahversorgung ist hervorragend: Mehrere Supermärkte, ein Wochenmarkt, diverse Einkaufsmöglichkeiten und eine gute medizinische Versorgung mit verschiedenen Arztpraxen sind bequem erreichbar. Die Anbindung an den öffentlichen Nahverkehr ist ebenfalls ausgezeichnet – neben mehreren fußläufig erreichbaren Buslinien verkehrt hier die U-Bahn-Linie U1 und sorgt für eine schnelle Verbindung in die Hamburger Innenstadt.
Grundriss
Kellergeschoss
>
>
Erdgeschoss
>
>
Dachgeschoss
>
>
Adresse
22145 Hamburg
Interessante Orte
Preis- und Lageinformationen
Preistrend für Bestandsimmobilien in Rahlstedt