Bungalow Neustadt
Lebensqualität für Jung und Alt
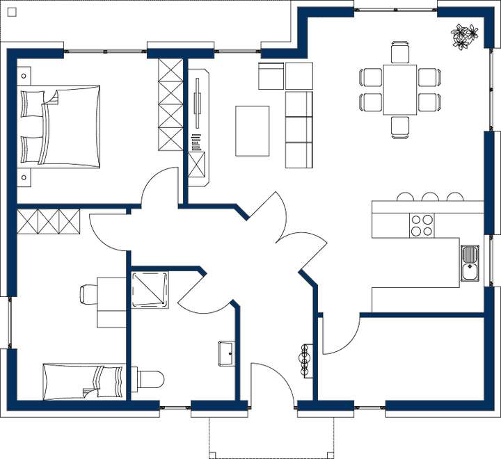
„„ Wohnfläche: 94 m²
„„ 25° Walmdach
„„ Umlaufender Dachüberstand 50 cm
„„ 3-fach verglaste Brömse Reference Fenster
„„ Außenmaße: 12,17m x 10.17 m
„„ 1 Kinderzimmer
„„ 1 Schlafzimmer
Die Grundsrisse können nach Ihren Wünschen angepasst werden!
*** Winkelbungalow mit überdachtem Eingang auf 650m² Grundstück in Bahrdorf!**
38359 Bahrdorf
Die vollständige Adresse der Immobilie erhalten Sie vom Anbieter.
Auf Karte anzeigen
Die vollständige Adresse der Immobilie erhalten Sie vom Anbieter.
Finanzierungszertifikat
In nur zwei Minuten zu Ihrem persönlichen Finanzierungszertifkat.
Infos
| Haustyp | Bungalow |
|---|---|
| Etagenzahl | 1 |
| Wohnfläche ca. | 94 m2 |
| Grundstücksfläche | 650 m2 |
| Zimmer | 3 |
| Schlafzimmer | 2 |
| Badezimmer | 1 |
Kosten
| Kaufpreis |
389.492 € |
|---|---|
| Provision | Nein |
Finanzierungsrechner:
Kaufpreis:
600.000 €
Eigenkapital:
600.000 €
Monatliche Rate
0 €
Effektiver Jahreszins
0 %
Sollzinsbindung
10 Jahre
Bausubstanz & Energieausweis
| Baujahr | 2026 |
|---|---|
| Bauphase | Haus in Planung (projektiert) |
| Objektzustand | Erstbezug |
| Qualität der Austattung | Gehoben |
| Heizungsart | Wärmepumpe |
| Wesentliche Energieträger | Strom |
| Energieausweis | liegt zur Besichtigung vor |
Beschreibung des Objekts
Ausstattung
Zum Angebot gehören:
- Baugrundstück
• massiver Bungalow auf Bodenplatte
• massive Innenwände im EG
• Binderdachkonstruktion
• Walmdach, Dachneigung 25°
• Gesimskästen
-Hauseingangsüberdachung
• Umlaufende Dachüberstände
ca. 50 cm
• verkleidete Holzbalkendecke über EG als Teil der Dachkonstruktion
• Putzfassade (WDVS), d=/Farbe= gem. Wärmeschutznachweis/weiß gem. Farbkarte des Herstellers
• Haustürfüllung gem. Einzelbaubeschreibung
• Kunststoff-Fenster, Außen- und Innenfarbe weiß
- Luft- Wasser Wärme-Pumpe
- Fussbodenheizung
• Sanitärobjekte
• Fliesen
• Materialwert Fliesen bis 50,- €/m²
• Innentüren CPL weiß oder Buche, Anzahl (in Stk.) = 4
Durchführung eines Blower-Door-Tests
Zzgl.: Malerarbeiten, restl. Bodenbeläge, Hausanschlusskosten
Lage
Freies 650m² Baugrundstück in Bahrdorf!
Das Grundstück liegt iyllisch in einem neuen Baugebiet in Bahrdorf.
Bebaubarkeit nach B-Plan
Wolfsburg ist in ca. 15 Minuten über die
Einkaufsmöglichkeiten befinden sich in der näheren Umgebung wie Velpke und Oebisfelde.
Schule und Kindergarten, Kinderkrippe und Arzt befinden sich im Ort.
Sonstige Angaben
Vertriebspartnerin FIBAV GmbH
Kathrin Kass
Handy: 0152 52 58 6948
E-Mail: Immobilien.Kass@web.de
Gern berate ich Sie persönlich nach Terminvereinbarung zu Haus und Grundstück auch außerhalb der Bürozeiten.
Damit Ihre Anfrage bearbeitet werden kann hinterlassen Sie Ihre vollständigen Adressdaten und geben Sie auch Ihr Finanzierungsbudget an!
Gern bewerte ich auch Ihre Bestandsimmobilie, kostenfrei!
Weitere Dokumente
FIBAV Katalog-2023B_Ambiente_Neustadt
G_Ambiente_Neustadt
Grundriss
Grundriss Neustadt 2022(1)
>
>
Adresse
38359 Bahrdorf
Interessante Orte
Preis- und Lageinformationen
Preistrend für Bestandsimmobilien in Bahrdorf