Entdecken Sie dieses einzigartige Mehrfamilienhaus, das im Jahr 1957 erbaut wurde und sich durch sein großes Entwicklungspotenzial auszeichnet. Mit insgesamt 9 Zimmern, 3 Bädern und 3 Küchen und einer Wohnfläche von ca. 166 m² bietet dieses Wohnhaus reichlich Platz für verschiedene Wohnkonzepte. Das Haus erstreckt sich über 3 Wohn-Etagen zzgl. das Kellergeschoss und steht auf einem weitläufigen Grundstück von 765 m².
Das Wohnhaus befindet sich in einer beliebten Wohngegend in Mörfelden-Walldorf, Ortsteil WALLDORF. Die ruhige und dennoch stadtnahe Lage bietet eine ideale Balance zwischen Entspannung und urbanem Leben. Die umliegende Nachbarschaft ist familienfreundlich und gut angebunden, sowohl an öffentliche Verkehrsmittel als auch an das Straßennetz.
Das Objekt besteht aus drei separaten Wohneinheiten, die sich im Erdgeschoss, Obergeschoss und Dachgeschoss befinden. Die Ausstattung ist derzeit einfach und das Haus ist sanierungsbedürftig, was jedoch die Möglichkeit bietet, Ihre persönliche Note einzubringen und das Haus nach Ihren Vorstellungen zu gestalten.
Zur Immobilie gehören eine Garage und zwei Pkw-Außenstellplätze, die für ausreichend Parkmöglichkeiten sorgen.
Auf dem hinteren Teil des Grundstücks befindet sich ein Wirtschaftsgebäude aus dem Jahr 1958. Mit knapp 90 m² Nutzfläche auf 2 Ebenen bietet es vielfältige Nutzungsmöglichkeiten.
Der großzügige Garten lädt zu gemütlichen Stunden im Freien ein und bietet viel Raum für Entspannung und Geselligkeit. Die vorhandenen Nachtspeicheröfen und die Stromversorgung sind funktional und können bei einer Sanierung modernisiert werden.
Dieses Mehrfamilienhaus ist eine hervorragende Gelegenheit für Investoren oder Familien, die ein Projekt mit großem Potenzial suchen.
Ob Abriss oder Kernsanierung – hier haben Sie die Chance, ein wahres Schmuckstück zu schaffen. Das Haus steht derzeit leer und wartet darauf, von Ihnen zum Leben erweckt zu werden.
Für das Wohnhaus wurde aktuell ein Antrag zur Aufnahme in das "Lärmsanierungsprogramm an Schienenwegen des Bundes" gestellt. Individuelle Maßnahmen an Gebäuden, wie der Einbau von Schallschutzfenstern, schallgedämmten Wandlüftern oder die Dämmung von Rollläden, Wänden und Dächern werden durch den Bund bis zu 75% gefördert und durch die DB InfraGO AG umgesetzt.
Sprechen Sie uns an, um die vielfältigen Möglichkeiten zu besprechen und Ihre Zukunftspläne zu verwirklichen.
Abriss oder Kernsanierung: Mehrfamilienhaus mit viel Potenzial auf großem Grundstück
64546 Mörfelden-Walldorf
Die vollständige Adresse der Immobilie erhalten Sie vom Anbieter.
Auf Karte anzeigen
Die vollständige Adresse der Immobilie erhalten Sie vom Anbieter.
Finanzierungszertifikat
In nur zwei Minuten zu Ihrem persönlichen Finanzierungszertifkat.
Infos
| Haustyp | Mehrfamilienhaus |
|---|---|
| Etagenzahl | 3 |
| Wohnfläche ca. | 166 m2 |
| Grundstücksfläche | 765 m2 |
| Bezugsfrei ab | nach Vereinbarung |
| Zimmer | 9 |
| Badezimmer | 3 |
| Garage/Stellplatz | Garage |
| Anzahl Garage/Stellplatz | 3 |
Kosten
| Kaufpreis |
620.000 € |
|---|---|
| Preis für Garage/Stellplatz | 0 € |
| Provision |
Käuferprovision: 5,95 % inkl. MwSt. vom Kaufpreis |
Finanzierungsrechner:
Kaufpreis:
600.000 €
Eigenkapital:
600.000 €
Monatliche Rate
0 €
Effektiver Jahreszins
0 %
Sollzinsbindung
10 Jahre
Bausubstanz & Energieausweis
| Baujahr | 1957 |
|---|---|
| Qualität der Austattung | Einfach |
| Heizungsart | Nachtspeicherofen |
| Wesentliche Energieträger | Strom |
| Energieausweis | liegt vor |
| Energieausweistyp | Bedarfsausweis |
| Energieeffizienzklasse | H |
Energieeffizienzklasse H
- A+
- A
- B
- C
- D
- E
- F
- G
- H
- 0
- 25
- 50
- 75
- 100
- 125
- 150
- 175
- 200
- 225
- >250
Beschreibung des Objekts
Ausstattung
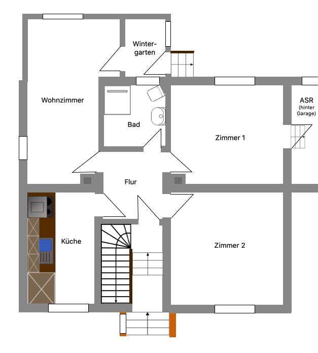
ERDGESCHOSS: *3-Zimmer-Wohnung*:
- Großes Wohnzimmer mit Wintergarten und Ausgang in den Garten
- Wohnküche mit Einbauküche und Elektrogroßgeräten
- Tageslicht-Badezimmer mit Dusche
OBERGESCHOSS: *4-Zimmer-Wohnung*:
- Großes Wohnzimmer mit Ausgang auf den "geschlossenen" Balkon
- Küche mit Küchenzeile
- Tageslicht-Badezimmer mit Badewanne
DACHGESCHOSS: *2-Zimmer-Wohnung*:
- Wohnzimmer mit Zugang in die Küche
- Küche mit Küchenzeile
- 2 große Abstellräume in den Schrägen
- Innenliegendes Badezimmer mit Dusche
KELLERGESCHOSS:
- Voll unterkellert
- Mehrere Kellerräume, u.a. als Hobbyraum oder als Gästezimmer nutzbar
- 1 Waschküche
- 1 innenliegendes WC + 1 Tageslicht-WC
- Ausgang in den Garten
PARKEN:
- 1 Garage
- 2 Pkw-Außenstellplätze
SONSTIGE AUSSTATTUNGSMERKMALE:
- Bodenbeläge: PVC, Teppichboden, Fliesen, Laminat
- Rollläden, im Erdgeschoss zusätzlich mit elektrischer Steuerung
- 2-geschossiges Wirtschaftsgebäude auf hinteren Teil des Grundstückes
- Großer Garten mit Freisitz
Lage
Mörfelden-Walldorf, eine Doppelstadt mit ca. 35.000 Einwohnern, mit verkehrsgünstiger Anbindung an das gesamte Rhein-Main-Gebiet. Mit dem Pkw sowie mit Bus, S-Bahn, Regional- und Fernzüge erreichen Sie schnell die umliegenden Städte Frankfurt am Main, Darmstadt, Wiesbaden. Die Bundesautobahnen A 3, A 5, A 66 und A 67 sind in wenigen Fahrminuten erreichbar. Zum Frankfurter Flughafen gelangen Sie bequem und schnell mit dem Pkw oder öffentlichen Verkehrsmitteln.
Vor Ort finden Sie alle Annehmlichkeiten einer behutsam gewachsenen Stadt. Kindergärten, Schulen, Bahnhof, Gastronomie und Geschäfte des täglichen Lebens sind in unmittelbarer Nähe. Mörfelden-Walldorf ist umgeben von viel Grün (u.a. das Naturschutzgebiet Mönchbruch) und ist ein idealer Startpunkt für viele Freizeitaktivitäten.
Weitere Informationen erhalten Sie auch unter: www.mörfelden-walldorf.de
(Bild: Quelle Google-Maps)
Sonstige Angaben
Dies ist nur eines unserer Objekte. Auf unserer eigenen Homepage unter www.neumann-immobilien.de haben Sie die Möglichkeit, Einsicht in alle unsere Angebote zu nehmen. Wir freuen uns, von Ihnen zu hören.
Info zum Geldwäschegesetz (GWG) gemäß § 2 Absatz 1 Nr. 10 GWG. Nach diesem Gesetz ist jeder Immobilienmakler verpflichtet, bei Kontaktaufnahme die Identität des Kunden festzustellen, d. h., Ausweispapiere zu kopieren bzw. zu fotografieren und 5 Jahre aufzubewahren. Bitte bringen Sie zur Besichtigung ein gültiges Ausweisdokument oder die Kopie Ihres Personalausweises mit. Bei juristischen Personen oder Personengesellschaften ist ein Handelsregisterauszug notwendig.
Grundriss
Grundriss Erdgeschoss
>
>
Grundriss Obergeschoss
>
>
Grundriss Dachgeschoss
>
>
Grundriss Kellergeschoss
>
>
Adresse
64546 Mörfelden-Walldorf
Interessante Orte
Preis- und Lageinformationen
Preistrend für Bestandsimmobilien in Mörfelden-Walldorf