Bei dieser Immobilie handelt es sich um eine Doppelhaushälfte, die ursprünglich in den 1930er-Jahren errichtet wurde. Das Haus befindet sich aktuell in einem Renovierungs- bzw. Sanierungszustand. Es bietet Potenzial für eine umfassende Modernisierung und eignet sich ebenso für einen Abriss mit Neubaupotenzial.
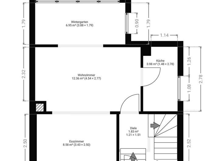
Das Grundstück umfasst ca. 720 m² und bietet einen straßenseitigen Zugang über einen Gehweg, der seitlich am Gebäude entlangführt und zum rückwärtig gelegenen Haupteingang des Hauses führt. Im Erdgeschoss befinden sich ein Wohn- und Essbereich mit angrenzender Küche sowie ein kleiner Vorbau, der zusätzliche Fläche bietet.
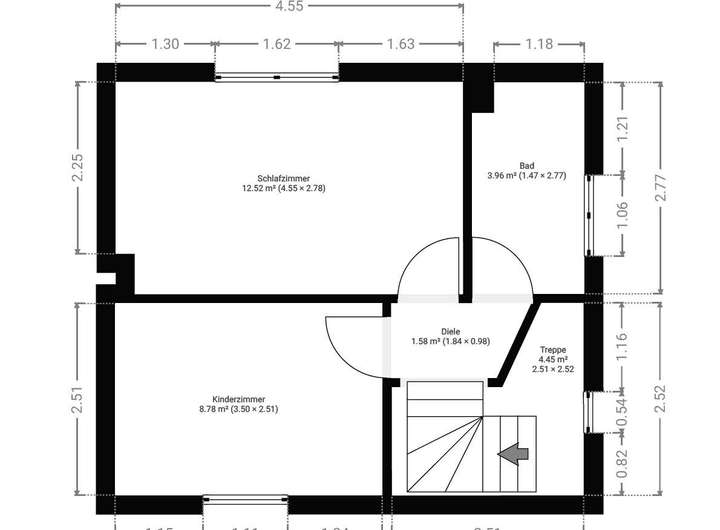
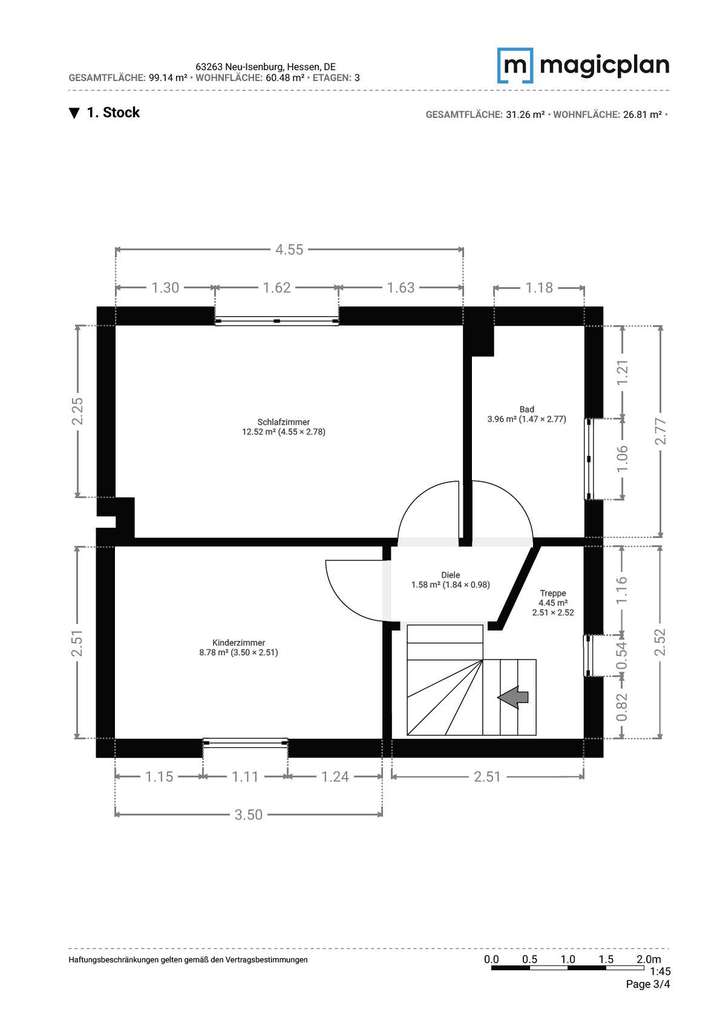
Im Obergeschoss gibt es zwei Schlafzimmer und ein Tageslichtbad.
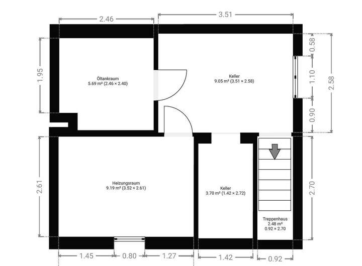
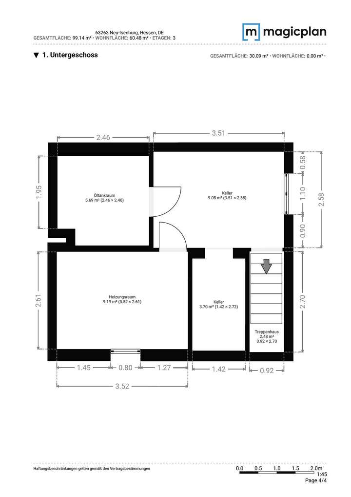
Der Keller bietet zusätzliche Nutzfläche. Mit einem großzügigen Raum, einem Heizungsraum mit Anschlussmöglichkeit für eine Waschmaschine, einem separaten Raum mit dem 3.000-Liter-Öltank sowie einem Abstellraum, der sich unter der Kellertreppe erstreckt.
Für mögliche Neubauten oder Umbauten ist der Bebauungsplan Z7 (Kreis Offenbach/Neu-Isenburg) maßgeblich. Alle relevanten Informationen hierzu ergeben sich aus diesem Plan. Zusätzlich sollte das Bauvorhaben mit dem zuständigen Bauamt abgestimmt werden, um die individuellen Möglichkeiten endgültig zu klären.
Die Lage in Neu-Isenburg / Zeppelinheim überzeugt durch ihre ruhige, familienfreundliche Umgebung sowie eine sehr gute Anbindung an Einkaufsmöglichkeiten, Schulen und öffentliche Verkehrsmittel.
Dieses Grundstück bietet vielseitiges Entwicklungspotenzial – ideal für Bauherren, die ihre Wohnideen nach eigenen Vorstellungen umsetzen möchten.
Ausbau- und Neubaupotenzial - Doppelhaushälfte mit weitläufigem Grundstück
63263 Neu-Isenburg
Die vollständige Adresse der Immobilie erhalten Sie vom Anbieter.
Auf Karte anzeigen
Die vollständige Adresse der Immobilie erhalten Sie vom Anbieter.
Finanzierungszertifikat
In nur zwei Minuten zu Ihrem persönlichen Finanzierungszertifkat.
Infos
| Haustyp | Doppelhaushaelfte |
|---|---|
| Etagenzahl | 2 |
| Wohnfläche ca. | 60 m2 |
| Nutzfläche | 27,63 m2 |
| Grundstücksfläche | 720 m2 |
| Bezugsfrei ab | sofort |
| Zimmer | 3 |
| Schlafzimmer | 2 |
| Badezimmer | 1 |
Kosten
| Kaufpreis |
399.900 € |
|---|---|
| Provision |
3,57 % inkl. MwSt. Käuferprovision beträgt 3,57 % (inkl. MwSt.) des beurkundeten Kaufpreises |
Finanzierungsrechner:
Kaufpreis:
600.000 €
Eigenkapital:
600.000 €
Monatliche Rate
0 €
Effektiver Jahreszins
0 %
Sollzinsbindung
10 Jahre
Bausubstanz & Energieausweis
| Baujahr | 1938 |
|---|---|
| Bauphase | Haus fertig gestellt |
| Objektzustand | Renovierungsbedürftig |
| Qualität der Austattung | Einfach |
| Heizungsart | Öl-Heizung |
| Wesentliche Energieträger | Öl |
| Energieausweis | liegt vor |
| Energieausweistyp | Bedarfsausweis |
| Energieverbrauchskennwert | 467,5 kWh/(m²*a) |
| Energieeffizienzklasse | H |
467,5
kWh/(m²*a)
Energieeffizienzklasse H
- A+
- A
- B
- C
- D
- E
- F
- G
- H
- 0
- 25
- 50
- 75
- 100
- 125
- 150
- 175
- 200
- 225
- >250
Beschreibung des Objekts
Ausstattung
- Wohnlage: begehrte Lage von Neu-Isenburg-Zeppelinheim
- Gebäude: Doppelhaushälfte mit Garten
- Wohnfläche: ca. 60,53 m²
- Nutzfläche: ca. 27,63 m²
- Grundstücksfläche: ca. 720 m²
- Keller: Ja
- Bodenbeläge: Fliesen, Laminat und PVC
- Fenster: 2-fach verglast, Kunststoff
- Heizung: Öl-Zentralheizung
- Garten: Ja
- Verkehrsanbindung: exzellent (sämtliche Autobahnen, Busse, Bahnen und der Frankfurter Flughafen sind in wenigen Minuten erreichbar)
Lage
Das angebotene Objekt befindet sich in Neu-Isenburg/Zeppelinheim und somit in bester Lage zwischen Frankfurt am Main und Mörfelden/Walldorf. Mit seiner exzellenten Anbindung an den internationalen Flughafen Frankfurt am Main, den Hauptbahnhof Frankfurt am Main sowie die Autobahnen A3, A5 und 661 sind jegliche Ziele in kürzester Zeit erreichbar. Gleichzeitig bietet das angebotene Objekt die Nähe zur Natur. Wälder, Wiesen, Seen und Naherholungsgebiete wie etwa der Taunus sind in unmittelbarer Nähe und daher schnell erreichbar.
Als Stadtteil von Neu-Isenburg gehört Zeppelinheim zum Landkreis Offenbach am Main und liegt ca. 6 km südlich von Frankfurt am Main sowie ca. 20 km nördlich von Darmstadt. Die Bundesstraße 44 stellt mit der Anschlussstelle Zeppelinheim die schnellste Straßenanbindung nach Frankfurt am Main her. Insgesamt wird das Objekt somit jedem Anspruch gerecht und es muss kein Wunsch offen bleiben.
Zusammenfassend lässt sich konstatieren, dass das angebotene Objekt zahlreiche Möglichkeiten bietet und sowohl für junge als auch ältere Menschen ein geeignetes Zuhause darstellt. Durch seine Nähe zu Frankfurt am Main eignet sich das Objekt darüber hinaus für Pendler, die Ihre Arbeitsstelle in Frankfurt am Main haben. Ideal ist das Objekt außerdem für Menschen, die am Frankfurter Flughafen arbeiten und nicht in der Frankfurter Innenstadt wohnen möchten, da sie nach der Arbeit dem hektischen Leben entfliehen wollen. Für alle denkbaren Nutzungsmöglichkeiten bietet die angebotene Immobilie ein überaus angenehmes und sehr komfortables Wohngefühl.
Sonstige Angaben
GELDWÄSCHE: Als Immobilienmaklerunternehmen ist die Main Estate Immobilien GmbH nach § 2 Abs. 1 Nr. 14 und § 11 Abs. 1, 2 Geldwäschegesetz (GwG) dazu verpflichtet, bei der Begründung einer Geschäftsbeziehung bzw. sobald ein ernsthaftes Interesse an der Durchführung des Immobilienkaufvertrages besteht, die Identität des Vertragspartners festzustellen und zu überprüfen. Hierzu ist es erforderlich, dass wir, wenn Sie als natürliche Person handeln, nach § 11 Abs. 4 GwG die relevanten Daten Ihres Personalausweises festhalten - beispielsweise mittels einer Kopie. Bei einer juristischen Person benötigen wir eine Kopie des Handelsregisterauszugs, aus welchem der wirtschaftlich Berechtigte hervorgeht. Das Geldwäschegesetz sieht vor, dass der Makler die Kopien bzw. Unterlagen fünf Jahre aufbewahren muss. Als unser Vertragspartner haben Sie auch eine Mitwirkungspflicht nach § 11 Abs. 6 GwG.
HAFTUNG: Wir weisen darauf hin, dass die von uns weitergegebenen Objektinformationen, Unterlagen, Pläne etc. vom Verkäufer bzw. Vermieter stammen. Eine Haftung für die Richtigkeit oder Vollständigkeit der Angaben übernehmen wir daher nicht. Es obliegt daher unseren Kunden, die darin enthaltenen Objektinformationen und Angaben auf ihre Richtigkeit hin zu überprüfen. Alle Immobilienangebote sind freibleibend und vorbehaltlich Irrtümer, Zwischenverkauf- und Vermietung oder sonstiger Zwischenverwertung.
HINWEIS: Sollten mehrere Kaufzusagen zur angebotenen Immobilie / Grundstück vorliegen, hält sich der Eigentümer das Recht vor, von einem Verkaufsangebot auf ein Bieterverfahren zu wechseln.
EIGENTÜMERSERVICE: Planen Sie den Verkauf oder die Vermietung Ihrer Immobilie, so ist es für Sie wichtig, deren Marktwert zu kennen. Lassen Sie kostenfrei und unverbindlich den aktuellen Wert Ihrer Immobilie professionell durch uns einschätzen. Unser professionelles Netzwerk ermöglicht es uns, Verkäufer bzw. Vermieter und Interessenten bestmöglich zusammenzuführen.
Weitere Dokumente
Grundriss KellergeschossGrundriss Erdgeschoss
Grundriss Obergeschoss
Grundriss
Grundriss Kellergeschoss
>
>
Grundriss Erdgeschoss
>
>
Grundriss Obergeschoss
>
>
Adresse
63263 Neu-Isenburg
Interessante Orte
Preis- und Lageinformationen
Preistrend für Bestandsimmobilien in Neu-Isenburg