Das Einfamilienhaus Sunshine 125 besticht durch seine sehr durchdachte Planung und sein attraktives Erscheinungsbild. Ziehen Sie ein in ihr neues Einfamilienhaus. Sichern Sie sich den besten Standard ab Effizienz 55 und unsere Energiepreisbremse I-KON!
Als Ausbauhaus Plus geplant, können Sie sich bereits jetzt auf ihr neues und schickes Haus freuen. Zahlreiche Gestaltungsmöglichkeiten und Optionen finden Sie bei www.Livinghaus.de !
Sichern Sie sich bereits für heute einen Energiestandard für die Zukunft dank I-KON!
Der angegebene Verkaufs-/ Angebotspreis bezieht sich auf die Grundoption als Ausbauhaus plus und ist optional mit vielen weiteren Anbauten erweiterbar. Das Grundstück ist preislich, lt. Angaben Eigentümer, im dargestellten Hauspreis enthalten. Änderungen/ Irrtümer vorbehalten! Gerne berate ich Sie in einem persönlichen Gespräch und zeige Ihnen den Weg in ihr neues Zuhause. Viva la Zuhause!
Alle Flächenangaben nach DIN 277
Dachneigung: Flachdach
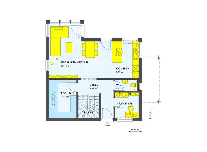
Nettogrundfläche Erdgeschoss: 62,77 m²
Nettogrundfläche Dachgeschoss: 62,08 m²
Nettogrundfläche gesamt: 124,85 m² *
Einfamilienhaus, 2 Kinderzimmer, Küche, Home-Office, Grundstück
39624 Kalbe (Milde)
Die vollständige Adresse der Immobilie erhalten Sie vom Anbieter.
Auf Karte anzeigen
Die vollständige Adresse der Immobilie erhalten Sie vom Anbieter.
Finanzierungszertifikat
In nur zwei Minuten zu Ihrem persönlichen Finanzierungszertifkat.
Infos
| Haustyp | Einfamilienhaus |
|---|---|
| Etagenzahl | 2 |
| Wohnfläche ca. | 125 m2 |
| Nutzfläche | 129 m2 |
| Grundstücksfläche | 1.000 m2 |
| Bezugsfrei ab | 2026 |
| Zimmer | 5 |
| Schlafzimmer | 1 |
| Badezimmer | 2 |
Kosten
| Kaufpreis |
358.000 € |
|---|
Finanzierungsrechner:
Kaufpreis:
600.000 €
Eigenkapital:
600.000 €
Monatliche Rate
0 €
Effektiver Jahreszins
0 %
Sollzinsbindung
10 Jahre
Bausubstanz & Energieausweis
| Baujahr | unbekannt |
|---|---|
| Bauphase | Haus in Planung (projektiert) |
| Qualität der Austattung | Normal |
| Heizungsart | Solar-Heizung |
| Wesentliche Energieträger | Solarheizung |
| Energieausweis | liegt vor |
| Energieausweistyp | Bedarfsausweis |
| Energieverbrauchskennwert | 18,0 kWh/(m²*a) |
| Energieeffizienzklasse | A+ |
18,0
kWh/(m²*a)
Energieeffizienzklasse A+
- A+
- A
- B
- C
- D
- E
- F
- G
- H
- 0
- 25
- 50
- 75
- 100
- 125
- 150
- 175
- 200
- 225
- >250
Beschreibung des Objekts
Ausstattung
DEIN ZUHAUSE. Na, wie hört sich das an? Nur gut? Oder sehr gut? Nimm dir das SUNSHINE 125. Wichtig: Bei uns sind sämtliche Ausbaumaterialien inklusive Verarbeitungsmaterialien bereits komplett im Hauspreis enthalten. Zusätzlich gibt es unsere Festpreisgarantie von 18 Monaten und unsere Bau-Vollkasko, damit du rundherum abgesichert bist!
Bestimme, wie groß es sein soll, was für Architektur- und Fassaden-Bauteile dran sollen und welche der vielen Grundrissvarianten deiner ist.
Auch deine Freundin/ Freund/ Frau/ Mann wird euer neues Zuhause lieben - und wenn ihr so weit seid, könnt ihr euren Kindern das wunderbare Zuhause bieten, das sie verdient haben. Denn unterm Dach gibt es neben dem Schlaf- und Badezimmer genügend Raum für ihre eigenen Kinderzimmer. Wir haben für alles eine Lösung!
Lage
Kalbe (Milde) (bis 1952 Calbe an der Milde) ist eine Stadt und ein staatlich anerkannter Erholungsort im Altmarkkreis Salzwedel in Sachsen-Anhalt. Kalbe (Milde) liegt zentral in der Altmark am Fluss Milde etwa sechs Kilometer östlich der Bundesstraße 71. Bereits am Ende der letzten Eiszeit hinterließen spätpaläolithische und mesolithische Jäger und Sammler zahlreiche Artefakte aus Stein, Knochen und Geweih im Moor von Kalbe.
Erstmals wurde Kalbe im Jahr 983 urkundlich erwähnt. In der Chronik des Bischofs und Geschichtsschreibers Thietmar von Merseburg wurde der Ort bei der Schilderung der Zerstörung des Laurentiusklosters durch aufständische Slawen genannt.
Kalbe gehörte bis 1952 zum Landkreis Salzwedel, wurde aber im Zuge der Verwaltungsreform in der DDR zu einer Kreisstadt im neu gegründeten Bezirk Magdeburg. Zur Unterscheidung von Calbe (Saale) wird Kalbe seitdem mit einem "K" geschrieben. Der Kreis Kalbe wurde Ende 1987 bereits wieder aufgelöst und die Stadt dem Kreis Gardelegen zugeteilt.
Der Bahnhof Kalbe (Milde) war jahrzehntelang der Betriebsmittelpunkt des rund 127 Kilometer umfassenden Streckennetzes der Altmärkischen Eisenbahn-AG und ihrer Vorgänger-Gesellschaften (siehe auch Altmärkische Kleinbahn AG). Im Juni 2001 wurde als letzte Strecke der Verkehr auf der Verbindung Hohenwulsch-Kalbe eingestellt. Als ein Relikt blieb der Lokschuppen Kalbe (Milde) erhalten.
Seit etwa 2008 ist Kalbe in das neue ÖPNV-Konzept des Altmarkkreises Salzwedel eingebunden. Dieses besteht unter anderem aus dem Landesbus 100 (Salzwedel-Kalbe-Gardelegen-Magdeburg) und der Buslinie 500 (Kalbe-Brunau-Salzwedel). (Quelle: Wikipedia)
Sonstige Angaben
Natürlich sind unsere Häuser mit den besten Energiekennwerten der heutigen Zeit ausgestattet. Gerne berate ich Sie auch hier über die vielen Möglichkeiten und auch, wie wir gemeinsam dadurch unseren Planeten schützen können. Das Erfüllen der Anforderungen für ein Zertifikat der Deutschen Gesellschaft für nachhaltiges Bauen (DGNB) ist für uns ein Lebensauftrag! Für Sie und auch für uns alle wollen wir unsere Welt besser machen!
Grundriss
Sunshine 125
>
>
Sunshine 125
>
>
Küche inklusive
>
>
Grund gesucht für Livinghausku
>
>
Adresse
39624 Kalbe (Milde)
Interessante Orte
Preis- und Lageinformationen
Preistrend für Bestandsimmobilien in Kalbe (Milde)