Eckdaten:
• Zentrale Lage mit guter Anbindung
• Jugendstilvilla
• Grundstück: 1900 m²
• Wohnfläche: 260,36 m²
• 9 Zimmer
• Gaszentralheizung
Willkommen in dieser besonderen, denkmalgeschützten Jugendstilvilla im Herzen von Eilsleben, einem Ort, der Ruhe, gewachsene Gemeinschaft und eine authentische Lebensqualität miteinander vereint. Auf dem weitläufigen Grundstück von rund 1.900 m² öffnet sich eine Wohnwelt von 260,36 m², verteilt auf neun charakterstarke Zimmer – ein Zuhause, das seine Geschichte spürbar macht und gleichzeitig mit den steuerlichen Vorteilen der Denkmal-Afa überzeugt. Ein Energieausweis ist aufgrund des Denkmalschutzes nicht erforderlich.
Schon beim ersten Schritt in das Haus entfaltet sich der Zauber vergangener Jahrzehnte: liebevoll erhaltene Stuckornamente, farbige Bunt- und Ätzglasfenster, Terrazzo, Dielung und feines Parkett erzählen von der Handwerkskunst einer anderen Zeit. Zwei freundliche Tageslichtbäder, ein nostalgischer Kachelofen und die harmonische Raumgestaltung verbinden dieses historische Ambiente mit dem Gefühl von Geborgenheit und zeitgemäßem Komfort.
Die großzügige Vollunterkellerung, das Nebengelass mit eigener Werkstatt und die Ausbaureserve im Dachgeschoss eröffnen Raum für persönliche Träume und neue Ideen. Draußen lädt der große Garten mit seinem alten Baumbestand dazu ein, den Alltag hinter sich zu lassen – ein Ort, der nach ein wenig Pflege wieder zu einem wunderbaren Rückzugsraum werden kann. Der geschützte Innenhof mit Stellplätzen ergänzt das stimmige Gesamtbild.
Diese Jugendstilvilla ist ein Zuhause für Menschen, die das Besondere schätzen, die Geschichte fühlen und Räume lieben, die mehr erzählen als nur ihre Quadratmeterzahl – ein Ort, an dem Neues entstehen darf, ohne das Alte zu verlieren.
Jugendstilvilla – steuerlich attraktiv
39365 Eilsleben
Die vollständige Adresse der Immobilie erhalten Sie vom Anbieter.
Auf Karte anzeigen
Die vollständige Adresse der Immobilie erhalten Sie vom Anbieter.
Finanzierungszertifikat
In nur zwei Minuten zu Ihrem persönlichen Finanzierungszertifkat.
Infos
| Haustyp | Villa |
|---|---|
| Wohnfläche ca. | 260 m2 |
| Grundstücksfläche | 1.900 m2 |
| Zimmer | 9 |
| Schlafzimmer | 8 |
| Badezimmer | 2 |
Kosten
| Kaufpreis |
295.000 € |
|---|---|
| Provision |
4,0% zzgl. MwSt. Käuferprovision, verdient und fällig mit Beurkundung des notariellen Kaufvertrages. Der Immobilienmakler hat einen provisionspflichtigen Maklervertrag mit dem Verkäufer in gleicher Höhe abgeschlossen. |
Finanzierungsrechner:
Kaufpreis:
600.000 €
Eigenkapital:
600.000 €
Monatliche Rate
0 €
Effektiver Jahreszins
0 %
Sollzinsbindung
10 Jahre
Bausubstanz & Energieausweis
| Baujahr | 1907 |
|---|---|
| Denkmalschutzobjekt | Ja |
Beschreibung des Objekts
Ausstattung
• Nostalgischer Kachelofen
• 2 Tageslicht-Bäder
• Terrazzo Fußboden
• Dielung und Parkett
• Nebengelass mit Werkstatt
• Großer Garten
• Stellplätze im Innenhof
• Moderner Grundriss
• Stuckverzierungen
• Vollunterkellert
• Ausbaureserve im Dachboden
• Bunt- und Ätzglasfenster
• Regenwasserzisterne
Lage
Eilsleben ist ein gepflegter Ort im Landkreis Börde in Sachsen-Anhalt, zentral zwischen Magdeburg und Helmstedt gelegen. Die Gemeinde besticht durch ihre ruhige, familienfreundliche Atmosphäre und gleichzeitig durch ihre hervorragende Verkehrsanbindung. Über die nahegelegene Bundesstraße B245 sowie die Autobahn A2 ist Eilsleben bestens mit dem regionalen und überregionalen Straßennetz verbunden. Der Bahnhof Eilsleben bietet zudem regelmäßige Zugverbindungen, insbesondere Richtung Magdeburg, sodass auch Pendler den Standort zu schätzen wissen.
Die Infrastruktur im Ort ist gut entwickelt: Einkaufsmöglichkeiten, ärztliche Versorgung, Schulen, Kindergärten und gastronomische Angebote sind vorhanden und fußläufig erreichbar. Das grüne Umland mit Wiesen, Feldern und kleinen Wäldern lädt zu Spaziergängen, sportlichen Aktivitäten und Erholung im Freien ein.
Eilsleben verbindet das Beste aus zwei Welten – naturnahes, entspanntes Wohnen mit gleichzeitig guter Erreichbarkeit der nächstgrößeren Städte. Ein Ort mit hoher Lebensqualität und wachsendem Entwicklungspotenzial.Einkaufszentren und vielfältige Sportvereine runden das Angebot ab.
Sonstige Angaben
Sie möchten Ihre Immobilie Verkaufen?
Mit uns haben Sie ein Team, das in Details verliebt ist, bestehend aus Sachverständiger und Immobilien Makler (IHK). Alle unsere Teammitglieder besitzen eine erfolgsorientierte Mischung aus Leidenschaft und Expertise in diesem Markt.
Richtig bewertet, erfolgreich verkauft!
Wir freuen uns auf Sie!
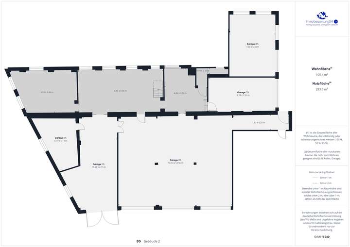
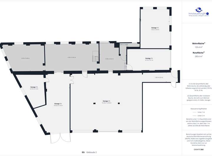
Grundriss
EG
>
>
DG
>
>
KG
>
>
EG - Gebäude-2
>
>
Adresse
39365 Eilsleben
Interessante Orte
Preis- und Lageinformationen
Preistrend für Bestandsimmobilien in Eilsleben