Bist du bereit? Lass uns loslegen!
Warum warten, wenn dein eigenes Zuhause nur eine Entscheidung entfernt ist?
Unsere Wegbegleiter holen dich dort ab, wo du gerade stehst, und ebnen deinen persönlichen Weg zum Wohneigentum.
Fehlt dir noch das passende Grundstück? Wir helfen dir, es zu finden.
Hast du Fragen zur Finanzierung? Wir haben die Lösung.
Bist du unsicher, welches Haus das richtige für dich ist? Unsere Experten unterstützen dich dabei.
Es gibt nie den perfekten Moment, aber es gibt den richtigen Schritt.
Dein Zuhause beginnt heute mit White&Black.
Dein Zuhause, so individuell wie du.
56410 Montabaur
Die vollständige Adresse der Immobilie erhalten Sie vom Anbieter.
Auf Karte anzeigen
Die vollständige Adresse der Immobilie erhalten Sie vom Anbieter.
Finanzierungszertifikat
In nur zwei Minuten zu Ihrem persönlichen Finanzierungszertifkat.
Infos
| Haustyp | Einfamilienhaus |
|---|---|
| Wohnfläche ca. | 122 m2 |
| Nutzfläche | 0 m2 |
| Grundstücksfläche | 676 m2 |
| Zimmer | 3 |
| Schlafzimmer | 3 |
| Badezimmer | 1 |
| Anzahl Garage/Stellplatz | 0 |
Kosten
| Kaufpreis |
294.479 € |
|---|---|
| Provision | Nein |
Finanzierungsrechner:
Kaufpreis:
600.000 €
Eigenkapital:
600.000 €
Monatliche Rate
0 €
Effektiver Jahreszins
0 %
Sollzinsbindung
10 Jahre
Bausubstanz & Energieausweis
| Baujahr | 2026 |
|---|---|
| Bauphase | Haus in Planung (projektiert) |
| Qualität der Austattung | Gehoben |
| Heizungsart | Wärmepumpe |
Beschreibung des Objekts
Ausstattung
THINK WHITE – Do it yourself.
- Fertige Gebäudehülle – du entscheidest über den Innenausbau
- Maximale Individualität – für kreative Köpfe & Macher
- Ideal für Eigenleistung – handwerkliches Geschick spart bares Geld
- Optimierte Grundrisse – smarte Wohnkonzepte für flexible Gestaltung
- Hochwertige Bauweise – modern, nachhaltig & energieeffizient
- Zugang zu staatlichen Förderprogrammen – clever finanzieren & sparen
Für alle, die ihr Zuhause selbst gestalten wollen!
Lage
Dieses Hausprojekt ist auf einem realen Baugrundstück vorgesehen oder befindet sich aktuell in der Planungsphase – wahlweise kann es selbstverständlich auch auf Ihrem eigenen Grundstück realisiert werden. Das Grundstück erwerben Sie direkt vom jeweiligen Eigentümer. Der angegebene Hauspreis versteht sich ohne Grundstück.
Aus Datenschutz- und Diskretionsgründen können Grundstücksdaten nur im Rahmen eines persönlichen Gesprächs weitergegeben werden.
Gern unterstützen wir Sie bei der Suche nach einem passenden Bauplatz und beraten Sie individuell zu Ihrem Bauvorhaben – unverbindlich und persönlich. Eine Beratung können Sie im Musterhaus Mülheim-Kärlich oder im Verkaufsbüro Wissen, Marktstraße 2, 57537 Wissen vereinbaren.
Jens Schwanke
Handy: 0170-8778132
Sonstige Angaben
Vereinbare einen persönlichen Beratungstermin, um über Deinen Haustraum und das angebotene Objekt zu sprechen.
Bitte beachte, dass die dargestellten Bilder und Grundrisse nur beispielhaft sind und unter Umständen Sonderbauteile enthalten, die nicht im angegebenen Preis enthalten sind.
Ein Grundstück ist im angegebenen Preis nicht enthalten.
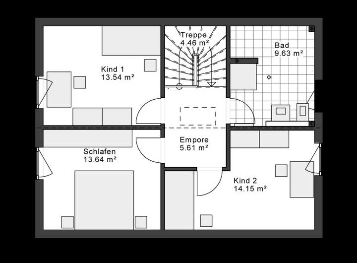
Grundriss
Grundriss EG
>
>
Grundriss OG
>
>
Adresse
56410 Montabaur
Interessante Orte
Preis- und Lageinformationen
Preistrend für Bestandsimmobilien in Montabaur