Willkommen in deinem zukünftigen Zuhause, einem beeindruckenden Einfamilienhaus mit 145 m² Wohnfläche, das auf einem großzügigen Grundstück von 330 m² in Seeheim-Jugenheim entsteht. Mit insgesamt 7 Zimmern, darunter 3 Schlafzimmer und 2 moderne Badezimmer, bietet dieses Haus ausreichend Platz für die ganze Familie. Das klassische Satteldach mit einer Neigung von 38 Grad verleiht dem Haus nicht nur eine zeitlose Ästhetik, sondern sorgt auch für ein behagliches Wohnklima. Die bodentiefen Fenster lassen viel Licht herein und schaffen eine einladende Atmosphäre, während Erker den Wohnraum zusätzlich vergrößern und ein Gefühl von Weite vermitteln. Bei LivingHaus hast du die Möglichkeit, dein Haus ganz nach deinen Vorstellungen zu gestalten, ohne Kompromisse eingehen zu müssen.
Um dein Traumhaus noch perfekter zu machen, bieten wir dir eine Vielzahl an zusätzlichen Leistungen. Die hochwertige Traumküche von Living Haus wird speziell auf deinen Grundriss abgestimmt und überzeugt mit modernster Technik, cleveren Stauraumlösungen und einem ästhetischen Design - pünktlich zum Einzug geliefert, damit du sofort loslegen kannst. Mit dem Living Haus Bau-Cockpit behältst du stets den Überblick über dein Bauprojekt. Die App ermöglicht dir den Zugriff auf den Zeitplan und die Dokumentenverwaltung - alles digital und einfach zugänglich.
Das Konzept I-KON - Intelligentes Bauen steht für nachhaltiges Bauen und modernste Technik. Dein Zuhause wird energieeffizient und perfekt an deine Bedürfnisse angepasst, was dir auch einen ökologischen Fußabdruck ermöglicht. Mit dem Zuhause-Darlehen profitierst du von günstigen Finanzierungsmöglichkeiten, die dir helfen, dein Traumhaus zu realisieren.
Das Zuhause-Paket sorgt für eine hochwertige Grundausstattung in deinem neuen Heim: moderne Böden, edle Türen und stilvolle Sanitäranlagen, alles optimal aufeinander abgestimmt. Wenn du gerne handwerklich tätig bist, kannst du mit unserem DIY-Ausbau-Coaching zum Profi in deinem eigenen Zuhause werden - in nur drei Tagen erhältst du praxisnahe Tipps und Unterstützung von Experten.
LivingHaus bietet dir ein durchdachtes Gesamtkonzept, das nicht nur die perfekte Planung, sondern auch die individuelle Ausgestaltung deines Traumhauses umfasst. Mach den ersten Schritt in dein neues Zuhause und realisiere deine Vorstellungen!
Dein individuell gestaltetes Traumhaus in Seeheim-Jugenheim
64342 Seeheim-Jugenheim
Die vollständige Adresse der Immobilie erhalten Sie vom Anbieter.
Auf Karte anzeigen
Die vollständige Adresse der Immobilie erhalten Sie vom Anbieter.
Finanzierungszertifikat
In nur zwei Minuten zu Ihrem persönlichen Finanzierungszertifkat.
Infos
| Haustyp | Einfamilienhaus |
|---|---|
| Etagenzahl | 2 |
| Wohnfläche ca. | 135 m2 |
| Grundstücksfläche | 290 m2 |
| Bezugsfrei ab | 2026 |
| Zimmer | 5 |
| Schlafzimmer | 3 |
| Badezimmer | 2 |
Kosten
| Kaufpreis |
650.000 € |
|---|
Finanzierungsrechner:
Kaufpreis:
600.000 €
Eigenkapital:
600.000 €
Monatliche Rate
0 €
Effektiver Jahreszins
0 %
Sollzinsbindung
10 Jahre
Bausubstanz & Energieausweis
| Baujahr | 2026 |
|---|---|
| Bauphase | Haus in Planung (projektiert) |
| Qualität der Austattung | Gehoben |
| Energieausweis | liegt zur Besichtigung vor |
Beschreibung des Objekts
Ausstattung
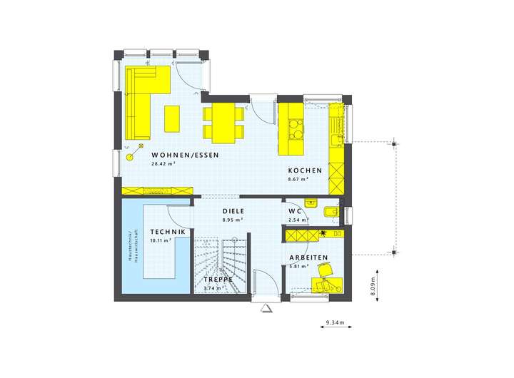
Dein zukünftiges Zuhause wird mit einer Vielzahl an hochwertigen Ausstattungsmerkmalen geliefert, die deinen Wohnkomfort maximieren. Die modernen Böden und edlen Türen schaffen eine stilvolle Atmosphäre, während die Sanitäranlagen in den Badezimmern höchsten Ansprüchen genügen. Die hochwertige Traumküche wird speziell auf deinen Grundriss angepasst und kommt mit neuester Technik sowie cleveren Stauraumlösungen. Energiesparende I-KON-Technologie sorgt für ein nachhaltiges Wohnklima und reduziert die Energiekosten. Im Zuhause-Paket sind alle Innenausbaumaterialien enthalten, darunter Fliesen für das gesamte Erdgeschoss und bodengleiche Duschen mit Echtglasabtrennungen. Mit einem hohen Vorfertigungsgrad wird der Bauprozess effizient gestaltet, und du erhältst eine Festpreisgarantie sowie umfassende Bauversicherungen. So kannst du sicher sein, dass dein Haus so wird, wie du es dir wünschst - dein "Wie ich es will Fertighaus".
Lage
Seeheim-Jugenheim ist nicht nur ein malerischer Ort, sondern bietet auch eine ausgezeichnete Infrastruktur für Familien und Naturliebhaber. In unmittelbarer Nähe findest du verschiedene Schulen, darunter die Grundschule Seeheim und die Überwaldschule, die beide durch gute Bewertungen überzeugen. Für die Kleinsten gibt es mehrere Kindergärten, die eine hervorragende Betreuung bieten.
Die Einkaufsmöglichkeiten sind vielfältig: Supermärkte wie REWE und Lidl sind gut erreichbar und decken deine täglichen Bedürfnisse ab. Für medizinische Versorgung gibt es in der Umgebung zahlreiche Ärzte und Apotheken, die leicht zu erreichen sind.
In deiner Freizeit hast du die Wahl zwischen zahlreichen Aktivitäten. Die umliegenden Wälder und Grünflächen laden zu ausgedehnten Spaziergängen, Radtouren oder Familienausflügen ein. Der nahegelegene Odenwald ist ideal für Naturliebhaber und bietet zahlreiche Wanderwege und Freizeitmöglichkeiten.
Die Anbindung an den öffentlichen Nahverkehr ist ebenfalls sehr gut. Mit dem Bus erreichst du problemlos die benachbarten Städte und die S-Bahn-Station in Jugenheim ist nur einen kurzen Fußweg entfernt, sodass du schnell in die Metropolregion Rhein-Neckar gelangst. Die Autobahn A5 ist ebenfalls in wenigen Minuten erreichbar, was Pendlern eine bequeme Anreise zu den Arbeitsplätzen in der Umgebung ermöglicht.
Insgesamt ist Seeheim-Jugenheim der perfekte Ort für dein zukünftiges Zuhause - eine harmonische Kombination aus Natur, Bildung und urbanem Lebensstil!
Adresse
64342 Seeheim-Jugenheim
Interessante Orte
Preis- und Lageinformationen
Preistrend für Bestandsimmobilien in Seeheim-Jugenheim