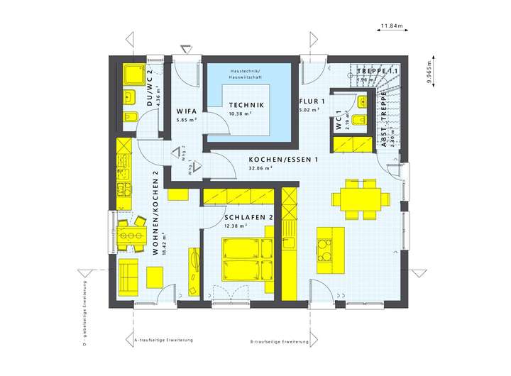
Dieses einzigartige LivingHaus ist ein wahres Mehrgenerationenhaus und wird ganz nach deinen Wünschen und Vorstellungen projektiert. Mit einer großzügigen Wohnfläche von 190 m² und sieben Zimmern bietet es ausreichend Platz für die ganze Familie. Das klassische Satteldach mit einer Neigung von 38 Grad ermöglicht nicht nur eine ansprechende Optik, sondern bietet auch die perfekte Fläche für eine PV-Anlage, die dir nachhaltigen Strom liefert. Im Inneren erwartet dich ein lichtdurchfluteter Wohn- und Essbereich durch die beiden Erker im Erdgeschoss, die ideal für gesellige Abende mit Freunden und Familie sind. Im Obergeschoss sorgt der Giebel mit Flachdach für ein luftiges Raumgefühl, das dir ein angenehmes Wohnambiente beschert. Bei LivingHaus kannst du außerdem von einem umfangreichen Serviceangebot profitieren: Mit der Traumküche von Living Haus wird deine Küche individuell auf deinen Grundriss abgestimmt, mit modernster Technik und cleveren Stauraumlösungen ausgestattet. Das Living Haus Bau-Cockpit ermöglicht dir, deinen Bauprozess digital zu verwalten und stets den Überblick zu behalten. I-KON - Intelligentes Bauen sorgt dafür, dass dein Zuhause energieeffizient und nachhaltig ist. Mit dem Zuhause-Darlehen kannst du von attraktiven Finanzierungsmöglichkeiten profitieren, während das Zuhause-Paket dir eine hochwertige Grundausstattung garantiert. Zudem bieten wir dir das DIY-Ausbau-Coaching an, damit du selbst Hand anlegen kannst und zum Profi in deinem eigenen Zuhause wirst. So entsteht ein individuelles Traumhaus, das perfekt zu deinem Lebensstil passt.
Lebensräume für alle Generationen: Dein individuelles LivingHaus in Riedstadt-Leeheim
64560 Riedstadt
Die vollständige Adresse der Immobilie erhalten Sie vom Anbieter.
Auf Karte anzeigen
Die vollständige Adresse der Immobilie erhalten Sie vom Anbieter.
Finanzierungszertifikat
In nur zwei Minuten zu Ihrem persönlichen Finanzierungszertifkat.
Infos
| Haustyp | Mehrfamilienhaus |
|---|---|
| Etagenzahl | 2 |
| Wohnfläche ca. | 190 m2 |
| Grundstücksfläche | 554 m2 |
| Bezugsfrei ab | 2027 |
| Zimmer | 7 |
| Schlafzimmer | 4 |
| Badezimmer | 2 |
Kosten
| Kaufpreis |
985.000 € |
|---|---|
| Provision | Nein |
Finanzierungsrechner:
Kaufpreis:
600.000 €
Eigenkapital:
600.000 €
Monatliche Rate
0 €
Effektiver Jahreszins
0 %
Sollzinsbindung
10 Jahre
Bausubstanz & Energieausweis
| Baujahr | unbekannt |
|---|---|
| Bauphase | Haus in Planung (projektiert) |
| Qualität der Austattung | Gehoben |
| Heizungsart | Wärmepumpe |
| Energieausweis | liegt zur Besichtigung vor |
Beschreibung des Objekts
Ausstattung
In deinem neuen LivingHaus profitierst du von einer erstklassigen Ausstattung, die auf deine Bedürfnisse zugeschnitten ist. Du erhältst moderne Böden, edle Türen und stilvolle Sanitäranlagen, alles optimal aufeinander abgestimmt und fix und fertig geliefert. Das Zuhause-Paket sorgt dafür, dass du direkt einziehen kannst und alles bereits vorbereitet ist. Die hochwertige Traumküche von Living Haus wird maßgeschneidert und mit modernster Technik ausgestattet, sodass du sofort mit dem Kochen beginnen kannst. Mit I-KON garantieren wir dir ein energieeffizientes und umweltfreundliches Zuhause, während das DIY-Ausbau-Coaching dir die Möglichkeit gibt, den Innenausbau selbst zu gestalten. So wird dein Fertighaus genau so, wie du es dir wünschst - dein ganz persönliches "Wie ich es will Fertighaus".
Lage
Riedstadt-Leeheim ist ein idealer Ort für Familien und Naturliebhaber. Hier findest du zahlreiche Bildungseinrichtungen: Kindergärten und Schulen sind in der Nähe und bieten eine ausgezeichnete Betreuung für deine Kinder. Die Grundschule Leeheim hat durchweg positive Bewertungen von Eltern erhalten, insbesondere für ihre engagierten Lehrkräfte. Für die älteren Schüler gibt es in der Umgebung weiterführende Schulen, die gut erreichbar sind. In Sachen Gesundheit kannst du dich auf mehrere Arztpraxen und Apotheken freuen, die in kurzer Distanz liegen und dir eine umfassende medizinische Versorgung bieten. Einkaufsmöglichkeiten sind ebenfalls vorhanden: Supermärkte wie Rewe und Aldi sind einfach zu erreichen und decken deinen täglichen Bedarf. Für Freizeitaktivitäten bietet Riedstadt-Leeheim attraktive Angebote wie Sportvereine, Spielplätze und Grünflächen zum Entspannen und Erholen. Die gute Anbindung an den öffentlichen Nahverkehr und die Autobahn sorgt dafür, dass du schnell in die umliegenden Städte wie Darmstadt oder Wiesbaden gelangst. Pendler finden hier eine hervorragende Verkehrsanbindung, während Naturliebhaber die umliegenden Wälder und Wanderwege genießen können. Riedstadt-Leeheim vereint ländliches Wohnen mit urbanen Annehmlichkeiten und ist somit der perfekte Ort für dein neues Zuhause.
Sonstige Angaben
Beginne deine eigene Immobilie zu finanzieren und nicht mehr die deines Vermieters.
Ein Auszug unserer Leistungen:
- 18 Monate Festpreisgarantie
- Grundstücksservice (Hilfe bei der Suche und Begleitung bis
zum Notartermin)
- Bauversicherungen
- Zuhause-Darlehn 250.000 EUR bis zu 0,5 % unter Marktpreis bei
10-jähriger Zinsbindung
- Bauherren-Cockpit (LivingHaus App für Kontakte zu
Ansprechpartner, Überblick Projektfortschritt, Budgetrechner,
Zugriff auf Bauunterlagen und, und, und....
- DGNB-Serienzertifizierung in Gold
- QDF-zertifiziert inkl. digitaler Hausbauakte
- 30 Jahre Garantie auf tragende Konstruktion
- 5 Jahre Gewährleistung auf alles
- 2 Tage Ausstattungsberatung in der Haus-Statterei
- Architektenleistungen
- Technikberatung
- Bodengutachten
- Baustelleneinrichtung
- KfW-Förderung
- QNG-förderfähig
- Inkl. I-Kon vorkonfiguriert
- Modernste Wärmepumpentechnik
- Zuhause-Paket
- Fliesen im kompletten Erdgeschoss im Zuhause-Paket
- Bodengleiche Duschen im Kompletten Haus im Zuhause-Paket
- Netzwerkverkabelung
- Baustrom u. Bauwasser auf Kundenwunsch
- Individuelle Küchenplanung
- DIY Ausbau-Coaching
u. v. m.
Bei dem hier beworbenen Angebot handelt es sich um eine Beispiel-Bebauung auf einem realen Grundstück. Verschiedene Varianten können hier möglich sein. Frag danach! Die projektierten Grundstücke sind von Erschließungsträgern, Maklern oder Privatpersonen. LivingHaus tritt ausschließlich asl das bauausführende Unternehmen auf. Gerne plane ich euer Traumhaus auch auf ein bereits vorhandenes oder reserviertes oder noch zu suchendes Grundstück.
Nicht im Angebot enthalten sind die individuellen Kosten wie z. B. Baunebenkosten. Im Beratungsgespräch gehen wir auf sämtlich anfallende Kosten ein. Jederzeit transparent und nachvollziehbar, damit keine Überraschungen auftreten.
Adresse
64560 Riedstadt
Interessante Orte
Preis- und Lageinformationen
Preistrend für Bestandsimmobilien in Riedstadt