Die Alternative: großes Haus, fette Party.
Ihr nehmt die untere Wohnung und in der oberen Familie/Freunde. Stylishe Architektur und viel Platz im Doppelpack! Ladet noch mehr Freunde ein und lasst es krachen. Es ist eure Wohnung, euer Haus. Und wenn irgendwann die Familienplanung ansteht, macht aus dem Spiel- und Spielezimmer mit Dart, Brettspielen und Co. ein Kinderzimmer. Dann werden es immerhin noch fette Kindergeburtstagspartys. Und es bleibt doch DEIN ZUHAUSE.
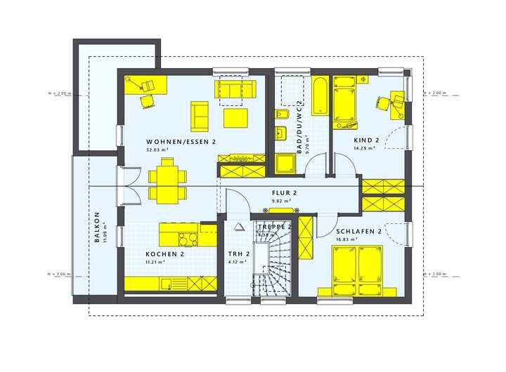
Bilder können Extras enthalten.
Das Grundstück kann EXKLUSIV mit einem Livinghaus bebaut werden.
"Zweifamilienhaus" Flexibel für die Zukunft
61231 Bad Nauheim
Die vollständige Adresse der Immobilie erhalten Sie vom Anbieter.
Auf Karte anzeigen
Die vollständige Adresse der Immobilie erhalten Sie vom Anbieter.
Finanzierungszertifikat
In nur zwei Minuten zu Ihrem persönlichen Finanzierungszertifkat.
Infos
| Haustyp | Mehrfamilienhaus |
|---|---|
| Etagenzahl | 2 |
| Wohnfläche ca. | 204 m2 |
| Grundstücksfläche | 480 m2 |
| Bezugsfrei ab | 2026 |
| Zimmer | 6 |
| Schlafzimmer | 4 |
| Badezimmer | 2 |
Kosten
| Kaufpreis |
1.026.024 € |
|---|
Finanzierungsrechner:
Kaufpreis:
600.000 €
Eigenkapital:
600.000 €
Monatliche Rate
0 €
Effektiver Jahreszins
0 %
Sollzinsbindung
10 Jahre
Bausubstanz & Energieausweis
| Baujahr | 2026 |
|---|---|
| Bauphase | Haus in Planung (projektiert) |
| Qualität der Austattung | Gehoben |
| Heizungsart | Zentralheizung |
| Energieausweis | liegt vor |
| Energieausweistyp | Bedarfsausweis |
| Energieverbrauchskennwert | 18,0 kWh/(m²*a) |
| Energieeffizienzklasse | A+ |
18,0
kWh/(m²*a)
Energieeffizienzklasse A+
- A+
- A
- B
- C
- D
- E
- F
- G
- H
- 0
- 25
- 50
- 75
- 100
- 125
- 150
- 175
- 200
- 225
- >250
Beschreibung des Objekts
Ausstattung
In diesem Angebot enthalten:
- 18 Monate Festpreisgarantie!
- Baugrundstück (falls benötigt)
- auf den Grundriss individuell geplante Küche mit Kochinsel,
Softclose, Induktion, Spülmaschine und vielem mehr!
- Haus als Plusenergiehaus mit Kühlfunktion
- Bodenplatte (oder Keller)
- Photovoltaikanlage mit 8,91 kWp
- Stromspeicher VARTA pulse neo 6 mit 6,5 kWh
- Elektroinstallation durch Livinghaus
- Sanitärrohinstallation durch Livinghaus
- Dämmung und Beplankung durch Livinghaus
- Estricharbeiten durch Livinghaus
- komplettes hochwertiges Finish-Material (Boden- und
Wandbeläge, Innentüren, Sanitärobjekte, bis hin zum
Handtuchhalter ist alles enthalten)
- Ausbaucoach für 3 Tage auf eurer eigenen Baustelle (DiY -
Academy)
- Architektenleistung
- Finanzierungsservice mit Sonderkonditionen
- Baucockpit App damit ihr immer die nächsten Schritte im Blick
habt
- DGNB Zertifikat in GOLD
Die Abbildungen können Sonderbauteile enthalten
Grundrissänderungswünsche sind ohne weitere Kosten enthalten.
Lage
Bad Nauheim ist eine Stadt im Wetteraukreis in Hessen, Deutschland, und liegt am östlichen Rand des Taunus, etwa 35 Kilometer nördlich von Frankfurt am Main.
Geographische Lage:
Koordinaten: Ca. 50°22' N, 8°44' O
Höhe: Etwa 140 bis 200 Meter über dem Meeresspiegel
Umgebung:
Nördlich: Ober-Mörlen und Butzbach
Östlich: Friedberg und Wölfersheim
Südlich: Rosbach vor der Höhe
Westlich: Wehrheim und Usingen
Landschaft und Natur:
Natur: Geprägt von einer Mischung aus urbanen Gebieten, Parks und umliegenden Wäldern und Hügeln des Taunus
Gewässer: Der Fluss Usa fließt durch die Stadt
Verkehrsanbindung:
Straßen: Gut erreichbar über die Bundesstraßen B3 und B275; nahe der Autobahnen A5 und A45
Öffentlicher Nahverkehr: Bad Nauheim hat einen Bahnhof mit regelmäßigen Zugverbindungen nach Frankfurt am Main, Gießen und Kassel; zudem gibt es ein umfassendes Busnetz innerhalb der Stadt und in die umliegenden Gemeinden
Wirtschaft und Infrastruktur:
Wirtschaft: Eine Mischung aus kleinen und mittelständischen Unternehmen, Gesundheitswesen und Kureinrichtungen, diverse Dienstleistungsunternehmen, Einzelhandel und Tourismus
Bildung: Mehrere Grundschulen, eine Gesamtschule, eine berufliche Schule und ein Gymnasium, zahlreiche Kindergärten
Freizeit: Vielfältige kulturelle Angebote, darunter Theater, Museen, Kinos und Konzerte; Sportvereine, ein Thermalbad, zahlreiche Parks und Grünanlagen, Wander- und Radwege; historische Sehenswürdigkeiten wie der Kurpark, das Sprudelhofensemble und die Jugendstilbauten.
Bad Nauheim bietet eine attraktive Kombination aus städtischem Leben, historischer Kurstadt-Atmosphäre und naturnaher Umgebung. Mit ihrer guten Anbindung an das Rhein-Main-Gebiet ist die Stadt ein beliebter Wohnort für Pendler und Familien sowie ein bedeutendes Zentrum für Gesundheit und Tourismus.
Sonstige Angaben
Die APP für dein neues Zuhause
Mit der Bau-Cockpit APP hast du immer alle Infos zu deinem Fertighaus griffbereit. Alle relevanten Dokumente sowie der Baufortschritt sind mit einem Klick abrufbar.
Ich zeige dir, wie du zu deinem perfekten Traumhaus kommst und freue mich darauf, von dir zu hören!
Adresse
61231 Bad Nauheim
Interessante Orte
Preis- und Lageinformationen
Preistrend für Bestandsimmobilien in Bad Nauheim