Willkommen zu Ihrem neuen Traumhaus in Oberneisen!
Dieses charmante Einfamilienhaus, erbaut im Jahr 2005, kombiniert gepflegten Zustand mit solider, massiver Bauweise und bietet Ihnen eine Wohlfühloase auf zwei Etagen.
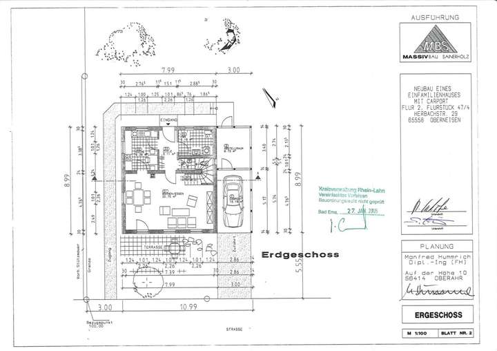
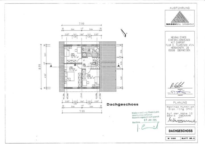
Mit einer Wohnfläche von ca. 110 m² (Angabe lt. Bauplan) und einer Nutzfläche von ca. 9,43 m² im HAR (Hausanschlußraum) bietet dieses Haus auf zwei Ebenen ausreichend Raum für Ihre Familie. Die Grundstücksgröße umfasst ca. 493 m². Auf ein Kellergeschoss wurde verzichtet.
Im Inneren erwarten Sie vier großzügige Zimmer, darunter drei Schlafzimmer, die Ihnen und Ihrer Familie eine angenehme Rückzugsmöglichkeit bieten. Das helle Badezimmer mit Dusche, Badewanne und Bidet sorgen für Komfort und Bequemlichkeit im Alltag. Ein separates Gäste-WC im Erdgeschoss ist ebenfalls vorhanden.
Die Ausstattung des Hauses umfasst eine schöne Einbauküche, in der Sie Ihre kulinarischen Fähigkeiten entfalten können. An kühlen Tagen lädt der gemütliche Specksteinofen im Wohnzimmer dazu ein, entspannte Stunden mit Ihren Liebsten zu verbringen. Darüber hinaus bieten Fliesen, Teppichboden und Korkplatten-Bodenbelag eine harmonische Mischung aus Stil und Funktionalität.
Genießen Sie sonnige Tage in Ihrem eigenen Garten oder auf der Terrasse mit Südwest-Ausrichtung, die zum Verweilen und Entspannen einlädt. Die Möglichkeit zur Gartennutzung eröffnet zahlreiche Gestaltungsmöglichkeiten für Naturliebhaber und Hobbygärtner gleichermaßen. Im Garten befinden sich ein großes Gartenhaus mit Einbauküche sowie ein Gerätehaus, die keine Wünsche offen lassen.
Das Haus ist nach Vereinbarung verfügbar und wartet darauf, von Ihnen mit Leben erfüllt zu werden. Nutzen Sie diese Gelegenheit und entdecken Sie Ihr neues Zuhause in dieser ruhigen und familienfreundlichen Lage.
Überzeugen Sie sich selbst von der perfekten Kombination aus Komfort, Stil und Funktionalität, die dieses Haus in Oberneisen bietet.
Ein Besuch wird Sie begeistern!
Traumhaftes Einfamilienhaus mit Garten in naturnaher Lage von Oberneisen
65558 Oberneisen
Die vollständige Adresse der Immobilie erhalten Sie vom Anbieter.
Auf Karte anzeigen
Die vollständige Adresse der Immobilie erhalten Sie vom Anbieter.
Finanzierungszertifikat
In nur zwei Minuten zu Ihrem persönlichen Finanzierungszertifkat.
Infos
| Haustyp | Einfamilienhaus |
|---|---|
| Etagenzahl | 2 |
| Wohnfläche ca. | 110 m2 |
| Nutzfläche | 9,43 m2 |
| Grundstücksfläche | 493 m2 |
| Bezugsfrei ab | nach Vereinbarung |
| Zimmer | 4 |
| Schlafzimmer | 3 |
| Badezimmer | 1 |
| Garage/Stellplatz | Außenstellplatz |
| Anzahl Garage/Stellplatz | 2 |
Kosten
| Kaufpreis |
389.000 € |
|---|---|
| Provision |
3,57 % vom notariellen Kaufpreis inkl. 19 % MwSt. |
Finanzierungsrechner:
Kaufpreis:
600.000 €
Eigenkapital:
600.000 €
Monatliche Rate
0 €
Effektiver Jahreszins
0 %
Sollzinsbindung
10 Jahre
Bausubstanz & Energieausweis
| Baujahr | 2005 |
|---|---|
| Objektzustand | Gepflegt |
| Qualität der Austattung | Normal |
| Heizungsart | Gas-Heizung |
| Wesentliche Energieträger | Gas |
| Energieausweis | liegt vor |
| Energieausweistyp | Verbrauchsausweis |
| Energieverbrauchskennwert | 133,5 kWh/(m²*a) |
| Energieeffizienzklasse | E |
133,5
kWh/(m²*a)
Energieeffizienzklasse E
- A+
- A
- B
- C
- D
- E
- F
- G
- H
- 0
- 25
- 50
- 75
- 100
- 125
- 150
- 175
- 200
- 225
- >250
Beschreibung des Objekts
Ausstattung
- 2 SOLARANLAGEN
- die erste aus 2011
- die zweite ist im Jahr 2023 dazugekommen
- Modernes Badezimmer mit Fenster, Dusche, Wanne, Bidet und WC
- Gäste-WC
- Moderne Einbauküche
- Hauswirtschaftsraum
- Bodenbeläge: Fliesen, Teppichboden, Korkplatten
- Kabel-Sat-TV
- hochwertiger Specksteinofen
- große, gepflasterte Terrasse
- schöner Wintergarten
- großes Gartenhaus mit Wohnbereich, Einbauküche und Spitzboden
- sowie ein weiteres Gerätehaus
- zwei PKW Carports für insgesamt 4 PKW´s
- kleiner ausgebauter Dachboden
- Dachspeicher (über Bodenauszugstreppe)
- Solaranlage (Neu im Jahr 2011)
- die Beheizung des Hauses erfolgt über:
- eine Gaszentralheizung mit Warmwasserpufferspeicher
- und über einen Kaminofen (Stückholz)
Lage
Dieses charmante Einfamilienhaus befindet sich in einer ruhigen und idyllischen Wohngegend in Hünfelden / Oberneisen, einer beschaulichen Gemeinde im Herzen von Rheinland-Pfalz. Umgeben von malerischer Natur bietet diese Lage den perfekten Rückzugsort vom hektischen Alltag.
Für Familien ist bestens gesorgt: Ein Kindergarten ist vor Ort und eine weiterer liegt in nur knapp 3 Kilometern Entfernung, während die nächste Grundschule und Realschule ebenfalls in 3 Kilometer Entfernung schnell erreichbar sind. Weiterführende Bildungseinrichtungen wie ein Gymnasium sind nur gut 7 Kilometer entfernt, was Oberneisen zu einem idealen Standort für Familien mit Kindern macht.
Sonstige Angaben
ÜBER UNS:
Martin Brandt Immobilien, gegründet 1993, ist mit mehr als 32 Jahren Erfahrung einer der führenden Immobilien-Dienstleister in der Rhein-Main-Region. Wir unterstützen Sie als unabhängiger Immobilienmakler mit detaillierter Markt- und Objektkenntnis bei der schnellen und kundenorientierten Immobiliensuche und Vermittlung.
HABEN WIR IHR INTERESSE GEWECKT ?
Diese Immobilie gefällt Ihnen? Sie wünschen eine Besichtigung? Bitte nutzen Sie die elektronische Kontaktmöglichkeit auf dieser Seite und senden Sie uns Ihre Mail mit Angabe Ihres vollständigen Namens, Ihrer Telefon Nummer(n), E-Mail-Adresse und Ihres Terminwunsches. Bitte denken Sie auch an einen möglichen alternativen Termin.
V E R H A N D L U N G E N :
Sind ausschließlich über uns zu führen.
B E S I C H T I G U N G S T E R M I N E :
Für weitere Informationen sowie die Vereinbarung eines Besichtigungstermins stehen wir Ihnen gerne zur Verfügung. Wir freuen uns auf Ihre e-Mail Anfrage unter: immobilien@bpi24.de
A N S P R E C H P A R T N E R :
Martin Brandt und Kerstin Brandt
M A K L E R P R O V I S I O N :
Im Falle des Zustandekommens eines Kaufvertrages, ist eine Courtage in Höhe von 3,57 % inkl. 19 % MwSt. vom vereinbarten und notariellen Kaufpreis vom Käufer an den Makler zu zahlen.
FREUNDLICHER HINWEIS :
Alle Angaben in diesem Exposé wurden sorgfältig und so vollständig wie möglich gemacht. Dennoch kann das Vorhandensein von Fehlern nicht ausgeschlossen werden. Die Angaben in diesem Exposé erfolgen daher ohne Gewähr und basieren ausschließlich auf Informationen, die uns vom Verkäufer/Vermieter bzw. von Dritten zur Verfügung gestellt wurden, so dass wir keine Gewähr für die Vollständigkeit, Richtigkeit und Aktualität dieser Angaben übernehmen können. Irrtum und Zwischenverkauf/Zwischenvermietung bleibt vorbehalten.
Weitere Dokumente
EnergieausweisGrundriss
Grundriss Erdgeschoss
>
>
Grundriss Dachgeschoss
>
>
Adresse
65558 Oberneisen
Interessante Orte
Preis- und Lageinformationen
Preistrend für Bestandsimmobilien in Oberneisen