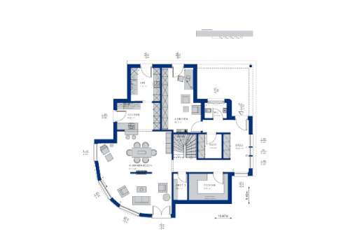
Wer von außen den Runderker noch nicht gesehen hat, wird von ihrem Schnitt überrascht sein
- Im Erdgeschoss befinden sich ein großes Wohn-Esszimmer mit offenem Kochbereich
- Arbeitszimmer
- Technik und Hauswirtschaftsräume
- Abstellräume
-Gäste WC
- im Obergeschoss befinden sich 2 Kinderzimmer und
1 Schlafzimmer mit Ankleidezimmer
- 1 großes Badezimmer
EFH+Bauplatz- Ihr maßgeschneidertes Traumhaus- individuell und nachhaltig aus dem Hause Bien Zenker
55595 Münchwald
Die vollständige Adresse der Immobilie erhalten Sie vom Anbieter.
Auf Karte anzeigen
Die vollständige Adresse der Immobilie erhalten Sie vom Anbieter.
Finanzierungszertifikat
In nur zwei Minuten zu Ihrem persönlichen Finanzierungszertifkat.
Infos
| Wohnfläche ca. | 202 m2 |
|---|---|
| Grundstücksfläche | 604 m2 |
| Zimmer | 6,5 |
Kosten
| Kaufpreis |
698.704 € |
|---|
Finanzierungsrechner:
Kaufpreis:
600.000 €
Eigenkapital:
600.000 €
Monatliche Rate
0 €
Effektiver Jahreszins
0 %
Sollzinsbindung
10 Jahre
Bausubstanz & Energieausweis
| Baujahr | unbekannt |
|---|
Beschreibung des Objekts
Ausstattung
Gerne planen wir mit Ihnen zusammen Ihr exklusives Traumhaus mit den Details, die für Sie wichtig sind.
Lage
Münchwald ist eine Ortsgemeinde im Landkreis Bad Kreuznach in Rheinland-Pfalz. Sie gehört der Verbandsgemeinde Rüdesheim an.
Sonstige Angaben
-Im angegebenen Preis ist das Grundstück bereits enthalten
-Gerne planen wir den Hausbau gemeinsam mit Ihnen auch auf Ihrem bereits vorhandenen Grundstück
-In einem ausführlichen Beratungsgespräch ermitteln wir für Sie gerne eine detaillierte Gesamtkostenaufstellung
-Das Angebot ist unverbindlich und freibleibend, exklusive der Baunebenkosten wie z.B. Hausanschlüsse, Außenanlagen...
-Abbildungen und Grundrisse zeigen Extras!
-Das Haus ist gerechnet " Zur Ausstattung fertig"
Grundriss
94843-6961-1-g
>
>
94841-6961-2-g
>
>
Adresse
55595 Münchwald
Interessante Orte
Preis- und Lageinformationen
Preistrend für Bestandsimmobilien in Münchwald