mehrere Generationen unter einem Dach vereint - diese traditionelle Wohnform gewinnt wieder zunehmend an Bedeutung. Wichtig dabei ist, dass jeder Bewohner, egal ob groß oder klein, ob alt oder jung, den gleichen Wohnkomfort genießt
- im Haupthaus findet eine Familie mit bis zu zwei Kindern eine komfortable Wohnwelt mit großen Gemeinschaftsflächen und gemütlichen Rückzugsbereichen vor
Gemeinsam mit Bien Zenker Ihr Traumhaus inkl. Baugrundstück planen und bauen !
55595 Münchwald
Die vollständige Adresse der Immobilie erhalten Sie vom Anbieter.
Auf Karte anzeigen
Die vollständige Adresse der Immobilie erhalten Sie vom Anbieter.
Finanzierungszertifikat
In nur zwei Minuten zu Ihrem persönlichen Finanzierungszertifkat.
Infos
| Wohnfläche ca. | 206 m2 |
|---|---|
| Grundstücksfläche | 540 m2 |
| Zimmer | 8 |
Kosten
| Kaufpreis |
693.700 € |
|---|
Finanzierungsrechner:
Kaufpreis:
600.000 €
Eigenkapital:
600.000 €
Monatliche Rate
0 €
Effektiver Jahreszins
0 %
Sollzinsbindung
10 Jahre
Bausubstanz & Energieausweis
| Baujahr | unbekannt |
|---|
Beschreibung des Objekts
Ausstattung
Gerne planen wir mit Ihnen zusammen Ihr exklusives Traumhaus mit den Details, die für Sie wichtig sind.
Lage
Münchwald ist eine Ortsgemeinde im Landkreis Bad Kreuznach in Rheinland-Pfalz. Sie gehört der Verbandsgemeinde Rüdesheim an.
Sonstige Angaben
-Im angegebenen Preis ist das Grundstück bereits enthalten
-Gerne planen wir den Hausbau gemeinsam mit Ihnen auch auf Ihrem bereits vorhandenen Grundstück
-In einem ausführlichen Beratungsgespräch ermitteln wir für Sie gerne eine detaillierte Gesamtkostenaufstellung
-Das Angebot ist unverbindlich und freibleibend, exklusive der Baunebenkosten wie z.B. Hausanschlüsse, Außenanlagen...
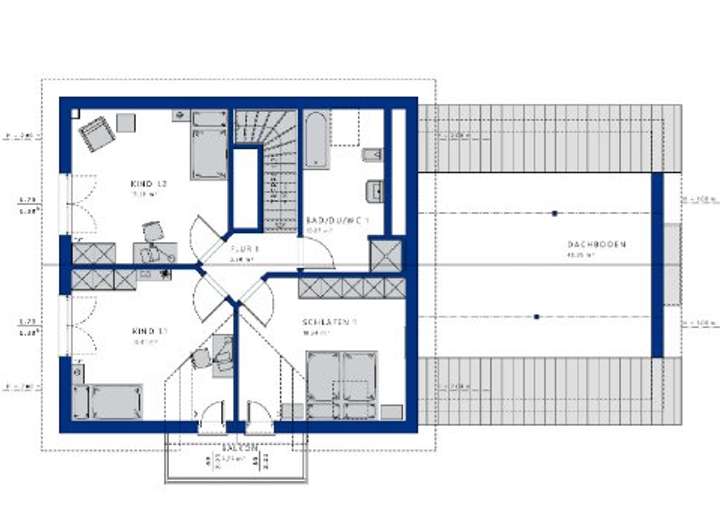
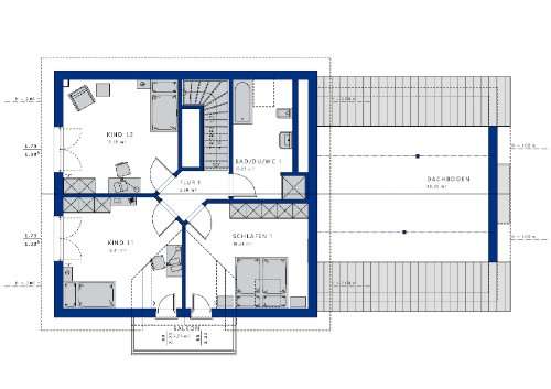
-Abbildungen und Grundrisse zeigen Extras!
-Das Haus ist gerechnet " Zur Ausstattung fertig"
Grundriss
94820-6959-3-g
>
>
94821-6959-4-g
>
>
Adresse
55595 Münchwald
Interessante Orte
Preis- und Lageinformationen
Preistrend für Bestandsimmobilien in Münchwald