Mehrere Generationen unter einem Dach vereint
Mehrgenerationenhaus- Alle unter einem Dach oder mit Freunden oder Familie gemeinsam das Traumhaus
55599 Siefersheim
Die vollständige Adresse der Immobilie erhalten Sie vom Anbieter.
Auf Karte anzeigen
Die vollständige Adresse der Immobilie erhalten Sie vom Anbieter.
Finanzierungszertifikat
In nur zwei Minuten zu Ihrem persönlichen Finanzierungszertifkat.
Infos
| Wohnfläche ca. | 203 m2 |
|---|---|
| Grundstücksfläche | 402 m2 |
| Zimmer | 8 |
Kosten
| Kaufpreis |
748.722 € |
|---|
Finanzierungsrechner:
Kaufpreis:
600.000 €
Eigenkapital:
600.000 €
Monatliche Rate
0 €
Effektiver Jahreszins
0 %
Sollzinsbindung
10 Jahre
Bausubstanz & Energieausweis
| Baujahr | unbekannt |
|---|
Beschreibung des Objekts
Ausstattung
Mehrere Generationen unter einem Dach vereint - diese traditionelle Wohnform gewinnt wieder zunehmend an Bedeutung. Wichtig dabei ist, dass jeder Bewohner, egal ob groß oder klein, ob alt oder jung, den gleichen Wohnkomfort genießt. Im Idealfall lässt sich das Mehrgenerationenhaus flexibel auf veränderte Lebensumstände anpassen. Die zweite Wohneinheit könnte beispielsweise als Studentenwohnung für den Nachwuchs genutzt oder vermietet werden. Wie modernes Mehrgenerationen-Wohnen aussehen kann, zeigt dieses elegante Satteldachhaus. Der zweigeschossige Hauptbaukörper geht mit einem großen Anbau, der ebenfalls von einem Satteldach gekrönt wird, in die Verlängerung. So entsteht nicht nur ein sehr harmonisches Gesamtbild, sondern auch zusätzliche Abstellfläche in Form eines Dachbodens. Blickfang sind die beiden blaugrau abgesetzten Erker, die dem Gebäudeensemble eine frische Note geben.
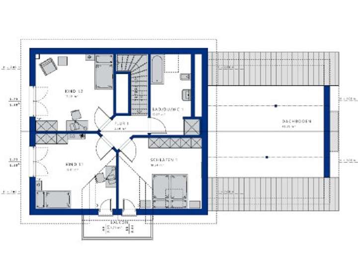
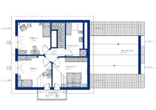
Im Haupthaus findet eine Familie mit bis zu zwei Kindern eine komfortable Wohnwelt mit großen Gemeinschaftsflächen und gemütlichen Rückzugsbereichen vor. Mehr als die Hälfte der Erdgeschossfläche wird vom offenen Wohn-, Ess- und Kochbereich eingenommen. Bodentiefe Fenster schaffen eine Verbindung in den Garten und lassen große Mengen Tageslicht einströmen. An warmen Sommertagen können sie weit geöffnet werden, sodass die Terrasse zum Teil des Wohngeschehens wird. In der vorderen Hälfte des Erdgeschosses liegen das Gäste-WC, das über den Garderobenbereich betreten wird, eine Abstellkammer sowie ein helles Arbeitszimmer. Das Dachgeschoss beherbergt das gut geschnittene Elternschlafzimmer mit Zugang zum Balkon, das Familienbad sowie zwei gleich große Kinderzimmer. So werden Streitigkeiten von vornherein vermieden. Die barrierefreie Einliegerwohnung im Anbau eignet sich hervorragend für ältere Paare oder Singles. Nahtlos schließt sich der Wohn-, Ess- und Kochbereich an die Diele an. Ein Highlight ist das Sitzfenster im Erker, das als gemütliche Leseecke oder als zusätzlicher Sitzplatz beim Essen genutzt werden kann. Abgerundet wird das Raumprogramm von einem Schlafzimmer mit angrenzendem Ankleidebereich sowie einem komfortablen Badezimmer.
Lage
Siefersheim ist eine Ortsgemeinde im Landkreis Alzey-Worms in Rheinland-Pfalz. Sie gehört der Verbandsgemeinde Wöllstein an
Sonstige Angaben
Im angegebenen Preis ist das Grundstück bereits enthalten. Gerne planen wir den Hausbau gemeinsam mit Ihnen auch auf Ihrem bereits vorhandenen Grundstück. In einem ausführlichen Beratungsgespräch ermitteln wir für Sie gerne eine detaillierte Gesamtkostenaufstellung. Das Angebot ist unverbindlich und freibleibend, exklusive der Baunebenkosten wie z.B. Hausanschlüsse, Außenanlagen... Abbildungen und Grundrisse zeigen Extras! Das Haus ist gerechnet " Zur Ausstattung fertig"
Grundriss
94777-6956-3-g
>
>
94781-6956-4-g
>
>
Adresse
55599 Siefersheim
Interessante Orte
Preis- und Lageinformationen
Preistrend für Bestandsimmobilien in Siefersheim