Mehrere Generationen unter einem Dach vereint - diese traditionelle Wohnform gewinnt wieder zunehmend an Bedeutung. Wichtig dabei ist, dass jeder Bewohner, egal ob groß oder klein, ob alt oder jung, den gleichen Wohnkomfort genießt. Im Idealfall lässt sich das Mehrgenerationenhaus flexibel auf veränderte Lebensumstände anpassen. Die zweite Wohneinheit könnte beispielsweise als Studentenwohnung für den Nachwuchs genutzt oder vermietet werden.
Mehrgenerationenhaus- Alle unter einem Dach oder mit Freunden oder Familie gemeinsam das Traumhaus
55595 Hargesheim
Die vollständige Adresse der Immobilie erhalten Sie vom Anbieter.
Auf Karte anzeigen
Die vollständige Adresse der Immobilie erhalten Sie vom Anbieter.
Finanzierungszertifikat
In nur zwei Minuten zu Ihrem persönlichen Finanzierungszertifkat.
Infos
| Wohnfläche ca. | 203 m2 |
|---|---|
| Grundstücksfläche | 440 m2 |
| Zimmer | 8 |
Kosten
| Kaufpreis |
808.844 € |
|---|
Finanzierungsrechner:
Kaufpreis:
600.000 €
Eigenkapital:
600.000 €
Monatliche Rate
0 €
Effektiver Jahreszins
0 %
Sollzinsbindung
10 Jahre
Bausubstanz & Energieausweis
| Baujahr | unbekannt |
|---|
Beschreibung des Objekts
Ausstattung
Gerne planen wir mit Ihnen zusammen Ihr exklusives Traumhaus mit den Details, die für Sie wichtig sind.
Lage
Hargesheim ist eine Ortsgemeinde im Landkreis Bad Kreuznach in Rheinland-Pfalz. Sie gehört der Verbandsgemeinde Rüdesheim an und ist einwohnermäßig deren größte Gemeinde
Sonstige Angaben
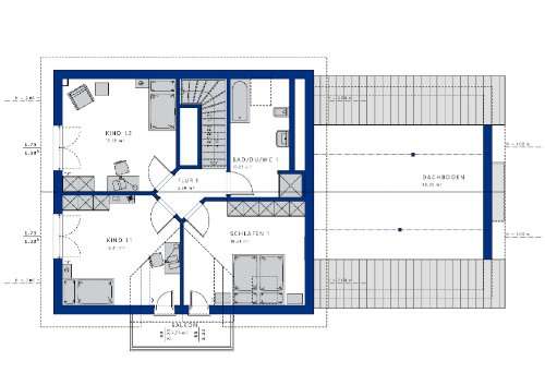
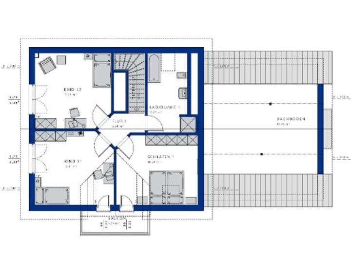
Im angegebenen Preis ist das Grundstück bereits enthalten. Gerne planen wir den Hausbau gemeinsam mit Ihnen auch auf Ihrem bereits vorhandenen Grundstück. In einem ausführlichen Beratungsgespräch ermitteln wir für Sie gerne eine detaillierte Gesamtkostenaufstellung. Das Angebot ist unverbindlich und freibleibend, exklusive der Baunebenkosten wie z.B. Hausanschlüsse, Außenanlagen... Abbildungen und Grundrisse zeigen Extras! Das Haus ist gerechnet " Zur Ausstattung fertig"
Grundriss
94712-6951-3-g
>
>
94713-6951-4-g
>
>
Adresse
55595 Hargesheim
Interessante Orte
Preis- und Lageinformationen
Preistrend für Bestandsimmobilien in Hargesheim