- Mehrere Generationen unter einem Dach vereint - diese traditionelle Wohnform gewinnt wieder zunehmend an Bedeutung. Wichtig dabei ist, dass jeder Bewohner, egal ob groß oder klein, ob alt oder jung, den gleichen Wohnkomfort genießt
- Die zweite Wohneinheit könnte beispielsweise als Studentenwohnung für den Nachwuchs genutzt oder vermietet werden. Wie modernes Mehrgenerationen-Wohnen aussehen kann
EFH+sep. Mietwohnung ideal auch als Ferienwohnung anzubieten inkl. Baugrundstück!
55576 Sprendlingen
Die vollständige Adresse der Immobilie erhalten Sie vom Anbieter.
Auf Karte anzeigen
Die vollständige Adresse der Immobilie erhalten Sie vom Anbieter.
Finanzierungszertifikat
In nur zwei Minuten zu Ihrem persönlichen Finanzierungszertifkat.
Infos
| Wohnfläche ca. | 203 m2 |
|---|---|
| Grundstücksfläche | 532 m2 |
| Zimmer | 8 |
Kosten
| Kaufpreis |
802.933 € |
|---|
Finanzierungsrechner:
Kaufpreis:
600.000 €
Eigenkapital:
600.000 €
Monatliche Rate
0 €
Effektiver Jahreszins
0 %
Sollzinsbindung
10 Jahre
Bausubstanz & Energieausweis
| Baujahr | unbekannt |
|---|
Beschreibung des Objekts
Ausstattung
Gerne planen wir mit Ihnen zusammen Ihr exklusives Traumhaus mit den Details, die für Sie wichtig sind.
Lage
Sprendlingen ist eine Ortsgemeinde im Landkreis Mainz-Bingen in Rheinland-Pfalz. Die Gemeinde ist Verwaltungssitz der Verbandsgemeinde Sprendlingen-Gensingen, der sie auch angehört. Sprendlingen ist gemäß Landesplanung als Grundzentrum ausgewiesen
Sonstige Angaben
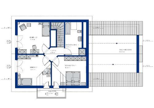
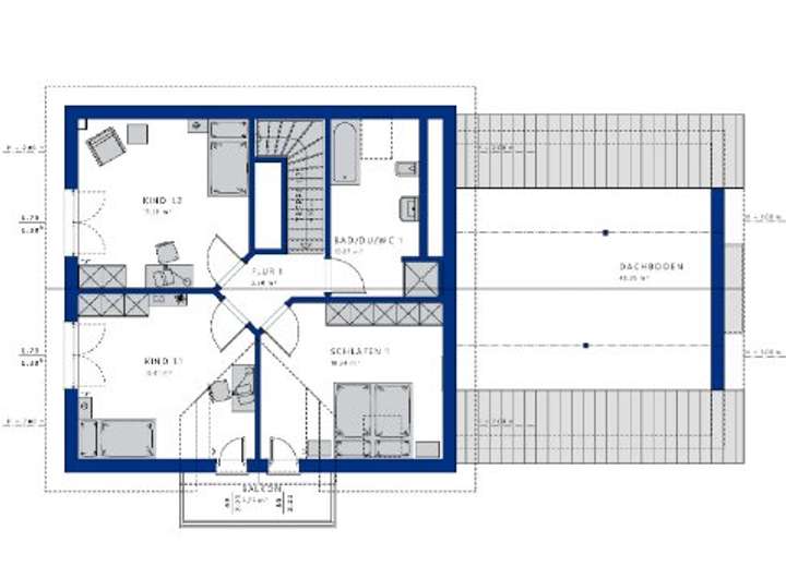
Im angegebenen Preis ist das Grundstück bereits enthalten. Gerne planen wir den Hausbau gemeinsam mit Ihnen auch auf Ihrem bereits vorhandenen Grundstück. In einem ausführlichen Beratungsgespräch ermitteln wir für Sie gerne eine detaillierte Gesamtkostenaufstellung. Das Angebot ist unverbindlich und freibleibend, exklusive der Baunebenkosten wie z.B. Hausanschlüsse, Außenanlagen... Abbildungen und Grundrisse zeigen Extras! Das Haus ist gerechnet " Zur Ausstattung fertig"
Grundriss
94630-6946-4-g
>
>
94637-6946-3-g
>
>
Adresse
55576 Sprendlingen
Interessante Orte
Preis- und Lageinformationen
Preistrend für Bestandsimmobilien in Sprendlingen