Herzlich willkommen in Ihrer neuen Doppelhaushälfte in Spiesheim! Dieses maßgeschneiderte Zuhause wurde speziell nach Ihren Wünschen konzipiert und bietet Ihnen auf 123,83 m² Wohnfläche alles, was Ihr Herz begehrt. Erleben Sie auf zwei Etagen ein harmonisches Zusammenspiel aus modernen und funktionalen Elementen. Das Haus umfasst 4 Zimmer, darunter 3 einladende Schlafzimmer, ein stilvolles Badezimmer mit Dusche und Wanne sowie ein zusätzliches Gäste-WC - perfekt für die Bedürfnisse jeder Familie.
Das durchdachte Konzept ermöglicht Ihnen nicht nur individuelle Gestaltungsmöglichkeiten, sondern auch einen hohen Komfort beim Wohnen. Genießen Sie die offenen Räume und die lichtdurchfluteten Bereiche, die ein behagliches Wohnklima schaffen.
Die Kombination aus Fliesen und Laminat als Bodenbeläge sorgt nicht nur für ein modernes Ambiente, sondern bietet auch praktische Vorteile: Fliesen sind leicht zu reinigen und ideal für feuchte Räume, während Laminat eine warme und gemütliche Atmosphäre in den Wohnbereichen schafft.
Ein weiteres Highlight stellt die umweltfreundliche Wärmepumpe dar, die Ihr Zuhause effizient beheizt und gleichzeitig die Energiekosten niedrig hält. Mit dem KFW55 Standard sparen Sie nicht nur Energie, sondern leisten auch einen wertvollen Beitrag zur Nachhaltigkeit.
Ihr Traum vom Eigenheim in Spiesheim - Modern, Funktional und Individuell
55288 Spiesheim
Die vollständige Adresse der Immobilie erhalten Sie vom Anbieter.
Auf Karte anzeigen
Die vollständige Adresse der Immobilie erhalten Sie vom Anbieter.
Finanzierungszertifikat
In nur zwei Minuten zu Ihrem persönlichen Finanzierungszertifkat.
Infos
| Haustyp | Doppelhaushaelfte |
|---|---|
| Etagenzahl | 2 |
| Wohnfläche ca. | 123 m2 |
| Grundstücksfläche | 979 m2 |
| Zimmer | 4 |
| Schlafzimmer | 3 |
| Badezimmer | 1 |
| Garage/Stellplatz | Garage |
| Anzahl Garage/Stellplatz | 2 |
Kosten
| Kaufpreis |
516.879 € |
|---|---|
| Preis für Garage/Stellplatz | 8.000 € |
Finanzierungsrechner:
Kaufpreis:
600.000 €
Eigenkapital:
600.000 €
Monatliche Rate
0 €
Effektiver Jahreszins
0 %
Sollzinsbindung
10 Jahre
Bausubstanz & Energieausweis
| Baujahr | unbekannt |
|---|---|
| Bauphase | Haus in Planung (projektiert) |
| Heizungsart | Wärmepumpe |
Beschreibung des Objekts
Ausstattung
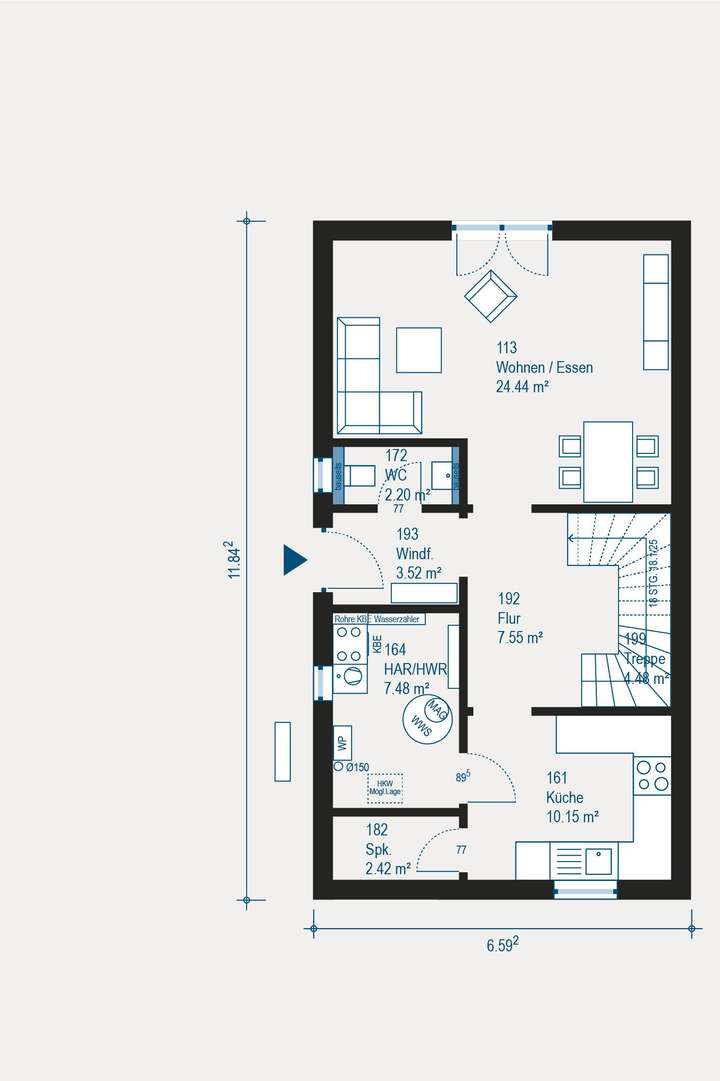
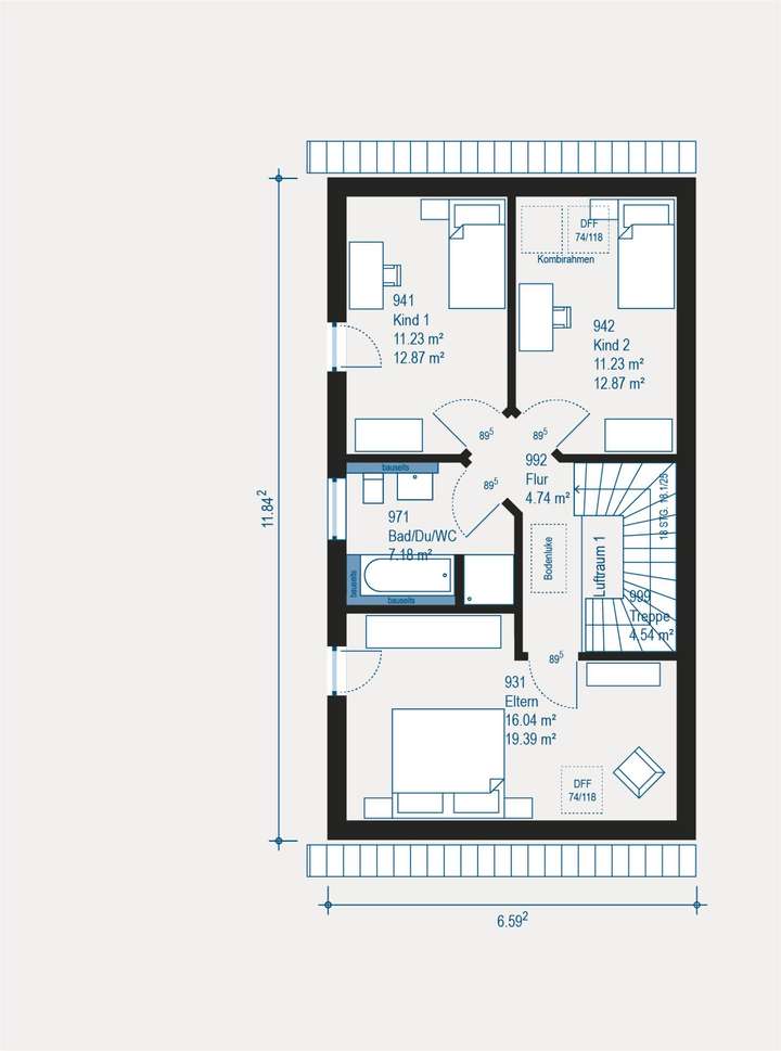
- Wohnfläche: 123,83 m²
- Grundstücksgröße: 979,00 m²
- 4 Zimmer, 3 Schlafzimmer
- 1 Badezimmer mit Dusche und Wanne
- Gäste-WC
- Fliesen und Laminat als Bodenbeläge
- Wärmepumpe als Befeuerungsart
- KFW55 Standard für Energieeffizienz
Die Ausstattung überzeugt zudem mit zahlreichen Highlights:
- Energieeffizienzwand
- Echtholztreppe
- Fußbodenheizung
- 3-fach verglaste Fenster inklusive Rollläden
- Lichte Raumhöhe von 2,75 m
- Schadstoffgeprüfte Materialien mit TOXPROOF Gütesiegel
Mit hoher Qualität und durchdachtem Design wird Ihr neues Zuhause zu einem Ort, an dem Sie sich rundum wohlfühlen können.
Lage
Diese Doppelhaushälfte befindet sich in Spiesheim, einem ruhigen und familienfreundlichen Ort. Die Umgebung bietet eine ausgezeichnete Infrastruktur mit Schulen, Einkaufsgelegenheiten und Freizeitangeboten in unmittelbarer Nähe. Genießen Sie die ländliche Idylle, während Sie gleichzeitig eine gute Anbindung an größere Städte haben, die Ihnen eine Vielzahl von Freizeitmöglichkeiten und kulturellen Angeboten bieten.
Sonstige Angaben
allkauf heißt: Maximaler Komfort, kurze Lieferzeiten, garantierte Fertigstellung.
Wir bieten Ihnen:
- kurze Lieferzeiten
- Liefergarantie
- garantierte Sicherheit
- Festpreisgarantie
- Fertigstellungsgarantie
Zu allen Häusern gehört:
- Energieeffizienzwand
- Echtholztreppe
- Luft-Wasser-Wärmepumpe
- Fußbodenheizung
- Be- und Entlüftungsanlage
- 3-fach verglaste Fenster inklusive Rollläden mit Aluminiumlamellen
- Lichte Raumhöhe 2,75 m
- inklusive erhöhten Fenstern und Türen
- TOXPROOF Gütesiegel - schadstoffgeprüfter Materialien
- Just-in-Time-Lieferungen
- Bemustern im eigenen Bemusterungszentrum mit Markenprodukten
Ob Einfamilienhaus, Doppelhaus oder Bungalow - bei allkauf finden Sie Ihr Traumhaus!
Vereinbaren Sie noch heute Ihren Termin zur Planung Ihres allkauf Traumhauses.
Grundriss
Grundriss
>
>
Grundriss
>
>
Grundriss
>
>
Adresse
55288 Spiesheim
Interessante Orte
Preis- und Lageinformationen
Preistrend für Bestandsimmobilien in Spiesheim