Willkommen in deinem zukünftigen Traumhaus von LivingHaus, das ganz nach deinen Vorstellungen und Bedürfnissen gestaltet wird. Dieses beeindruckende Mehrgenerationenhaus erstreckt sich über zwei Etagen und bietet eine Wohnfläche von 204 m² auf einem großzügigen Grundstück von 900 m². Der moderne Stil des Hauses spiegelt sich in der puristischen Fassaden- und Dachgestaltung wider, während das Flachdach den zeitgemäßen Look unterstreicht.
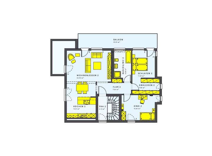
Die kleinere Wohneinheit präsentiert sich klassisch mit einem gemütlichen Wohn- und Essbereich, einer funktionalen Küche, einem stilvollen Bad und einem komfortablen Schlafzimmer. Die größere Wohneinheit erstreckt sich über zwei Stockwerke und beeindruckt mit einem riesigen Erker, der das Raumgefühl erweitert. Ein zusätzlicher Balkon bietet einen weiteren Rückzugsort im Freien.
Living Haus stellt sicher, dass du nicht nur ein Haus, sondern ein Zuhause erhältst. Deine hochwertige Traumküche wird maßgeschneidert auf deinen Grundriss angepasst und kommt mit modernster Technik sowie cleveren Stauraumlösungen. Mit dem Bau-Cockpit behältst du stets den Überblick über dein Projekt - alle Informationen digital zur Hand. I-KON sorgt dafür, dass dein Haus nicht nur energieeffizient ist, sondern auch umweltfreundlich. Durch das Zuhause-Darlehen profitierst du von finanziellen Vorteilen und staatlichen Förderprogrammen.
Das Zuhause-Paket verspricht eine hochwertige Grundausstattung mit modernen Böden, edlen Türen und stilvollen Sanitäranlagen. Dank des DIY-Ausbau-Coachings wirst du zudem zum Profi im Innenausbau deines eigenen Hauses.
Dein individuelles Mehrgenerationenhaus in Bad Vilbel
61118 Bad Vilbel
Die vollständige Adresse der Immobilie erhalten Sie vom Anbieter.
Auf Karte anzeigen
Die vollständige Adresse der Immobilie erhalten Sie vom Anbieter.
Finanzierungszertifikat
In nur zwei Minuten zu Ihrem persönlichen Finanzierungszertifkat.
Infos
| Haustyp | Mehrfamilienhaus |
|---|---|
| Etagenzahl | 2 |
| Wohnfläche ca. | 204 m2 |
| Grundstücksfläche | 840 m2 |
| Bezugsfrei ab | 2026 |
| Zimmer | 6 |
| Schlafzimmer | 4 |
| Badezimmer | 2 |
Kosten
| Kaufpreis |
1.742.024 € |
|---|
Finanzierungsrechner:
Kaufpreis:
600.000 €
Eigenkapital:
600.000 €
Monatliche Rate
0 €
Effektiver Jahreszins
0 %
Sollzinsbindung
10 Jahre
Bausubstanz & Energieausweis
| Baujahr | 2026 |
|---|---|
| Bauphase | Haus in Planung (projektiert) |
| Qualität der Austattung | Gehoben |
| Heizungsart | Zentralheizung |
| Energieausweis | liegt vor |
| Energieausweistyp | Bedarfsausweis |
| Energieverbrauchskennwert | 18,0 kWh/(m²*a) |
| Energieeffizienzklasse | A+ |
18,0
kWh/(m²*a)
Energieeffizienzklasse A+
- A+
- A
- B
- C
- D
- E
- F
- G
- H
- 0
- 25
- 50
- 75
- 100
- 125
- 150
- 175
- 200
- 225
- >250
Beschreibung des Objekts
Ausstattung
Mit LivingHaus entscheidest du dich für ein Fertighaus-Konzept, das dir nicht nur Flexibilität bietet, sondern auch Sicherheit gibt. Ab dem Tag deiner Auftragsbestätigung genießt du eine 18-monatige Festpreisgarantie. Sollte der Baupreisindex fallen, reduziert sich auch dein Hauspreis entsprechend. Essenzielle Bauversicherungen wie Bauherrenhaftpflicht, Bauleistungs-, Wohngebäude-, und Bauhelfer-Unfallversicherung sind inklusive.
Für die Finanzierung steht dir ein Zuhause-Darlehen bis zu 250.000 Euro zur Verfügung - oft zu besonders günstigen Konditionen. Das digitale Bauherren-Cockpit ermöglicht direkten Kontakt zu deinen Ansprechpartnern und Einblick in alle relevanten Unterlagen.
Dank DGNB-Serienzertifizierung in Gold sowie QDF-Zertifizierung baust du auf höchste ökologische Standards. Eine 30-jährige Garantie auf die Grundkonstruktion des Gebäudes gibt zusätzliche Sicherheit.
Integrierte PV-Anlage samt Speicherbatterie erlaubt dir autarke Energieerzeugung; moderne Wärmepumpentechnik sorgt für effizientes Heizen. Die Innenausbaumaterialien umfassen Fliesen für das gesamte Erdgeschoss und bodengleiche Duschen mit Echtglasabtrennung.
Zwei Tage Ausstattungsberatung sorgen dafür, dass alles optimal auf deine Wünsche abgestimmt ist - Dein »Wie ich es will Fertighaus«. Ob Bodenplatte oder Keller: Alle Leistungen werden aus einer Hand abgewickelt.
Abbildungen zeigen ggf. Sonderausstattungen, die nicht im Preis enthalten sind.
Lage
Bad Vilbel liegt direkt vor den Toren Frankfurts und bietet eine perfekte Kombination aus Stadtnähe und grüner Umgebung. Die Stadt ist bekannt für ihre Quellen, das Kulturangebot und eine sehr gute Infrastruktur. Schulen, Einkaufsmöglichkeiten und der S-Bahn-Anschluss machen Bad Vilbel besonders attraktiv für Familien und Pendler.
Sonstige Angaben
Die APP für dein neues Zuhause
Mit der Bau-Cockpit APP hast du immer alle Infos zu deinem Fertighaus griffbereit. Alle relevanten Dokumente sowie der Baufortschritt sind mit einem Klick abrufbar.
Ich zeige dir, wie du zu deinem perfekten Traumhaus kommst und freue mich darauf, von dir zu hören!
Adresse
61118 Bad Vilbel
Interessante Orte
Preis- und Lageinformationen
Preistrend für Bestandsimmobilien in Bad Vilbel