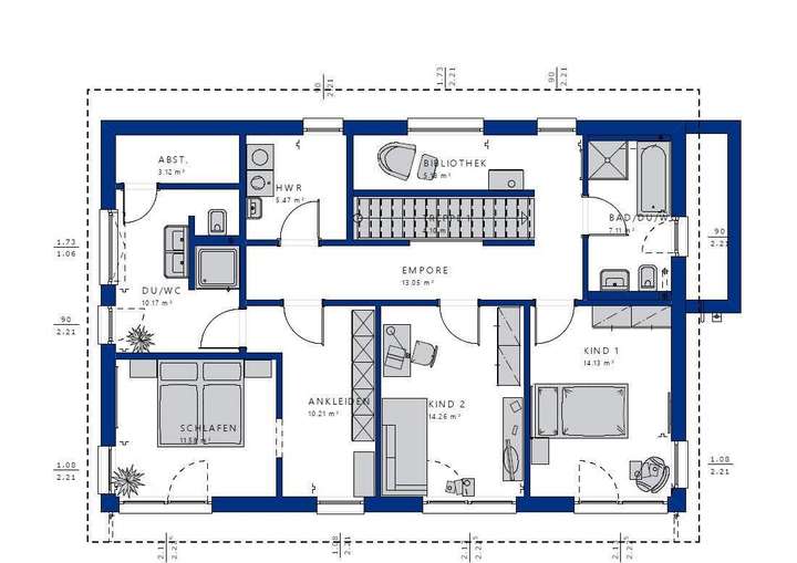
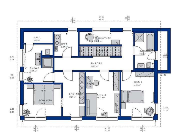
Eine herrschaftliche Villa für Sie und Ihre Familie: Dieses Konzepthaus lässt bereits von außen erahnen, wie großzügig und komfortabel es im Innern zugeht. Die Basis des Entwurfs bildet ein kubischer Baukörper mit sehr flach geneigtem Pultdach. Große Fensterfronten beleuchten Ihren großzügigen Wohn-Essbereich und die Küche. Die Kinder haben ihren eigenen Bereich im Obergeschoss. Ein separates Wäschezimmer erleichtert Ihnen die Arbeit, natürlich da, wo die Wäsche anfällt -im Obergeschoss. Die Garderobe kann offen oder geschlossen als Raum fungieren. Abstellräume und Speisekammer sind ausreichend vorhanden. Kurze Wege bestimmen Ihren Alltag.
Individuelle geplant kann im Erdgeschoss auch ein kl. Apartment entstehen, anstatt dem Büro.
Im nächsten Winter sind Sie eingezogen!
64367 Mühltal
Die vollständige Adresse der Immobilie erhalten Sie vom Anbieter.
Auf Karte anzeigen
Die vollständige Adresse der Immobilie erhalten Sie vom Anbieter.
Finanzierungszertifikat
In nur zwei Minuten zu Ihrem persönlichen Finanzierungszertifkat.
Infos
| Haustyp | Einfamilienhaus |
|---|---|
| Etagenzahl | 2 |
| Wohnfläche ca. | 200 m2 |
| Nutzfläche | 16 m2 |
| Grundstücksfläche | 650 m2 |
| Zimmer | 6 |
| Schlafzimmer | 4 |
| Badezimmer | 3 |
Kosten
| Kaufpreis |
1.331.775 € |
|---|---|
| Provision | Nein |
Finanzierungsrechner:
Kaufpreis:
600.000 €
Eigenkapital:
600.000 €
Monatliche Rate
0 €
Effektiver Jahreszins
0 %
Sollzinsbindung
10 Jahre
Bausubstanz & Energieausweis
| Baujahr | unbekannt |
|---|---|
| Bauphase | Haus in Planung (projektiert) |
Beschreibung des Objekts
Ausstattung
Effizienzhaus 40
Wohlfühlklimaheizung mit perfekter Kühlung.
Smarthome an Bord
Elektrische Rollläden oder Raffstores über smarthome gesteuert
Erker im Küchenbereich
Großes Eingangsportal mit Seitenteil
große Fensterfronten bodentief
3 x bodengleiche Duschen
separates Kinderbad
Elternbereich "en suite", mit Sauna möglich
schlüsselfertig
Effizienzhaus 40
Grundstück mit 650 qm im Preis enthalten. Provisionsfrei!
Grundrisse und individuell änderbar!
Lage
Schöne Lage in Waldnähe in Traisa.
Die Terrassen und Wohnbereiche sind nach Süden ausgerichtet.
Perfekte Planung für dieses Grundstück. Da passt alles!
Grundriss
38074-3217-17-g
>
>
38075-3217-16-g
>
>
Adresse
64367 Mühltal
Interessante Orte
Preis- und Lageinformationen
Preistrend für Bestandsimmobilien in Mühltal