Ein starkes Design und jede Menge Wohnkomfort zu einem bezahlbaren Preis bietet dieses moderne Satteldachhaus. Auffällig sind die verschiedenen Vor- und Rücksprünge in der Fassade. Betont durch einen eleganten Hell-Dunkel-Kontrast verleihen sie dem Fertighaus einen frischen, dynamischen Charakter. Es macht einfach Spaß, den Blick von den weißen bis zu den grauen Putzflächen, vom Haupthaus bis zu den beiden Erkern und von den schmalen Lichtbändern im Dachgeschoss bis zu den breiten Fensterfronten im Erdgeschoss schweifen zu lassen. Und immer wieder entdeckt man dabei neue Details. Abgerundet wird das Konzept durch das flach geneigte, dunkle Satteldach. Auf Dachüberstände wurde bewusst verzichtet.
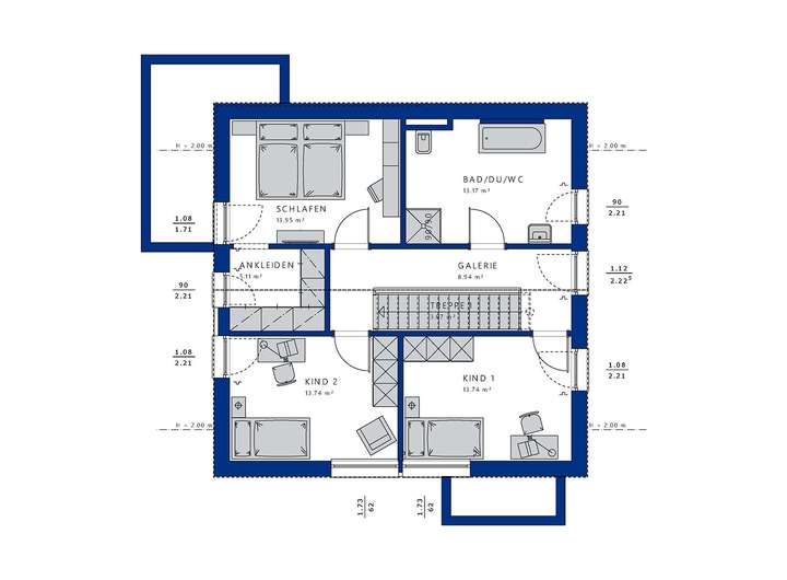
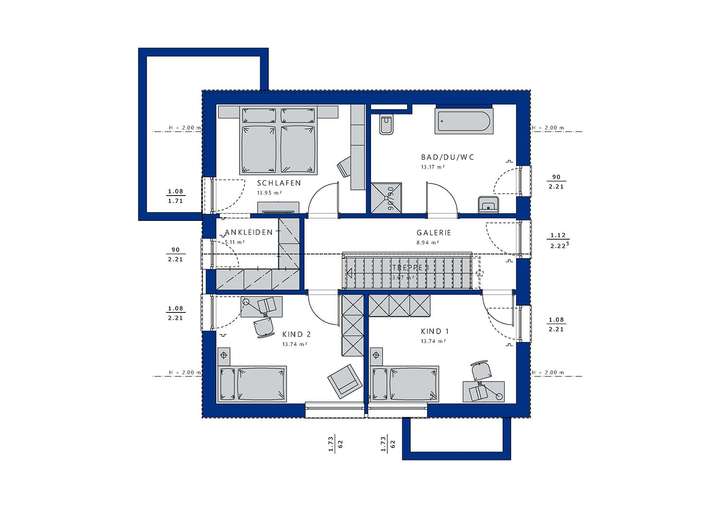
Die Raumaufteilung im Innern des Hauses ist perfekt auf den Alltag einer vierköpfigen Familie abgestimmt. Empfangen werden die Bewohner und Besucher von einer geräumigen Diele, die auch die gerade Treppe beherbergt. Rechts neben dem Eingang liegt der Technikraum, in dem nicht nur die Heizungsanlage, sondern auch Waschmaschine und Co. Platz finden. Links schließt sich ein großes Homeoffice an, das sich bis in den Rechteckerker erstreckt. Die bodentiefen Fenstertüren ermöglichen einen malerischen Blick ins Grüne und bieten gleichzeitig Zugang in den Garten. Hier kann man neue Energie tanken und sich dann voller Elan in die nächste Aufgabe stürzen. Ruft der Feierabend, sind es nur wenige Schritte bis in den großzügigen Wohn-, Ess- und Kochbereich, der mehr als die Hälfte der Wohnfläche im Erdgeschoss einnimmt. Als Raumteiler bietet sich eine Küchentheke an - der ideale Ort für einen Kaffee zwischendurch oder für einen Sektempfang bei der nächsten Geburtstagsfeier. Das Dachgeschoss präsentiert sich als wahre Wohlfühlinsel für Groß und Klein. Den Eltern steht ein gut geschnittenes Schlafzimmer mit angrenzender Ankleide und Bad en suite zur Verfügung. Der Nachwuchs kann sich über zwei gleich große Kinderzimmer und ein eigenes Bad mit Wanne und Dusche freuen.
Perfekte Lage mit eigener Einfahrt!
64347 Griesheim
Die vollständige Adresse der Immobilie erhalten Sie vom Anbieter.
Auf Karte anzeigen
Die vollständige Adresse der Immobilie erhalten Sie vom Anbieter.
Finanzierungszertifikat
In nur zwei Minuten zu Ihrem persönlichen Finanzierungszertifkat.
Infos
| Haustyp | Einfamilienhaus |
|---|---|
| Etagenzahl | 2 |
| Wohnfläche ca. | 145 m2 |
| Grundstücksfläche | 439 m2 |
| Zimmer | 5 |
Kosten
| Kaufpreis |
698.247 € |
|---|---|
| Provision | Nein |
Finanzierungsrechner:
Kaufpreis:
600.000 €
Eigenkapital:
600.000 €
Monatliche Rate
0 €
Effektiver Jahreszins
0 %
Sollzinsbindung
10 Jahre
Bausubstanz & Energieausweis
| Baujahr | unbekannt |
|---|---|
| Bauphase | Haus in Planung (projektiert) |
Beschreibung des Objekts
Ausstattung
Zur Ausstattung fertig bedeutet: Sie versorgen die Wände mit Spachtel, Tapete und Farbe, Sie legen Fliesen und Bodenbeläge, bringen die Sanitärobjekte an und setzen die Innentüren.
Das Haus ist außen komplett fertig, die Heizung (Wärmepumpe) läuft, Elektrik funktioniert mit Schalter und Steckdosen, alle Installationen sind fertiggestellt. Das Haus ist an die Versorgungsleitungen angeschlossen.
Bei dem Materialeinkauf können Sie jetzt noch Geld sparen durch günstige Angebote in Baumärkten usw.
Natürlich können Sie auch Arbeitsleistungen (wie oben erwähnt) von uns bekommen. Der Workflow muss dabei stimmen.
Sie können uns auch alles perfekt ausführen lassen und haben dann auch die absolute Gewährleistung, auch auf den Innenausbau.
Lassen Sie uns darüber reden, wie Sie es gerne hätten.
Lage
Schöne Lage in Griesheim in der 2. Reihe.
Die Zufahrt gehört alleine Ihnen und ist entsprechend auch als Parkfläche nutzbar.
Sonstige Angaben
In Finanzierungsangelegenheiten biete ich Ihnen einen Vollservice durch einen langjährigen Partner an:
-Prüfung der Finanzierbarkeit
-Einschätzung von Ihrer Altimmobilie ((banktechnisch)
-Prüfung von Fördermöglichkeiten (Hessendarlehen, KFW-Mittel)
Abwicklung der Finanzierung
Grundriss
37876-3202-4-g
>
>
37877-3202-1-g
>
>
Adresse
64347 Griesheim
Interessante Orte
Preis- und Lageinformationen
Preistrend für Bestandsimmobilien in Griesheim