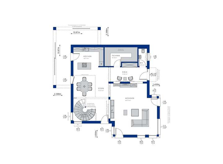
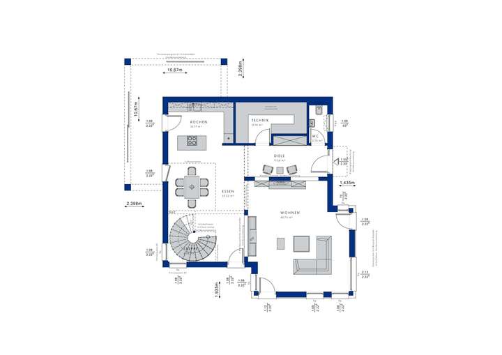
Das CONCEPT-M 193 von Bien-Zenker ist eine moderne Interpretation der klassischen Stadtvilla und verbindet zeitgemäße Architektur mit großzügigem Raumangebot. Mit zwei Vollgeschossen bietet dieses Traumhaus nicht nur ein ästhetisch ansprechendes Äußeres, sondern auch eine beeindruckende Raumgestaltung. Im Erdgeschoss zieht der Luftraum über dem Essbereich die Blicke auf sich und schafft ein Gefühl von Offenheit und Größe. Im Obergeschoss erwartet Sie ein großes Familienbad mit einer getrennten Toilette, das Ihrem täglichen Leben Komfort und Funktionalität verleiht.
Die Ausbaustufe "Schlüsselfertig" bietet Ihnen die Möglichkeit, stressfrei in Ihr neues Zuhause einzuziehen. Bien-Zenker übernimmt den kompletten Hausbau samt Innenausbau für Sie - vom Fundament bis zur letzten Schraube. Dieser Service spart Ihnen Zeit und Nerven, da Sie sich um nichts kümmern müssen und sofort einziehen können, wenn alles fertiggestellt ist. Genießen Sie die Vorfreude auf Ihr neues Zuhause ohne die üblichen Belastungen eines Hausbaus.
Bei Bien-Zenker ist es nie nur »Haus«. Es ist Zuhause, es ist Ankommen, es ist Familie. Bien-Zenker, das sind 80.000 gebaute Häuser, mehr als 700 Mitarbeitende und über 115 Jahre Erfolgsgeschichte. Der Pionier des Fertighauses mit Sitz im hessischen Schlüchtern zählt zu den größten und erfahrensten Fertighausanbietern Deutschlands. Dank Know-how, Leidenschaft und Einfühlungsvermögen wird jede Baufamilie individuell und kompetent beraten und unterstützt - bis sie den Schlüssel in die Tür des eigenen Heims stecken können. Mit wohngesunden Materialien und zukunftsweisenden Standards ist nicht nur jedes Bien-Zenker Haus für die Zukunft gerüstet, sondern auch jeder Bauherr.
Grundrisse und Abbildungen können Extras zeigen. Flächenangaben nach DIN 277.
Eberstadts Villenviertel wartet auf Sie!
64297 Darmstadt
Die vollständige Adresse der Immobilie erhalten Sie vom Anbieter.
Auf Karte anzeigen
Die vollständige Adresse der Immobilie erhalten Sie vom Anbieter.
Finanzierungszertifikat
In nur zwei Minuten zu Ihrem persönlichen Finanzierungszertifkat.
Infos
| Haustyp | Einfamilienhaus |
|---|---|
| Etagenzahl | 2 |
| Wohnfläche ca. | 210 m2 |
| Grundstücksfläche | 1.560 m2 |
| Zimmer | 5 |
Kosten
| Kaufpreis |
2.364.603 € |
|---|---|
| Provision |
für den Bauplatz 70.000 EUR Es fallen noch Erwerbskosten an. Bedenken Sie 6% Grunderwerbsteuer und ca. 2,5% für Notar und Grundbuch. Bedenken sie auch Baunebenkosten wie. Hausanschlüsse, Planung, Bodengutachten,Vermessung, Kontrollschacht etc. Gerne berate ich Sie ausführlich über die Gesamtkosten Ihres Bauvorhabens. |
Finanzierungsrechner:
Kaufpreis:
600.000 €
Eigenkapital:
600.000 €
Monatliche Rate
0 €
Effektiver Jahreszins
0 %
Sollzinsbindung
10 Jahre
Bausubstanz & Energieausweis
| Baujahr | unbekannt |
|---|
Beschreibung des Objekts
Ausstattung
Mit insgesamt fünf Zimmern auf zwei Etagen erstreckt sich das CONCEPT-M 193 über eine Wohnfläche von beeindruckenden 210 Quadratmetern. Die intelligente Aufteilung der Räume sorgt dafür, dass sowohl Familien als auch Paare hier ihr perfektes Zuhause finden können. Großzügige Schlafzimmer bieten Rückzugsorte für alle Familienmitglieder, während der lichterfüllte Wohnbereich zum gemeinsamen Verweilen einlädt. Die Verbindung zwischen den Räumen wurde sorgfältig durchdacht, um sowohl Privatsphäre zu gewährleisten als auch ein offenes Miteinander zu fördern.
Ein besonderes Highlight dieses Hauses sind die lichtdurchfluteten Räume dank großer Fensterflächen, die eine harmonische Verbindung zwischen Innen- und Außenbereich schaffen. Der weitläufige Garten auf dem 1.560 Quadratmeter großen Grundstück bietet reichlich Platz für Freizeitaktivitäten im Freien oder einfach nur zum Entspannen in der Natur. Diese zusätzlichen Flächen erweitern den Wohnraum nach draußen und bieten einen idealen Ort für gesellige Abende oder ruhige Momente allein.
Die Ausbaustufe "Schlüsselfertig" steht für höchsten Komfort beim Bau Ihres Eigenheims. Alles wird bis ins kleinste Detail von Bien-Zenker übernommen - vom ersten Spatenstich bis zur letzten Steckdose im Innenbereich. Die "Schlüsselfertig"-Option bedeutet für Sie: keinerlei Bau-Stress und volle Planungssicherheit bei gleichzeitigem Zugang zu hochwertiger Ausstattung und modernstem Designstandard. Dieses Rundum-Sorglos-Paket ermöglicht es Ihnen, sofort nach Fertigstellung Ihr neues Leben in vollen Zügen zu genießen.
Lage
Darmstadt bietet eine hervorragende Infrastruktur mit einer Vielzahl an Bildungs-, Gesundheits- und Einkaufsmöglichkeiten in unmittelbarer Nähe Ihres neuen Zuhauses. Die Stadt ist bekannt für ihre renommierten Universitäten und Schulen sowie hochmoderne medizinische Einrichtungen, die alle gut erreichbar sind.
Für Ihre Freizeitgestaltung gibt es in der Umgebung zahlreiche Parks, kulturelle Angebote wie Theater oder Museen sowie Sporteinrichtungen für aktive Erholungspausen vom Alltag.
Der öffentliche Nahverkehr ist bestens ausgebaut, sodass Sie schnell überall hinkommen können - ob ins Zentrum Darmstadts oder in umliegende Städte wie Frankfurt oder Heidelberg durch nahegelegene Autobahnanschlüsse.
Sonstige Angaben
Bitte gestatten Sie mir kurz in Ihrer Anfrage Ihre Daten an den Grundstücksmakler weiterzugeben
Grundriss
variable Einteilung möglich
>
>
ganz wie Sie es planen möchten
>
>
Adresse
64297 Darmstadt
Interessante Orte
Preis- und Lageinformationen
Preistrend für Bestandsimmobilien in Eberstadt