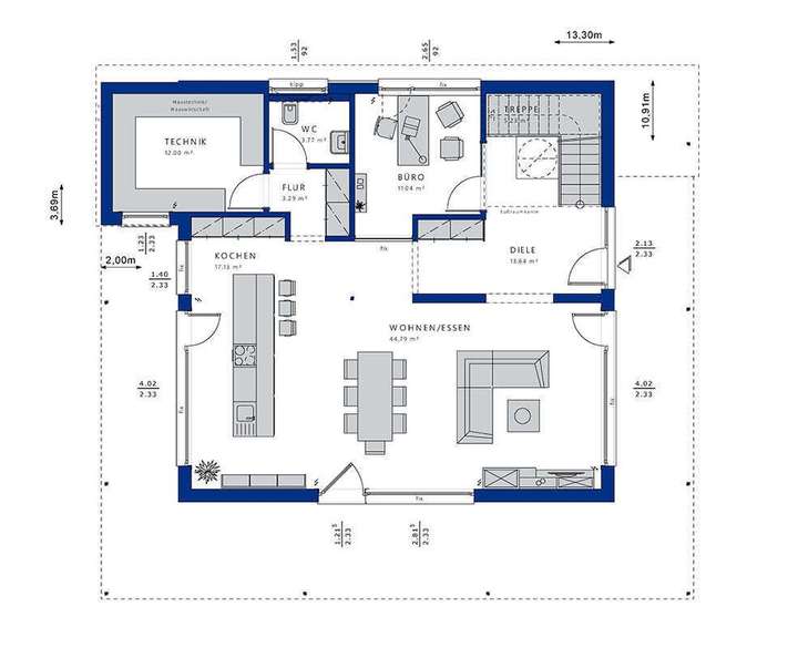
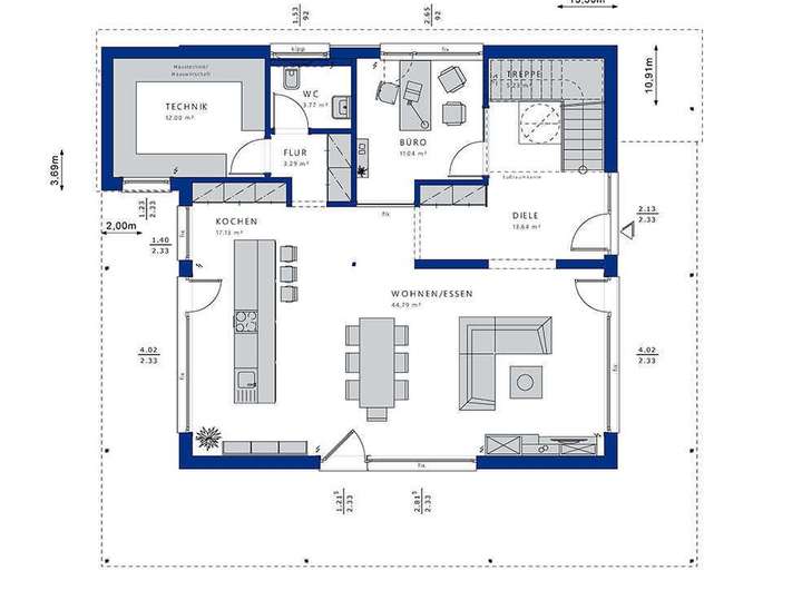
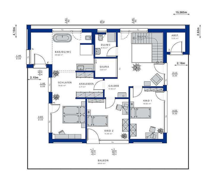
In dieses luxuriöse Pultdachhaus kann man sich nur verlieben: Mit dem umlaufenden Balkon, der vor dem Obergeschoss zu schweben scheint, und dem weit überstehenden Pultdach zieht es seine Betrachter sofort in den Bann. Attraktive Akzente setzen nicht nur die lamellenartigen Holzverschalungen, sondern auch die großzügigen Verglasungen, die von schmalen Lichtbändern bis hin zu raumhohen Glaswänden reichen. Sie öffnen das Fertighaus seiner Umgebung und bringen die Natur als eindrucksvolles Panorama ins Innere. Raffiniert sind die Oberlichter, die die Neigung des Daches aufgreifen. Die Raumaufteilung folgt einem durchdachten Konzept: Während sämtliche Funktions- und Nebenräume im Querriegel untergebracht sind, erstrecken sich die Wohnräume in Richtung Garten. Im Innern des Hauses werden die Besucher von einem repräsentativen Entree empfangen. Von hier aus fällt der Blick bereits durch die Gemeinschaftsräume - ohne zu viel davon preiszugeben — bis hinaus in den Garten. In die Hausecke schmiegt sich eine stylishe Treppe mit Podest. Gegenüber des Treppenaufgangs liegt der Eingang zum Homeoffice. Eintreten lohnt sich, denn über eine große Festverglasung blickt man direkt auf den langen Tisch im Essbereich. Dieser fungiert als zentraler Familientreffpunkt und verbindet den kulinarischen Bereich mit der schicken Couchlandschaft in Grau. Neben der modernen Kochinsel verbirgt sich ein kleiner Flur, der zum Gäste-WC und zum Technikraum führt. Das Obergeschoss ist eine wahre Wohlfühloase für eine vierköpfige Familie. An eine großzügige und luftige Galerie mit Leseecke schließen sich zwei Kinderzimmer, ein geräumiges Duschbad sowie der Elternschlafraum mit vorgelagerter Ankleide und Ensuite-Bad an. Absolutes Highlight ist die Sauna mit Glaswand zur Galerie. Jeder Raum - bis auf das Kinderbad - besitzt einen Zugang zum Balkon. Dabei hat jedes Familienmitglied seinen eigenen, uneinsehbaren Bereich. Eine Abstellkammer, die von außen betreten wird, bietet Stauraum für sämtliche Sitzpolster, Sonnenschirme und Klappliegen.
Der Name ist Verpflichtung "VILLENVIERTEL"!
64297 Darmstadt
Die vollständige Adresse der Immobilie erhalten Sie vom Anbieter.
Auf Karte anzeigen
Die vollständige Adresse der Immobilie erhalten Sie vom Anbieter.
Finanzierungszertifikat
In nur zwei Minuten zu Ihrem persönlichen Finanzierungszertifkat.
Infos
| Haustyp | Einfamilienhaus |
|---|---|
| Etagenzahl | 2 |
| Wohnfläche ca. | 221 m2 |
| Nutzfläche | 15 m2 |
| Grundstücksfläche | 1.450 m2 |
| Zimmer | 6 |
| Schlafzimmer | 3 |
| Badezimmer | 3 |
Kosten
| Kaufpreis |
2.746.000 € |
|---|---|
| Provision |
98.175 EUR für den Bauplatz Es fallen noch Erwerbskosten an. Bedenken Sie 6% Grunderwerbsteuer und ca. 2,5% für Notar und Grundbuch. Bedenken sie auch Baunebenkosten wie. Hausanschlüsse, Planung, Bodengutachten,Vermessung, Kontrollschacht etc. Gerne berate ich Sie ausführlich über die Gesamtkosten Ihres Bauvorhabens. |
Finanzierungsrechner:
Kaufpreis:
600.000 €
Eigenkapital:
600.000 €
Monatliche Rate
0 €
Effektiver Jahreszins
0 %
Sollzinsbindung
10 Jahre
Bausubstanz & Energieausweis
| Baujahr | unbekannt |
|---|
Beschreibung des Objekts
Ausstattung
Perfekt ausgestattet, schlüsselfertig inkl. Wand-Bodenbeläge, Effizienzhaus 40, Wärmepumpe, Be-Entlüftung, Smarthome usw.
Lage
Schöne großzügige Lage mit altem Baumbestand im Villenviertel in Eberstadt.
Sonstige Angaben
Bitte gestatten Sie mir bei Ihrer Anfrage Ihre Adressdaten an den Grundstücksspezialisten weiterzugeben.
Grundriss
37709-3186-19-g
>
>
37710-3186-18-g
>
>
Adresse
64297 Darmstadt
Interessante Orte
Preis- und Lageinformationen
Preistrend für Bestandsimmobilien in Eberstadt